EasyManua.ls Logo

Sime Format.zip 25 OF - Page 30

Sime Format.zip 25 OF
Print Icon
To Next Page IconTo Next Page
To Next Page IconTo Next Page
To Previous Page IconTo Previous Page
To Previous Page IconTo Previous Page
Loading...
28
1
2
3
4
22
5
7
8
27
11
14
10
9
6
16
12
18
28
13
19
21
20
17
U
E
G
M
R
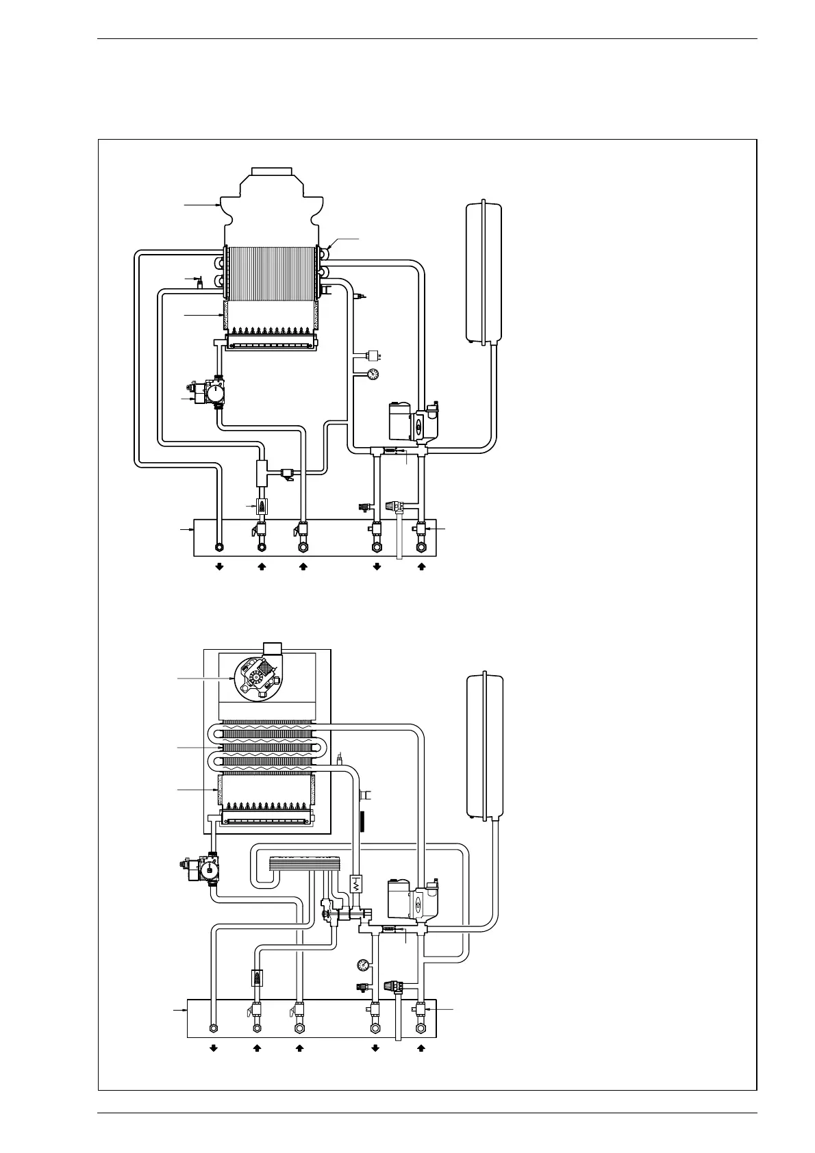
1.4 ESQUEMA DE FUNCIONAMIENTO
Fig. 2
LEGENDA
1 Cámara humos/Ventilador (vers. “BF”)
2 Intercambiador primario
3 Cámara de combustión
4 Válvula gas
5 Intercambiador sanitario a plancha
6 Válvula presostática con carga
7 Sonda NTC
8 Termóstato de seguridad
9 Válvula purgador de aire
10 Circulador
11 Vaso de expansión
12 Válvula de seguridad
13 Descarga caldera
14 Medidor de flujo de agua
15 Termomanómetro
16 By-pass automatico
17 Filtro agua sanitaria
18 Grifo retorno instalación (optinal)
19 Grifo ida instalación (optional)
20 Grifo agua sanitaria (optional)
21 Grifo gas (optional)
22 Placa uniones empalmes (optional)
23 Sonda sanitaria (SS)
24 Intercambiador bitermico
25 Presóstato agua
26 Grifo de carga instalación
27 Sonda Termóstato
28 Hidrómetro
Modelo “25 BF - 30 BF”
1
23
3
4
22
14
26
17
20
21
13
19
18
12
16
9
10
15
25
7
8
24
11
U
E
G
MR
Modelo “25 OF”

Related product manuals