EasyManua.ls Logo

Sime Format.zip 25 OF - Page 31

Sime Format.zip 25 OF
Print Icon
To Next Page IconTo Next Page
To Next Page IconTo Next Page
To Previous Page IconTo Previous Page
To Previous Page IconTo Previous Page
Loading...
29
6
12
11
10
9
8
7
5
4
3
2
1
13
14
3
15
1
11
9
17
18
16
10
2
12
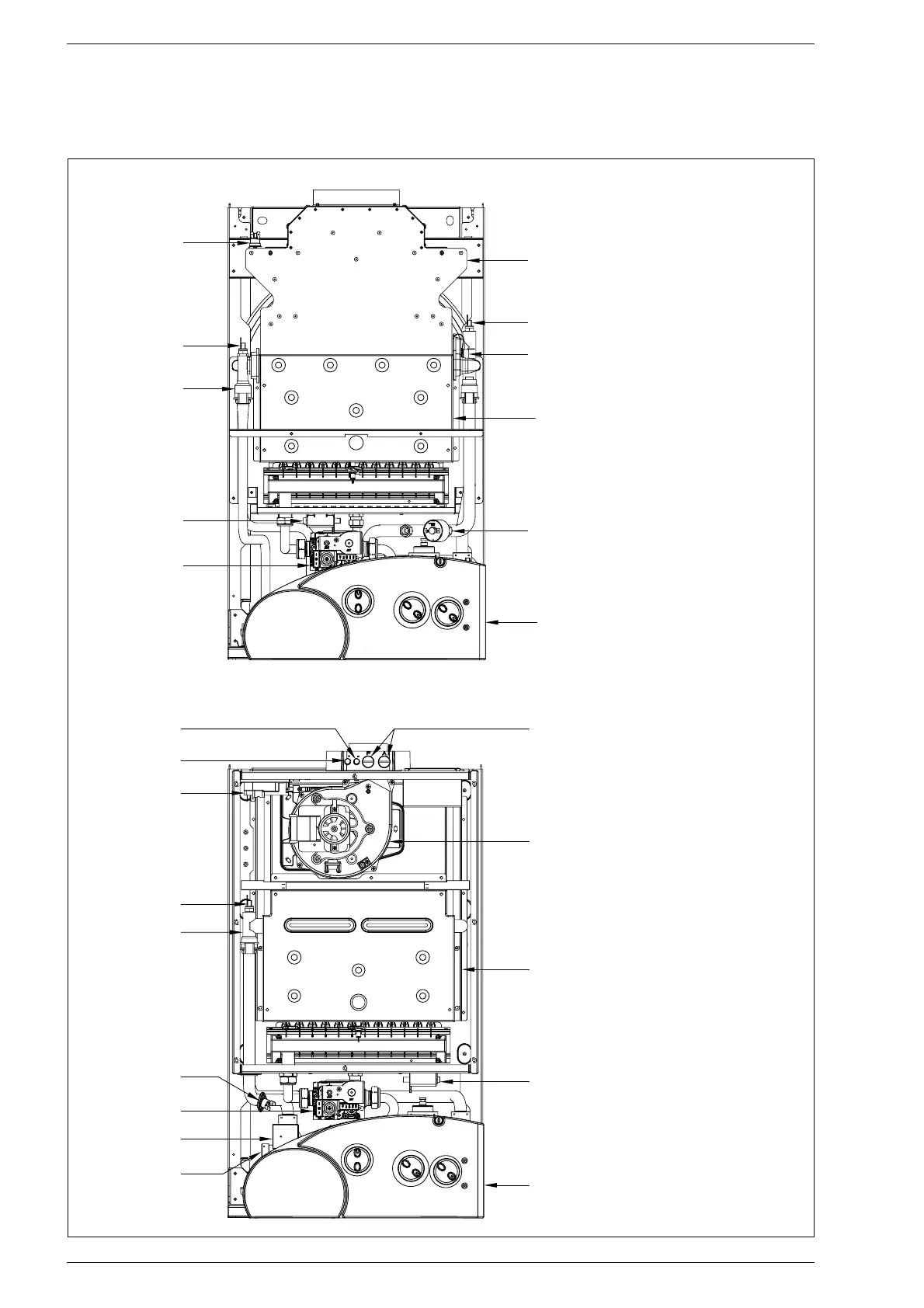
1.5 COMPONENTES PRINCIPALES
Fig. 3
LEGENDA
1 Panel de mandos
2 Trasformador d’encendido
3 Cámara combustión
4 Ventilador
5 Toma análisis combustión
6 Toma presión negativa
7 Toma presión positiva
8 Presóstato humos
9 Sonda calefacción (SM)
10 Intercambiador primario (vers. “BF”)
Intercambiador bitérmico (vers. “OF”)
11 Termóstato seguridad
12 Válvula gas
13 Medidor de flujo agua
14 Válvula presostática
15 Presóstato aguapresion
16 Sonda sanitaria (SS)
17 Cámara humoscamera
18 Termóstato humos
Modelo “25 OF”
Modelo “25 BF - 30 BF”

Related product manuals