EasyManua.ls Logo

Sime Format.zip 25 OF - Page 52

Sime Format.zip 25 OF
Print Icon
To Next Page IconTo Next Page
To Next Page IconTo Next Page
To Previous Page IconTo Previous Page
To Previous Page IconTo Previous Page
Loading...
50
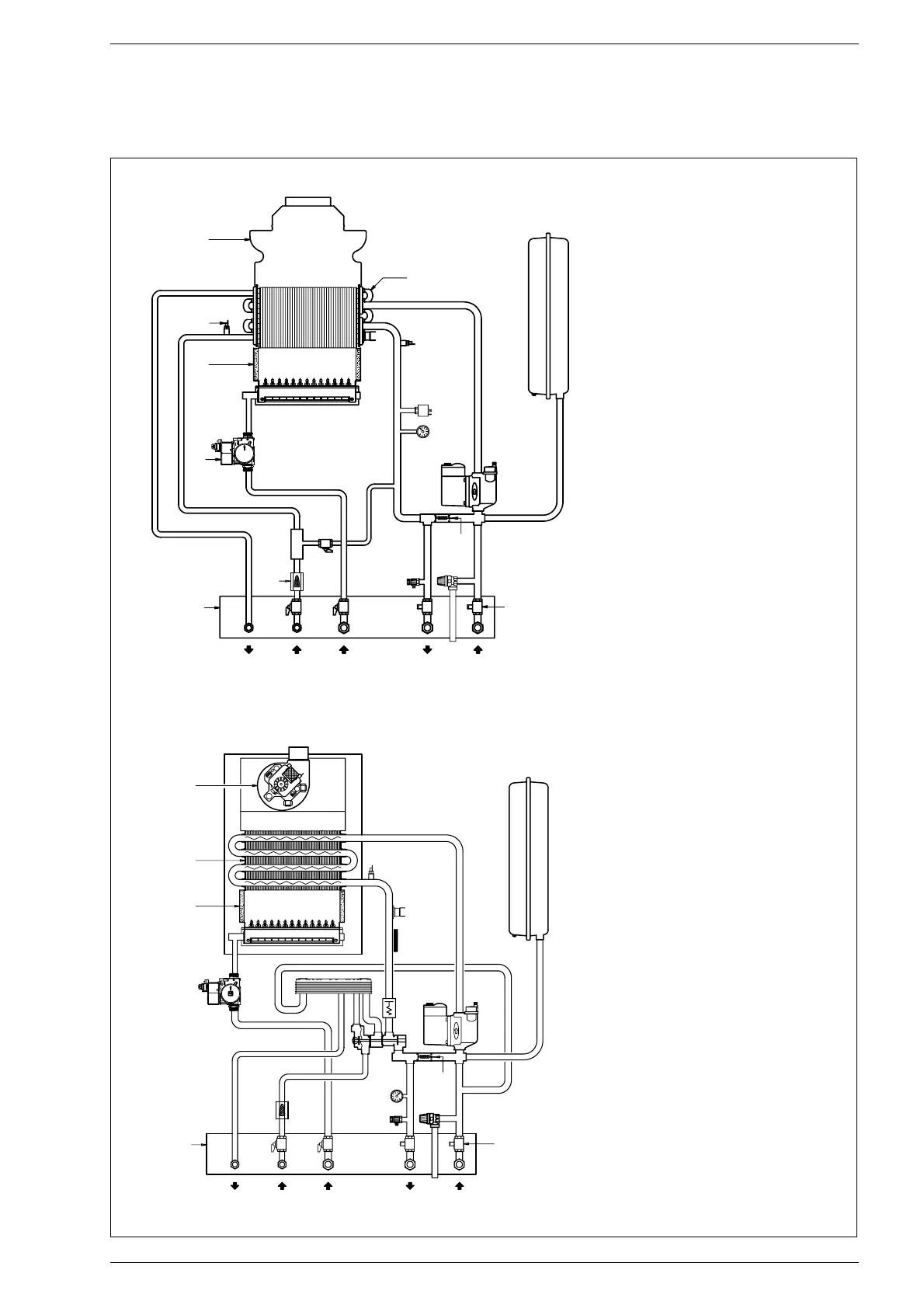
1.4 ESQUEMA FUNCIONAL
Fig. 2
ROSCAS
1 Câmara de fumo/Ventilador (vers. “BF”)
2 Permutado primário
3 Câmara de combustão
4 Válvula gás
5 Permutador casa de banho de azulejos
6 Válvula pressostática con carregamento
7 Sonda aquecimento (SM)
8 Termóstato de segurança
9 Purgador do ar
10 Bomba
11 Vaso de expansão
12 Válvula de segurança
13 Descarga caldeira
14 Fluxóstato de água
15 <<<
16 By-pass automático
17 Filtro água sanitária
18 Torneira retorno instalação (optinal)
19 Torneira ida instalação (optional)
20 Torneira água sanitária (optional)
21 Torneira gás (optional)
22 Placa ligações (optional)
23 Sonda sanitaria (SS)
24 Intercambiador bitermico
25 Presóstato agua
26 Grifo
carga instalación
27 Sonda termóstato
28 Hidrómetro
Modelo “25 BF - 30 BF”
1
23
3
4
22
14
26
17
20
21
13
19
18
12
16
9
10
15
25
7
8
24
11
U
E
G
MR
Modelo “25 OF”

Related product manuals