EasyManua.ls Logo

Sime Format.zip 25 OF - Page 53

Sime Format.zip 25 OF
Print Icon
To Next Page IconTo Next Page
To Next Page IconTo Next Page
To Previous Page IconTo Previous Page
To Previous Page IconTo Previous Page
Loading...
51
6
12
11
10
9
8
7
5
4
3
2
1
13
14
3
15
1
11
9
17
18
16
10
2
12
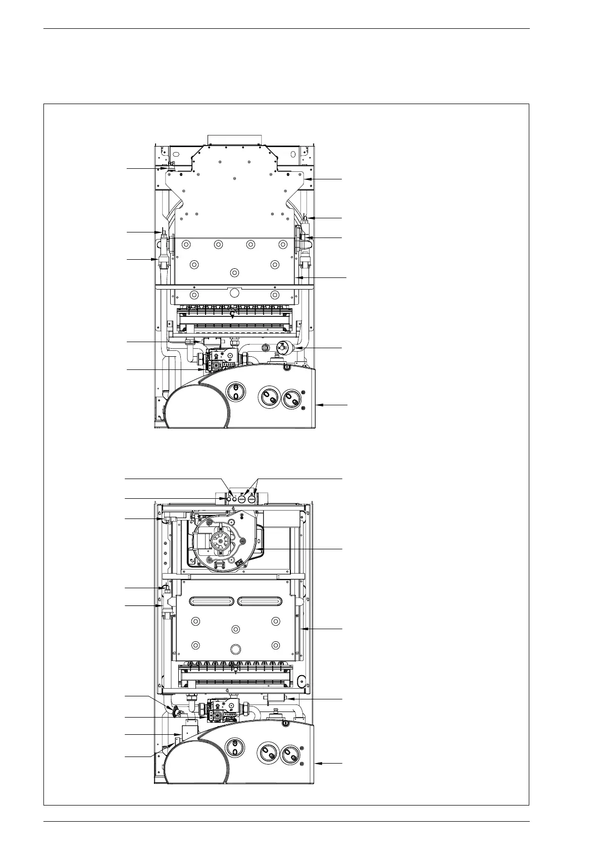
1.5 COMPONENTES PRINCIPAIS
ROSCAS
1 Painel de comandos
2
Transformador de ignição
3
Câmara combustão
4 Ventilador
5 Tomadas de análise da combustão
6 Tomada de pressão negativa
7 Tomada de pressão positiva
8 Pressóstato fumos
9 Sonda aquecimento (SM)
10 Permutador
primário (vers. “BF”)
Permutador bitérmico (vers. “OF”)
11
Termóstato de segurança
12 Válvula gás
13 Fluxóstato água
14 Válvula pressostática
15 Pressóstato água
16 Sonda sanitária (SS)
17 Câmara fumos
18 Termóstato fumos
Modelo “25 OF”
Modelo “25 BF - 30 BF”
Fig. 3

Related product manuals