EasyManua.ls Logo

Skipper SB-100-SA - Space Considerations for Installation

Default Icon
22 pages
Print Icon
To Next Page IconTo Next Page
To Next Page IconTo Next Page
To Previous Page IconTo Previous Page
To Previous Page IconTo Previous Page
Loading...
Page6 of 22
Date: 12.08.2020
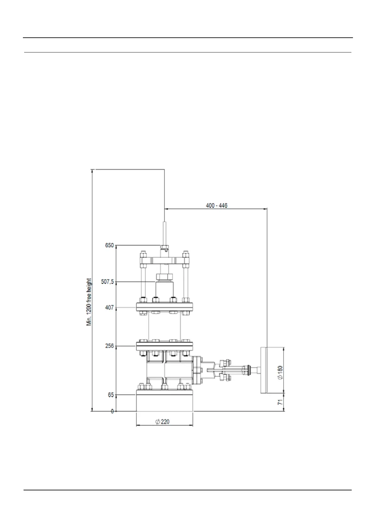
2. SPACE CONSIDERATIONS
The Sea Valve should be placed in a service accessible place, large enough for installation and disassembly
of the sensor unit.
Space consideration SB-100-SA
SKIPPER Electronics AS
SB-100-XX Operation and Installation Manual

Related product manuals