EasyManua.ls Logo

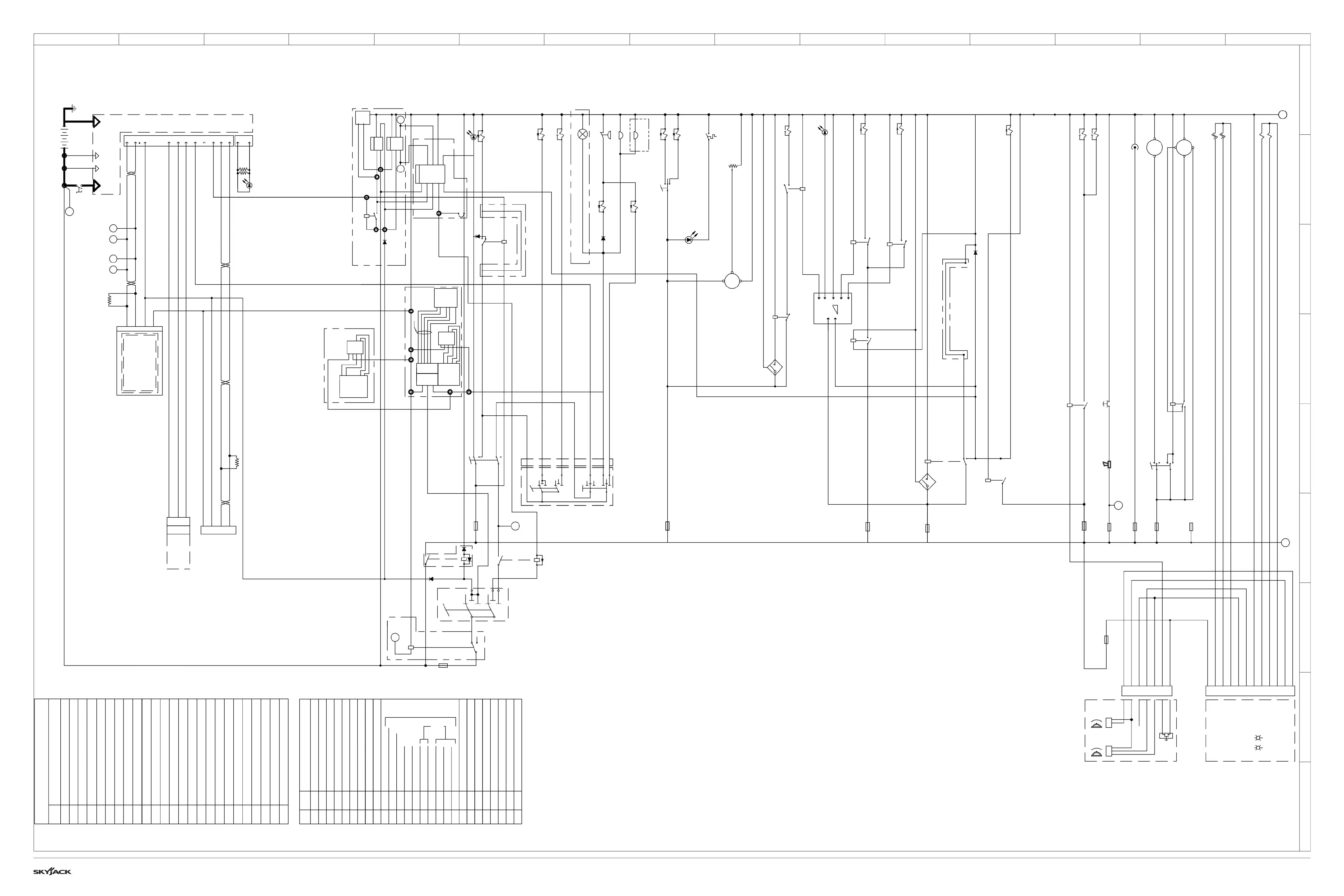
Skyjack SJ1056 TH - 3.38 Electrical Schematic 74 HP Premium Joystick - SJ1044 TH & SJ1056 TH

Skyjack SJ1056 TH
206 pages
Print Icon
To Next Page IconTo Next Page
To Next Page IconTo Next Page
To Previous Page IconTo Previous Page
To Previous Page IconTo Previous Page
Loading...
V
W
Y
Z
L
M N
O
F
G
H
K
X
I
J
EDCBA
U
T
S
R
88
SJ1044 TH, SJ1044 THS, SJ1056 TH, SJ1056 THS, SJ1256 THS
230790ABA
03
1
2
5 87 10 12113 4
6
9
FUSE
NO. RATING
AMPERE
CIRCUIT
1
2
2H-28A
2H-28B
+
-
PL4 - RD
2H-221
REMOVE RELAY TO ADD JUMPER WIRE
FOR RESERVE BRAKE (OPTION)
3
1
4
2
1
4
2
3
11
12
DC12V
GND
2
3
7
6
4
5
1
8
CAM1
TRIGG
CANH
CANL
DISP GND
DISP PWR
2
3
7
6
4
5
1
8
CANH
CANL
DISP GND
DISP PWR
1
CAM1
1
2
4
5
SHLD
2
3
4
5
6
SHLD
2
1
5
6
FRAME LEVEL
SWITCH
CONTROL
HANDLE
0.7V
AUX (+)
+
-
SGL
4.3V
-
SGL
+
0.7V
AUX (-)
2.5V
CARRIAGE TILT (UP)
2.5V
4.3V
CARRIAGE DUMP
FRAME LVL/
AUX HYD.
CONTROLLER TOC-2
G
Y/R
STATUS
LED
POWER
ON LED
RELAY CHART
RELAY
NO.
FUNCTION
1
7
9
2
11
8
4
12
3
REAR WIPER
M1
F9
5 A
15 A
F8
REAR WIPER
POWER PORT
P68 J68
4
3
5
THROTTLE
PEDAL
5
3
4
THROTTLE GROUND
THROTTLE SIGNAL
THROTTLE VREF +5 V
B
G
H
ENGINE DIAGNOSTIC
CONNECTION
A
A
B
TO SHEET 2
R3
120 Ω
TO SHEET 2
03 00
ENGINE DETAIL HERE
TO ENGINE
STARTER POST
TO ENGINE
GROUND
B+
TO
ECU
P66
BATTERY
DISPLAY MODULE
CAN
BA+
TO
FUEL PUMP
SW 14
WASHER/WIPER 1
SWITCH
WASHER
M2
1
3
2
5
4
6
ENGINE DISPLAY
UNIT
255CR RELAY
REAR WIPER
NOMINAL SPEED
PARKING FEED
PARKING AUX. FEED
WINDSHIELD WASHER
WINDSHIELD
WASHER SWITCH
D
K L
R2
120 Ω
IGNITION
THROTTLE POWER
THROTTLE GROUND
THROTTLE SIGNAL
START
DIAGNOSTIC CAN
PREHEAT LAMP
PL1 - YW
R4
1000 Ω
HORN
SW6 - HORN SW.
HORN
FUEL LEVEL
SERVICE BRAKE
TRANSMISSTION
DISCONNECT
FORWARD SOL.
4 WHEEL STEER SOL.
STEERING MODE SWITCH
1
6
7
REVERSE
FORWARD
TRANS. TEMP.
TPSW1
PL3 - YW
-
S
+
4W STEER
CRAB STEER
SW4 - STEER
MODE SW.
222CR
FRAME LEVEL ENABLE
RELAY
REVERSE SOL.
BACKUP ALARM
CRAB STEER SOL.
TRANSMISSION TEMP.
SWITCH TPS1
FUEL GAUGE
FUEL GAUGE
FUEL LEVEL SENDER
FRAME LEVEL
ENABLE RELAY
BACKUP ALARM
F
N
PS1
4H-223
4H-223-1
FRAME LEVEL
ENABLE LEFT
FRAME LEVEL
ENABLE RIGHT
DIODE
D15
4H-217
4H-218
J
TO SHEET 2
2
3
1
FRONT
19CR
BOOM E.O.S
BOOM UP
E.O.S
2H-14A
DIODE
D221
BOOM 40° ANGLE
SENSOR
212CR RELAY
BOOM ANGLE
28R CR
FRAME RIGHT
ENABLE RELAY
FRAME ANGLE
SENSOR
±4 DEGREES
28L CR
FRAME LEFT
ENABLE RELAY
65CR
FRAME LEVEL
ENABLE
28 CR
BOOM RAISE
DISABLE
Closed Below 40°
CLOSED BELOW 70°
BOOM UP
ENABLE VALVE
BOOM UP E.O.S
RELAY
BOOM UP
E.O.S SWITCH
BOOM RAISE
DISABLE RELAY
SW1 - IGNITION SWITCH
2ND
1ST GEAR SOL.
F1
10 A
5
2
6
3
1
4
10 A
F2
60ACR
POWER
RELAY
SW2 - PARK
BRAKE SW.
F-N-R
2
3
8
1ST
3H-26
B+
OFF
ON
START
IGN
ST
PARKING BRAKE
RELEASE
IGNITION SWITCH
PARKING BRAKE
SWITCH
POWER RELAY
2ND GEAR SOL.
F - N - R SHIFTER
1ST
2ND
3RD
J47
PARKING BRAKE
APPLY
PL2 - RD
C
TO SHEET 2
E
TO SHEET 2
POSITIVE SHUTOFF
RELAY
403ACR RELAY
POSITIVE SHUTOFF
TELEMATICS OPTION
05CR
PARK BRAKE RELEASE
PARK BRAKE RELEASE
RELAY
RESERVE BRAKE JUMPER
TELEMATICS OPTION
D26B
DIODE
D60-1
DIODE
F7
10 A
10 A
F4
F5
10 A
5 A
F19
F3
10 A
D60
DIODE
77CR
ENGINE RUNNING
M6
M8H
M N
M N
SW26
DISCONNECT
SWITCH
5
REV. MONITOR
REVERSE
REVERSE
CAMERA
ACC
SENSOR
REVERSE CAMERA
OPTION
REVERSE
SENSOR
REV. DETECTOR
REVERSE WARNING
SENSOR OPTION
15
4
7
9
10
8
7
3
2
1
11
12
J91
J46A
JOYSTICK
1
2
3
4
5
6
16
05M
08
C - SIGNAL
08
02
05M
222
A - SIGNAL
08
C - SIGNAL
02
41
40
10A
00
233
234
10B
AUX (+/-) POWER
AUX (+) RETURN
GROUND
AUX (-) RETURN
+5 VDC SENSOR POWER
CARRIAGE TILT/DUMP SIGNAL
CARRIAGE DUMP RETURN
CARRIAGE TILT/DUMP POWER
CARRIAGE TILT UP RETURN
12VDC POWER IN
INPUT SENSOR GROUND
AUX (+/-) SIGNAL
10 A
F16
04 05M
F6
5 A
AUX. EXTEND
AUX. RETRACT
CARRIAGE TILT UP
CARRIAGE TILT DOWN
(DUMP)
3H-41
4H-234
4H-233
233
234
3H-40
A - SIGNAL
41
40
10A
10B
224CR
NOT USED
TRACK
UNIT
TELE.
JMPR1
NOTE A
57DCR
STARTER
INTERRUPT
D57D
DIODE
NOTE A - REMOVE WITH TRACK UNIT TELEMATICS
TRACK UNIT
TELEMATICS OPTION
ME501-4
WHITE NOISE
BACKUP ALARM
WHITE NOISE
BACKUP ALARM
04
04
05E
05F
29
32
30
31
26
27
28
22
25
23
24
21
20
19
18
17
16
14
15
13
12
5
10
11
9
8
7
6
4
3
2
1
B1
00B+
57B
105
104
99
90
60
77
206
03
99
90
206
105
104
60
00
60
00
130
131
132
135
137
136
134
133
238
05F
05F
05F
255
257
257A
00
60
00
CANH
CANL
403B
60
CANH
CANL
74
203
+
-
PREHEAT
1
2
7
8
138
139
140
141
144
143
142
05D 49
108
109
105
107
106
104
102
103
101
100
98
99
97
96
95
91
92
93
94
90
84
87
86
85
83
82
81
77
80
79
78
76
74
75
73
72
71
70
69
68
67
66
65
64
63
62
88
89
57B
16
15 15
15
16
15A
51
05A
217
218
219
55
05B
222
223 223
223
122
115
121
120
119
117
116
118
114
113
112
111
110
123
124
128
126
127
129
125
05A
15
19
14
05A
14A
05R
65
213
221
221
65
05T
28A
28B
65A 65A
65A
05R
28L
28R
05R
221
2
4
3
6
7
28L
28R
00
5
1
28
28
28C
221
53
60
59
58
57
56
55
54
51
52
50
49
48
47
45
46
43
44
42
41
40
36
37
39
38
34
35
33
03A
04
57E
03
57A
60A
60A
04
00
05
26B
26
26
215
216
215
216
26B
00
03B
403A
77
26B
26A
57
05
26
61
04
04
04
04
03
60
03
60B
60C
77
60C
60B
60B
WHITE
RED
BLACK
03
60B
03
60C
CANH
CANL
57A
15
000000
60A
00
05B
04
04
00
05B
26B
CANL
CANH
03
00
57D
221
60C
60B
60A
57D
60A
HORN SWITCH
BOOM ANGLE SENSOR
BOOM ANGLE RELAY
FRAME LEVEL ENABLE
FRAME LEVEL SPEED
FRAME ANGLE SENSOR
FRAME RIGHT ENABLE
FRAME LEFT ENABLE
FRAME LEVEL
INTERLOCK LAMP
FRAME LEVEL ENABLE
PS3 SERVICE BRAKE
PRESSURE SWITCH
PREMIUM JOYSTICK
HEATER VALVE, A/C
WIPER, FRONT & TOP
BLOWER
FAN/INT. LIGHT
F17
30A
F18
F15
F16
F14
F13
10A
5A
10A
10A
CAB
OPTION
ENCLOSED
IGNITION/POWER RELAY
REAR AXLE LOCK
POWER PORT
HORN/BEACON OPT.
ROAD LIGHTS
REAR WIPER
BOOM LIGHTS
WORK LIGHTS
TRANS/B-U ALARM/PARK BRAKE
STEER SELECT/GAUGE/TRANS TEMP
F5
F10
F12
F11
10A
10A
5A
15A
5A
F9
F8
F7
F6
10A
F3
F4
F2
F1
10A
10A
10A
10A
OPTIONS
F20
FRAME/CARRIAGE ENABLE
10A
NOT USED
5A
OUTRIGGERS
10A
15A
5A
FRAME LEVEL INTERLOCK
F19
100A
F27
F26
20A
GLOW PLUG
FUEL PUMP
30A
F25
ECM
TURN/HAZ./BRAKE LIGHTS
F21
-
-
F22
-
-
F23
-
-
F24
-
-
BRAKE LAMP
5JCR
NOT USED
POWER RELAY
BOOM UP
56ACR
19CR
224CR
222CR
60ACR
FUEL PUMP
POSITIVE SHUTOFF
403ACR
FRAME LEVEL ENABLE
BOOM ANGLE
212CR
77CR
ENGINE RUNNING
255CR
REAR WIPER
258CR
FRONT WIPER
LEFT TURN SIGNAL
250ACR
RIGHT TURN SIGNAL
251ACR
TOP WIPER
258ACR
PARK BRAKE RELEASE RELAY
05CR
65CR
FRAME LEVEL ENABLE
28CR
BOOM RAISE DISABLE
28LCR
FRAME LEFT ENABLE
28RCR
FRAME RIGHT ENABLE
11CR
GLOW PLUG
R.A.S. RESTRICT MODE ENABLE
223ACR
STARTER INTERRUPT
57DCR
-
-
-
-
R.A.S. DRIVE/BRAKE INPUT RELAY
220CR
JUMPER TH 643/843 MODELS ONLY
3.38 Electrical Schematic 74 HP Premium Joystick - SJ1044 TH & SJ1056 TH
3.38 Electrical Schematic 74 HP Premium Joystick - SJ1044 TH & SJ1056 TH
M213409AG-S1

Table of Contents