EasyManua.ls Logo

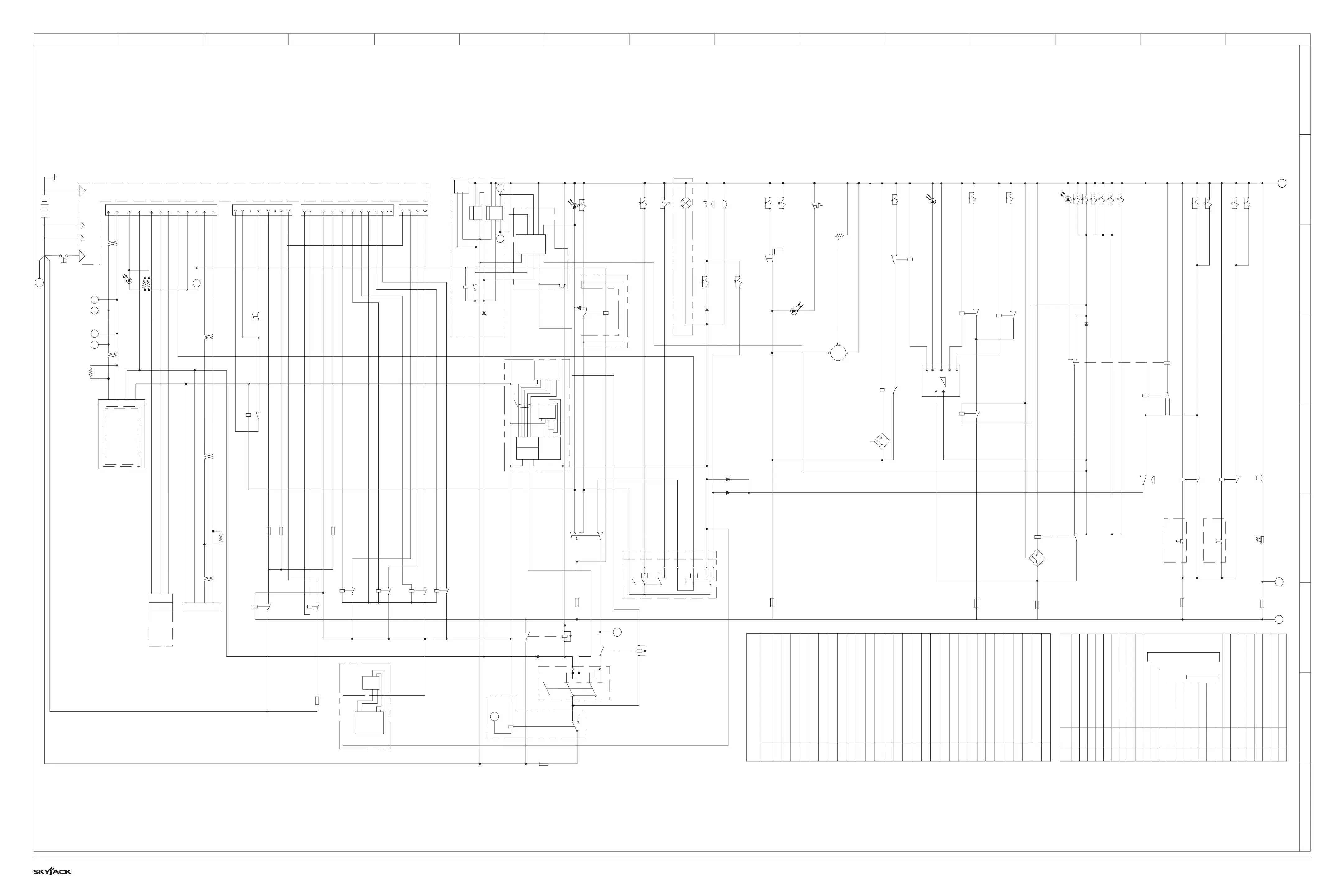
Skyjack SJ1056 TH - 3.41 Electrical Schematic - SJ1256 THS

Skyjack SJ1056 TH
206 pages
Print Icon
To Next Page IconTo Next Page
To Next Page IconTo Next Page
To Previous Page IconTo Previous Page
To Previous Page IconTo Previous Page
Loading...
V
W
Y
Z
L
M N
O
F
G
H
K
X
I
J
EDCBA
U
T
S
R
97
SJ1044 TH, SJ1044 THS, SJ1056 TH, SJ1056 THS, SJ1256 THS
230790ABA
03
1
2
5 87 10 12113 4
6
9
403B
REMOVE RELAY TO ADD JUMPER WIRE
FOR RESERVE BRAKE (OPTION)
BACKUP LIGT
BACKUP LIGT
232
03S
03S
04A 04A
04A
04A
229
230
231
232A
1 2 3 4 5 6 7
235
231
229
239
8
236
239
236236
26C
FUSE
NO. RATING
AMPERE
CIRCUIT
RELAY CHART
RELAY
NO.
FUNCTION
PL5 - YW
2H-65
2H-28A
2H-28B
+
-
PL4 - RD
2H-65-1
2H-221
2H-221-1
2H-221-2
2H-221-3
240
A41
232A
1 2 3 4
241A
242A
243A
241
A04
242
243
244A
00
230
1 2 3 4 5 6 7 8 9 10
244
241A
242A
243A
244A
241
242
243
244
A04
A04
A04
A04
A04
11 12
3
1
4
2
1
4
2
3
11
12
2
3
7
6
4
5
1
8
CANH
CANL
DISP GND
DISP PWR
DC12V
GND
2
3
7
6
4
5
1
8
CAM1
TRIGG
CANH
CANL
DISP GND
DISP PWR
1
CAM1
1
2
4
5
SHLD
2
3
4
5
6
SHLD
1
2
5
6
1
7
9
2
11
8
4
12
3
SW1 - IGNITION SWITCH
2ND
P68 J68
4
3
5
THROTTLE
PEDAL
5
3
4
THROTTLE GROUND
THROTTLE SIGNAL
THROTTLE VREF +5 V
B
G
H
ENGINE DIAGNOSTIC
CONNECTION
SERVICE BRAKE
TRANSMISSTION
DISCONNECT
1ST GEAR SOL.
FORWARD SOL.
F1
10 A
A
5
2
6
3
1
4
10 A
F2
60ACR
POWER
RELAY
SW2 - PARK
BRAKE SW.
F-N-R
1
2
3
5
6
8
7
REVERSE
FORWARD
1ST
3H-26
B+
OFF
ON
START
IGN
ST
PARKING BRAKE
RELEASE
IGNITION SWITCH
PARKING BRAKE
SWITCH
REVERSE SOL.
POWER RELAY
2ND GEAR SOL.
F - N - R SHIFTER
BACKUP ALARM
HOURMETER
1ST
2ND
3RD
J47
BACKUP ALARM
F
N
R
R3
120 Ω
PS1
03 00
TO ENGINE
STARTER POST
TO ENGINE
GROUND
B+
TO
ECU
P66
BATTERY
DIODE
D15
DISPLAY MODULE
CAN
PARKING BRAKE
APPLY
PL2 - RD
BA+
TO
FUEL PUMP
C
TO SHEET 2
E
TO SHEET 2
POSITIVE
SHUTOFF RELAY
403ACR RELAY
POSITIVE SHUTOFF
TELEMATICS OPTION
D60
DIODE
77CR
ENGINE RUNNING
ENGINE DISPLAY
UNIT
D
K L
05CR
PARK BRAKE RELEASE
PARK BRAKE RELEASE
RELAY
RESERVE BRAKE JUMPER
TELEMATICS OPTION
D26B
DIODE
R2
120 Ω
IGNITION
THROTTLE POWER
THROTTLE GROUND
THROTTLE SIGNAL
START
DIAGNOSTIC CAN
PREHEAT LAMP
PL1 - YW
F21
30 A
04CR
SWITCHED POWER FOR E.A.T.
F24
5 A
F22
15 A
F23
5 A
START/STOP SWITCH
NOx SENSOR SUPPLY
AIR INTAKE THROTTLE
DEF TANK HEATING VALVE
POWER TO SCR SWITCH
SW 25
START/STOP
SWITCH
235CR
POWER FOR SCR S/W.
A
B
TO SHEET 2
TO SHEET 2
R4
1000 Ω
D60-1
DIODE
HORN
SW6 - HORN SW.
HORN
FUEL LEVEL
4 WHEEL STEER SOL.
STEERING MODE SWITCH
TRANS. TEMP.
TPSW1
PL3 - YW
-
S
+
4W STEER
CRAB STEER
SW4 - STEER
MODE SW.
222CR
FRAME LEVEL ENABLE
RELAY
CRAB STEER SOL.
TRANSMISSION
TEMP. SWITCH TPS1
FUEL GAUGE
FUEL GAUGE
FUEL LEVEL
SENDER
FRAME LEVEL
ENABLE RELAY
4H-223
4H-223-1
4H-47
4H-47-1
224CR
CARRIAGE ENABLE
RELAY
FRAME LEVEL
ENABLE LEFT
FRAME LEVEL
ENABLE RIGHT
CARRIAGE TILT
ENABLE RELAY
CARRIAGE
ENABLE TILT UP
CARRIAGE ENABLE
TILT DOWN
4H-217
4H-218
SW7 - CARRIAGE TILT
PUSH BUTTON
SW5 - FRAME LEVEL
PUSH BUTTON
REAR SWITCH ON JOYSTICK
FRONT SWITCH ON JOYSTICK
J
2
3
1
FRONT
19CR
BOOM E.O.S
BOOM UP
E.O.S
2H-14A
DIODE
D221
BOOM 40° ANGLE
SENSOR
212CR RELAY
BOOM ANGLE
28R CR
FRAME RIGHT
ENABLE RELAY
FRAME ANGLE
SENSOR
±3.0 DEGREES
28L CR
FRAME LEFT
ENABLE RELAY
65CR
FRAME LEVEL
ENABLE
28 CR
BOOM RAISE
DISABLE
Closed Below 40°
CLOSED BELOW 70°
BOOM UP
ENABLE VALVE
BOOM UP E.O.S
RELAY
BOOM UP
E.O.S SWITCH
BOOM RAISE
DISABLE RELAY
PS3
223ACR
R.A.S. RESTRICT MODE
ENABLE RELAY
F7
10 A
10 A
F4
F5
10 A
5 A
F19
F3
10 A
DIODE
D15A
DIODE
D16
220 CR
R.A.S. DRIVE/BRAKE
INPUT RELAY
244CR
RELAY
SUPPLY
MODULE
HEATER
241CR
RELAY
HEATER 1
SUCTION
LINE
242CR
RELAY
HEATER 2
BACKFLOW
LINE
243CR
RELAY
HEATER 3
PRESSURE
LINE
240CR
RELAY SCR
CONTROL
STAND STILL
SUCTION
BACKFLOW
PRESSURE
HEATER
HEATER
HEATER
DEF PUMP
DEF QUALITY,
LEVEL & TEMP
SUPPLY MODULE
HEATER
ENGINE DETAIL HERE
M6
M8H
M N
M N
SW26
DISCONNECT
SWITCH
REVERSE
SENSOR
REV. DETECTOR
REVERSE
WARNING SENSOR
OPTION
ACC
REVERSE CAMERA
OPTION
REV. MONITOR
REVERSE
REVERSE
CAMERA
SENSOR
TRACK
UNIT
TELE.
JMPR1
NOTE A
ME501-4
57DCR
STARTER
INTERRUPT
D57D
DIODE
TRACK UNIT
TELEMATICS OPTION
SCR CONTROL
30A
15A
AFTER SCR CAT
5A
PRIOR SCR CAT
5A
DEF LEVEL
-
HEATER VALVE, A/C
WIPER, FRONT & TOP
BLOWER
FAN/INT. LIGHT
F17
30A
F18
F15
F16
F14
F13
10A
5A
-
10A
CAB
OPTION
ENCLOSED
IGNITION/POWER RELAY
REAR AXLE LOCK
POWER PORT
HORN/BEACON OPT.
ROAD LIGHTS
REAR WIPER
BOOM LIGHTS
WORK LIGHTS
TRANS/B-U ALARM/PARK BRAKE
STEER SELECT/GAUGE/TRANS TEMP
F5
F10
F12
F11
10A
10A
5A
15A
5A
F9
F8
F7
F6
10A
F3
F4
F2
F1
10A
10A
10A
10A
OPTIONS
F20
FRAME/CARRIAGE ENABLE
10A
AUXILLARY HYDRAULICS
5A
OUTRIGGERS
10A
15A
5A
FRAME LEVEL INTERLOCK
F19
100A
F27
F26
20A
GLOW PLUG
FUEL PUMP
30A
F25
ECM
BRAKE LAMP
5JCR
CARRIAGE ENABLE
POWER RELAY
BOOM UP
56ACR
19CR
224CR
222CR
60ACR
FUEL PUMP
POSITIVE SHUTOFF
403ACR
FRAME LEVEL ENABLE
BOOM ANGLE
212CR
77CR
ENGINE RUNNING
255CR
REAR WIPER
258CR
FRONT WIPER
LEFT TURN SIGNAL
250ACR
RIGHT TURN SIGNAL
251ACR
TOP WIPER
258ACR
PARK BRAKE RELEASE RELAY
05CR
TURN/HAZ./BRAKE LIGHTS
65CR
FRAME LEVEL ENABLE
28CR
BOOM RAISE DISABLE
28LCR
FRAME LEFT ENABLE
28RCR
FRAME RIGHT ENABLE
11CR
GLOW PLUG
F21
F22
F23
F24
R.A.S. RESTRICT MODE ENABLE
223ACR
R.A.S. DRIVE/BRAKE INPUT RELAY
220CR
04CR
SWITCHED POWER FOR E.A.T.
235CR
POWER FOR SCR SWITCH
244CR
SUPPLY MODULE HEATER
241CR
HEATER 1 SUCTION LINE
242CR
HEATER 2 BACKFLOW LINE
243CR
HEATER 3 PRESSURE LINE
240CR
SCR CONTROL
STARTER INTERRUPT
57DCR
53
69
68
67
60
66
65
64
63
62
61
59
58
57
56
55
54
51
52
50
49
48
47
45
46
43
44
42
41
40
36
37
39
38
34
35
33
29
32
30
31
26
27
28
22
25
23
24
21
20
19
18
17
16
14
15
13
12
5
10
11
9
8
7
6
4
3
2
1
03A
04
B1
00B+
TT1
-
+
H.M.
54
57B
105
104
99
90
60
77
206
03
03
99
90
206
105
104
60
00
57A
60
60A
D00
DIODE
D00-1
DIODE
60A
04
00
05
26C
26
15
15
16
15A
51
215
216
26C
00
03B
03
60
03
60B
60C
77
60C
60B
60B
60
00
CANH
CANL
60
CANH
CANL
403A
77
WHITE
RED
BLACK
15
26C
26A
57
05
26
74
+
-
PREHEAT
1
2
7
8
26B
54
108
109
105
107
106
104
102
103
101
100
98
99
97
96
95
91
92
93
94
90
84
87
86
85
83
82
81
77
80
79
78
76
74
75
73
72
71
70
88
89
00
122
115
121
120
119
117
116
118
114
113
112
111
110
123
124
128
126
127
129
130
131
125
132
135
137
136
134
133
138
139
140
141
144
143
142
05D 49
05A
217
218
219
55
05B
222
224
223 223
223
47 47
47
05A
19
14
05A
14A
05R
65
213A
65
213
221
221
65
05T
28A
28B
65A 65A
65A
05R
28L
28R
05R
221
2
4
3
6
7
28L
28R
00
5
1
28
28
28C
N.C. (SERVICE BRAKE RELEASED)
221
223A
04
04
04
04
223
220
220
16A
03
60B
03
60C
CANH
CANL
57B
16
15
26
215
216
57A
000000
60
15
00
26B
CANL
57D
CANH
221
03
60C
60B
03B
57D
57E
HORN SWITCH
BOOM ANGLE SENSOR
BOOM ANGLE RELAY
FRAME LEVEL ENABLE
R.A.S LOCK INDICATOR
FRAME LEVEL SPEED
R.A.S. RESTRICT MODE
FRAME ANGLE SENSOR
FRAME RIGHT ENABLE
FRAME LEFT ENABLE
FRAME LEVEL
INTERLOCK LAMP
FRAME LEVEL ENABLE
PS3 SERVICE BRAKE
PRESSURE SWITCH
R.A.S. RESTRICT MODE
R.A.S. UNLOCK
R.A.S. UNLOCK
R.A.S UNLOCK
M206090AD-S1
3.41 Electrical Schematic - SJ1256 THS
3.41 Electrical Schematic - SJ1256 THS

Table of Contents

Other manuals for Skyjack SJ1056 TH

Related product manuals