EasyManua.ls Logo

Smeg SFA579X2 - Page 29

Smeg SFA579X2
32 pages
Print Icon
To Next Page IconTo Next Page
To Next Page IconTo Next Page
To Previous Page IconTo Previous Page
To Previous Page IconTo Previous Page
Loading...
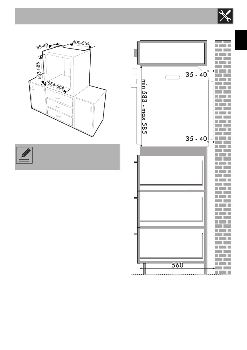
Installation
31
EN
Mounting into a column (mm)
Make sure that the piece of
furniture top/rear part has an
opening approx. 35-40 mm deep.

Related product manuals