EasyManua.ls Logo

Smith GC-160 - Suggested Piping and Wiring Connections for the 45 WN and 45 WE Versions Boiler

Smith GC-160
80 pages
Print Icon
To Next Page IconTo Next Page
To Next Page IconTo Next Page
To Previous Page IconTo Previous Page
To Previous Page IconTo Previous Page
Loading...
22
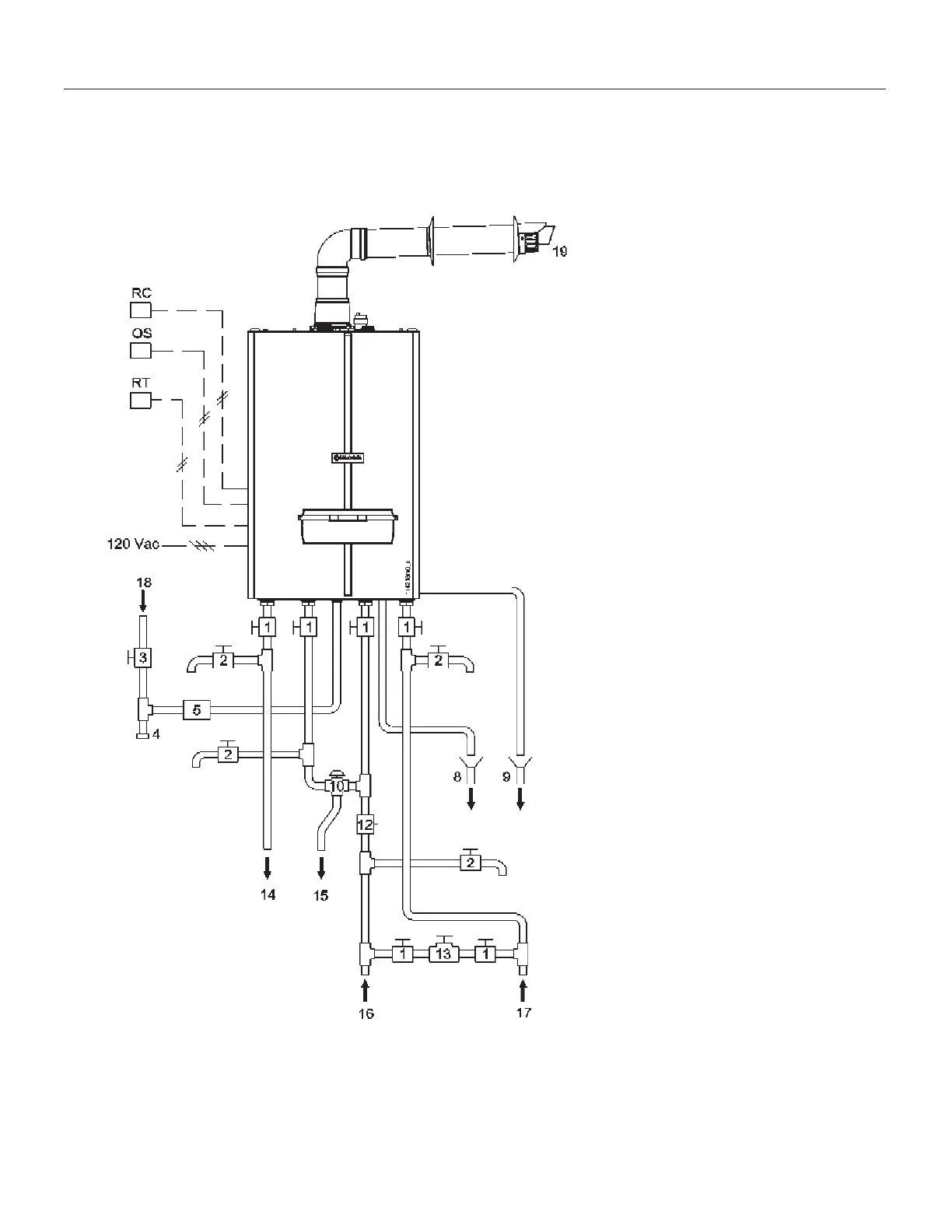
5.15 - Suggested
piping and wiring
connections for the
45WN and 45WE
versions Boiler
Figure 16 shows the suggested piping
and wiring connection for boiler
models 45WN and 45WE.
All component listed below, except the
flue terminal needs to be field supplied.
1 = ball valve
2 = drain valve
3 = Manual gas shut-off valve
4 = sediment trap
5 = ground joint union
6 = Circulator pump
7 = By pass valve
8 = Relief valve drain
9 = Condensate drain
10 = Domestic mixing valve
11 = Expansion tank
12 = Flow restrictor
13 = Fill valve
14 = Heating supply
15 = Domestic Hot Water
16 = Cold water
17 = Heating return
18 = Gas supply
19 = Concentric vent/air intake terminal
OS = Outdoor sensor (optional)
RC = Remote command (only for
45WE model)
RT = Room thermostat
120 Vac = Electrical supply
Figure 16 - Typical piping and wiring connections for a boiler models 45WN and 45WE
5 - INSTALLATION - Mounting & gas and water connections

Table of Contents

Related product manuals