EasyManua.ls Logo

Sony BVM-14E1E - Page 130

Sony BVM-14E1E
242 pages
Print Icon
To Next Page IconTo Next Page
To Next Page IconTo Next Page
To Previous Page IconTo Previous Page
To Previous Page IconTo Previous Page
Loading...
.5
16
17
18 19
-
'~
N _,
;:;; i=:
., ...
,$ ;jj
~
._..,
~
~
~"'.
..
~
...
.,;
..... ..,
..
;;:;
.;
O~.~ ... i
.. ..
...
~:::::: -o:::::
-
- -
,-,---
>
'!
..
...
...
...
..J
-
... ... ...
...
...
...
0
..
..
>
>
>
.,
,-.
N
...
~
ii:
ii
~
:::,
..
>
u
ii:
:c
Q
Q
..
..
Q
u
.. .. ..
..
...
..
,~ i;
:::, !!:
...
..
..
....... ... 0
.,
., 0
~
.. :::,
II: ..
II:
..J
..
..
._,__
---
BIAS·, REF
r
-) YS9 INB I
§:;l.-z
~
AD3
AD2 I
~~o
2.0<1
;,-<
~
...
ADI I
;:~ 5.1
R IDO I RE 3.2.ol;'
ADS II I
~~o
R SET UP
0,5·~
AD6
CLK I
,;:,,, 5.3
;,-<
AD7
.
2.9~
LI I
~~
CH LEVEL
AD8 10 I
DRIVE REF
2.0~
?::!'
AD9
ADl2
~0-1
GZ REF
5.1..;:
ADID
ADIi
,8
r/VII
YCC
y'
~
l
Mifili1PFV·ER
;;-;:) ...
""'·~-z
;:) N.C.
N.C, I -cJ
JR906
N.C.
I';) O
R BIAS' IK
1.3 -) N.C.
··~ ADI
,,.....,,.
., ' -
R
Cur
OFF
2.6•;>-<
·
,-.:.. 5.3
~) AD2
CLK
I;;: O
R DRIVE IK
Z.O•i>;') AD3
Ltfu;~
R DRIVE V
3.6·~--
""~)
?-
,,..
;) N,C.
N.C. , ;:;;J
r
=) N.C.
N.C.
, ;;;J
YCC / ...
'T
20·
21
22
~
ie
N
N
;
;::
~
., '
,-.
.., z
., -
.. ..
.....
0
....
I.:,
..J
u
'i
II:
Mifil~PFV·EF
IOOIRE
r-) ...
INB
~-z G
') ...
A02
~~2.4
G SET UP
3.2"'~
ADI
~
-
;,:::,,,2.3
B SET UP 0.3 .?::') AD5
II
~~o
8 100 IRE
0.6·~ ...
CLK
~5.3
CLAMPP DLY
l-
5
'"::::<y AD7
LI
I
;§S--
Z-6"i'.::) AD8
10
8-Y
PULSE
LEVEL
~) ....
/:!
AD12
::::
R·Y PULSE LEVEL 3.3 ·;><
3
~J AOID ADIi
~
r{J VII
YCC
y
Mifim1PFY-£R
J;""""";:) Y9S
IINBl~-2
-J N.C.
•. c. ,~
?"'
r
4.2. ~) N.C.
N.c. 1~~0
G 8 IAS · IK
"='J ADI
., ',,;::~ 5.3
G. CUT Off
U•,:<) AD2
CLK ,_ O
G
DRIVE IK
Z-
5
•~ AD3
LI 1"';~
G
DRIVE
V
3-8•;,-<
ID/;:;
;:) ...
•• c. 'S;
;:; N.C,
C );::
·~~
.-;i
T
BK
23
; io
....
;;; co
~!::
.,
z t;
: it
0
~
~
II: ::l
>
~
..
...
~~-
>
2i
II:
Q ..
.,
..
.. :::,
..
u
;;;
....
u
'r
..
..
:c
..
ii:
..
..
..,
..
z
...
u
..
..
..
BK
..
..,
..
..
...
..
~
:c
u
24
25
vss 8118 :;:,--,_
2
;,;:: N,C. N.c.
~
m-
CHROMA z
5
•'.§i :~:-··:; F:a=>-~-·
0
___ -,
!CONTRAST~
A112 CLK r.:F"'-5_.3 __ ,
BRIGHT ·
~
ADJ LI
~~
BRT CENTER 2-
5
;::
1
-
90
8
2.5~/ N.c. I".:'
N.C. ;::;
r: N.C. N.C. ;;;
r--· .. ___ •c_c_J_~=>----t--t-t--,
I +5V
rr} vss
I- N.C,
(.:J N.C.
l_a_B_l-:A-:S:--:1::K~--,--,;) ADI
1'-'B=---=C~U_T~O~F~F ___ 1_.u..,,.·>:;:)AD2
INB :;:;---,
2
N,C.
~
m-
N.C, ';; 0
., "2~ 53
CL• '2.r~--::-
0
·--t-~
LI~
r,B;-D::R::l::'.V::E-::1
_K ---:2::--6::;; •;;I.·;:; ADJ
,a_D""R_1_v_E_v ___ 2_.-: 6••~;:: , ..
3_2,,.;;:J N,C,
?:1 N.C.
;:: vea
'Y
ID~
N.C. '2)
N,C. "2)
YCC r-=J---l--t--1--1---,
'r
~oon
4.~ L.._ _____ __,_ ____ --+-++-t-+--------i.-.,__ ____ ..,..,.-r"t--t------
1CHtP~
r~::-
,~ VII
~
•• 31* IC90514/81 I AW.
~~m~-~2;_1- ____ M_c_~_~_2_~_~ ...... ~~~2~0•
1
!L-
8
.....
,~~~r~P+---+--+----~
3
-~90;1VBI
~
MC74HC244AF :
' p
---
,..-1--------r---- .. ..-.' ·~
0.1"' '1· JC9~~~) !~J~:
------~..-I MC74HC24"'1F 'CHIP
o-~">..:.~1..1.lio'-t--+-·-· ------+-+----------------------------!
----+--------+-------'- o• 119
~g~~I~
-----~--.0 IT.
I. 1CHIP
o"' 1; •o
i+S.Y j,,+--------+-----p---,.----,r---!_R~93!'.4:-----t--t
, D904
155352
JC90516/8)
MC74~244AF
R940
100k
'CHIP
iOOk
:CHIP
·----+---------i-~l':t1" ;~~·-----+---,,-,r---------t--t--------------------------------------------------------
1 o" L1.'
9
90
1c9os.3/e1 _;~~gg:
~' MCT4HCZ44AF :cHJP
----1--------+----:t-iQ i2
o• jl "'o
IC!ltl5 17/81
~
R6Jt
3
IIC7411CZ44M :CHIP
-~
tc,Q Q901
,.u -i-/TCl«EKA
,-----''!.H Q
.-----,-,--'-· 3_• .... ___ i-r, 19 •5_3
nr:a,
,----1,....>1 >_.:i__,,,, _________ _,
o"' 1 •o
19
0
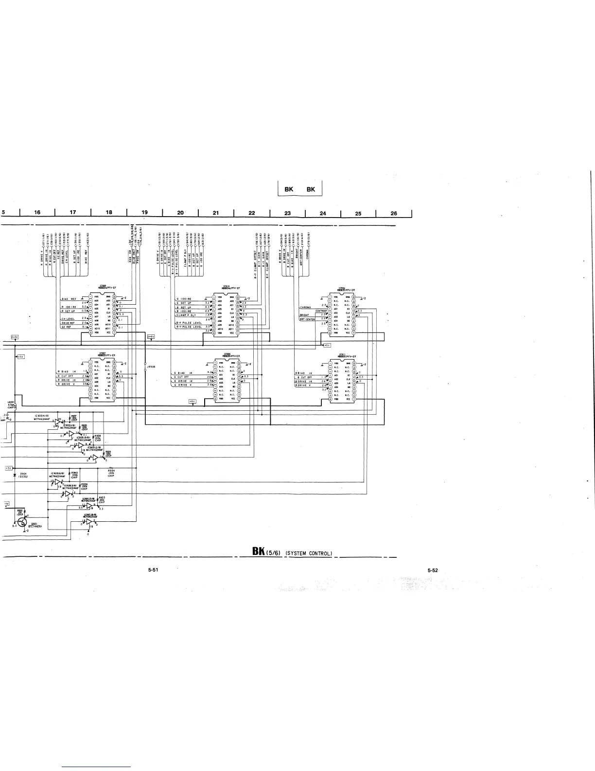
BK ( 5/6) (SYSTEM CONTROL)
26

Related product manuals