EasyManua.ls Logo

Sony BVM-14E1E - Page 131

Sony BVM-14E1E
242 pages
Print Icon
To Next Page IconTo Next Page
To Next Page IconTo Next Page
To Previous Page IconTo Previous Page
To Previous Page IconTo Previous Page
Loading...
~
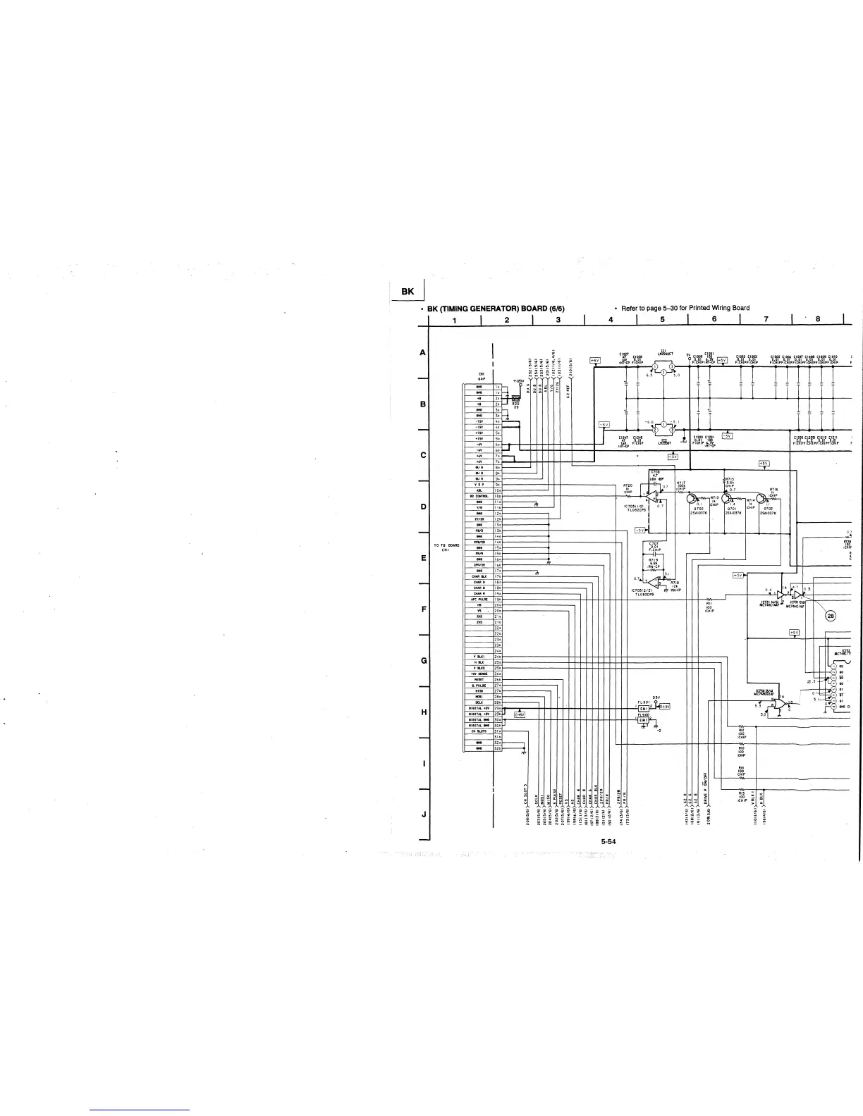
BK (TIMING GENERATOR) BOARD (6/6)
Refer to page 5-30 for Printed Wiring Board
1
A
B
C
D
TO TB BOARD
CN I
E
F
G
H
J
2
3
4 5 6
I
CNI
"'
'
"
- - -
~~~~~~
~
~~_.,~., .,-.... -,, ::',
64P
+120V Cl
....
...
"' ma: -J "'N
---:-: gig:~~
~-+~
••
••
2,
--+:'2-1, R20
...
...
---:-l: 8 39
-tsv
-ISV
4,-
---t-4-t,_
+ISV
s,
+ISV
s,
-•v
C~Q/
7
CID28
16V 0,01
•HT-CP F,CHIP
l l
6, 5
1
-6 6
2
-•v
+&V
bo ' r
'---1--=b.:....tb
~
.:__-1--'.-'7,~-,
'---l-27~,-t-:.-:.-:.~ .. _-_-_-_-~i"-t-t-t-t-t--t,:_..::_..::_..::_..::__-_-.:-_ ______________ ...,
+&V
DUG
Bo
~
"".
Bot-------' C708
---- 4.7
!lU A
V S P
--4-:-l: t--------' R720 ~V~P
100 1k 1
1
~:
2
I~
0
·
7
ABL
82 CONTROL
:CHIP I 1 f
...
IO~f----------++---------+--w~~...!.,('
---11--'--lo 4 +
--4-11-lti rt, IC705!l/2J Q.7
Y/3
...
2l/2G
TLOB2CPS
I 2,
12, 1---------1----'
----
.... 13,
R7l7
100k
;CHIP
-~=R713
\.::9f."~ ,
0./ :CHIP
0700
2SAl037K
7
. ~7J~
:CHIP
0.7 R7!6
~R714~
~~4
... lk 'rd'1~1 •••
070 I :CHIP 0702
2SAI037K 2SA\037K
PBIB
....
\3b
\ 40
§L..---t--+-----+--4----1- ........ ---+~
2PIV2B
14b t---------+-------------1---
I-------
...
,s,,_ _______ .,.
1-------
PAIR
...
2PIV2A
...
I Sb
Ibo
16b
, .
C 707
0.01
H~
R719
6.8k
:RN-CP
CHAR a..K
__ _,_17-lo 1------,,,-
170 _6 r;-
1
18,
0
·
7
&. 5 ~18
CHAR G
CHAR B
8
C120B C1Z09 Ct21D Cl21 I
F,MtPF,l:i1PF~cmPF~cAl.
CHAR R
\Bb IC70512/21
;~~~p
0.4 µ,&
4
4
·
7
0.3
I
g, !-------------- TL082CP.S ,----lf-----'~.._,,-11' 2 ~E'---t-------
---19t--------------++-+-+--+-l-l~~>-----------++-+--'Wl~--'I 1,1 3 I"._
AFC Pll.SE
HS
VS
2HS
zvs
_ _,.____,' Jft\ I~
~
IC731 CY6l~a!..~-----
ZOo
~~
7 C1 j:rl MC74HCl4.F
20b :CHIP
21, -28
21 b
V IIUCI
HBU:
22,
22,
23,
23b
24,
24b
2s,
v·a .. n
2s,t------------1-+-+--+--1--1--1---1---4--4--4- __________ +-+--1---
,_ ____ _,___,
-t5V SENSE 260
RESET 26b
9,PULSE 270
"190 27b 1---------
.cl91 2801--------
t-----+---J
D5V
L,m"~,c~u:~wf2¥,a~,:J:;==:;:==:::i...J-~i.iiii-l--l--l-_)__)_jjj_~F L 90 i
I BIBITAL -tSV 290 J I "EM I
2
D+5V
,_a_1_&1_T_AL_+sv_+2_9__,b
~
Fl 900
BIGITAL BNB 30 o ~u--'==--+-+-+-l--i--i---l---l--l-l-l~~>--1-I-I-....Ll
1
EM r
BIBITAL GN8 30b 3
CH SLOTS 31 o
31 b
BflO 32,1----,
8NB 32b ,_ ___ Jr ..
.,
I
...
~
,:
'-'
"'
~
0
N
"'
~
.,,
_,
:;\
0
2
2
"'
.,,
...
=>
..
":
...
"'
.,,
"'
..
.,, .,,
> ,:
,
~ ~
s
~ ~
m
N N -
~
G:G:l~CD~
a: a: D: ...... a:
<<cl a: ......
a~
a~~
;
5-54
..
~
~
.. a)
N Q.
-2
.. "' a)
N N N
"'"'"'
~
i5
0
N
R12
100
:CHIP
RIO
100
,CHIP
R\4
100
C~IP
2
Jmacirz~J
4
s!~
5.0
--
RS
,..
;:
..
~
i:: rt);
..
.5
..
,..
91
0-t::~~
QI
5 ,_ l::!1::
0 ,..,_
QI
... Cl

Related product manuals