EasyManua.ls Logo

Sony DAV-LF1 - Page 26

Sony DAV-LF1
116 pages
Print Icon
To Next Page IconTo Next Page
To Next Page IconTo Next Page
To Previous Page IconTo Previous Page
To Previous Page IconTo Previous Page
Loading...
26
GB
Notes
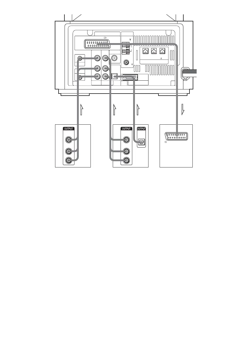
Make connections securely to prevent unwanted noise.
Refer to the instructions supplied with the TV.
The system cannot output component video signals.
The system cannot output an audio signal to the connected TV. Only the audio signal of the TV is output from the
system speakers.
Tips
When you want to output the TV sound or stereo sound of a 2 channel source from the 6 speakers, select any sound
field other than “Auto Format Direct Auto” or “2Channel Stereo” (page 63).
If a distortion occurs during playback of the component that is connected to the VIDEO AUDIO IN jacks, connect
the component to the SAT AUDIO IN jacks.
If you connect a digital satellite receiver with an OPTICAL OUT jack
The digital satellite receiver can be connected to the SAT OPTICAL DIGITAL IN jack instead of the
SAT AUDIO IN (L/R) jacks of the system.
The system can accept both the digital and analogue signals. Digital signals have priority over analogue
signals. If the digital signal ceases, the analogue signal will be processed after 2 seconds.
If you connect a digital satellite receiver without an OPTICAL OUT jack
Connect the digital satellite receiver to the SAT AUDIO IN (L/R) jacks only of the system.
R
AUDIO
OUT
L
VIDEO
OUT
R
AUDIO
OUT
L
VIDEO
OUT
INTPUT(FROM VIDEO)
EURO AV
OPTICAL
DIGITAL
OUT
IN
VIDEO
OPTICAL
DIGITAL IN
IN
VIDEO DIR-T1
FM
75
COAXIAL
AM
IN
LL
AUDIO
R
R
IN
AUDIO
FRONT R
CENTER FRONT L
EURO AV ANTENNA
OUTPUT(TO TV)
IMPEDANCE USE 4
SPEAKER
SAT
SYSYTEM CONNECTOR
VIDEO
PHONES
REMOTE
CONTROL
OU
T
OU
T
OU
T
IN
TV TV, VCR, etc.
Digital satellite receiver or
PlayStation 2 etc.

Table of Contents

Other manuals for Sony DAV-LF1

Related product manuals