EasyManua.ls Logo

Sony DCR-HC44E - Power Block Diagram (1;3)

Sony DCR-HC44E
67 pages
Print Icon
To Next Page IconTo Next Page
To Next Page IconTo Next Page
To Previous Page IconTo Previous Page
To Previous Page IconTo Previous Page
Loading...
DCR-HC44E/HC46/HC46E_L2
3-7
POWER (2/3)
(PAGE 3-8)
A
05
CN2001
FAST_CHARGE
INIT_CHARGE_ON
VTR_UNREG VTR_UNREG
A_1.5V
MT_5V
D_2.8V (NS_2.8V)
RP_2.8V
A_2.8V
A_4.6V
AU_4.6V
A_4.6V (EP_4.6V)
RP_4.6V
USB_3.1V
IC_6001_13.5V
EP_8.5V
CAM_15V
EVER_3.0V
CAM DD ON
CAM_-7.5V
D_2.8V
AU_2.8V
A_2.8V (EP_2.8V)
VTR_UNREG
C/D_UNREG
MT/15.5/BL_UNREG
BATT/XEXT
ACV_UNREG
ACV_GND
BATT_UNREG
BATT_GND
BATT_UNREG
BATT_SIG BATT_SIG
BATT/XEXT
7
19 - 2313 - 17
24
1 - 58 - 12
BH001
BATTERY
TERMINAL
C
+
DC IN
J001
LF2001
FP-381
FLEXIBLE
BOARD
VC-418 BOARD (1/3)
CR-063 BOARD
CN002
LANC_DC LANC_DC
CN003
18
CN1006
19
1 - 7
36 - 30
ACV_UNREG ACV_UNREG
CRADLE
27
1 - 4
BATT/XEXT BATT/XEXT
1621
21
Q2003,
Q2004
D2006
Q2005
DOUBLE
INSERTION DETECT
BT601
LITHIUM
BATTERY
LI_3V
CN1004
(1/2)
SI-053 BOARD
(1/2)
10
CN606
(1/2)
4 23
17
LANC DC LANC_DC
F004
F002
F003
F001
HI CONTROL
(15/18)
IC5001
J1
E8
E9
G1
G2
C1, D3
Q5002
D8
F9
C6
H2
BATTERY
CHARGE
DETECTOR
A9
XLANC_POWER_ON
XLANC_ON
XCS_DD
BATT_IN
VTR_DD_ON
F8
G8BATT_SENSE
ACV_SENSE
FR_EVER_SO
FR_EVER_SCK
BATT_SIG
XLANC_PWR_ON
XLANC_ON
VTR_DD_ON
XCS_DD
BATT_IN
INIT_CHARGE_ON
FAST_CHARGE
BATT/XEXT
D_2.8V
D_2.8V
IB_SO
IB_SI
INIT_CHARGE
FAST_CHARGE
BATT/EXT
VOUT
HI_EVER_SO, HI_EVER_SCK
IC2201
DC CONTROL,
RESET,
LANC DRIVE,
DRUM/CAPSTAN
PWM DRIVE
(17/18)
44
13
55
52
CAM_DD_ON
5
50
45
49
64
12
46
58
14, 15
D2201
VCC2
60
VCC3
61
VCC1
WAKE_UP
XCTL2
LD
REG6CTL
41
VR
VTR_DD_ON
VR
VTR_DD_ON
VR
OUTC1
CTL1
DIN
CLK
VBATT
VOUT3
VOUT4
OUT1-1
66OUT1-2
62VB
63VCCO1
67VCCO2
IN1
OUT2
VS2
IN2
OUT3-1
IN3
L2205 L2209
SWITCHING
Q2201, Q2208
72OUT3-2
CAPSTAN/
DRUM
SWITCHING
Q2205, Q2206
65
VS1
68
69
VS3
71
11
L2206
SWITCHING
Q2203
70
10
L2208
SWITCHING
Q2202, Q2209
OUT4
VS4
IN4
73
74
9
L2207
L2204
L2214
L2215
L2210
L2213
L2212
SWITCHING
Q2204
IN7
6
L2217
L2220
L2218
VOUT1
48
VOUT2
47
L2201
SWITCHING
Q2207
8.5V REG
Q2211
15V REG
Q2210
OUT7
79
1.2V REG
Q2212, Q2213
VCONT5
1
VOUT5
2
-7.5V REG
Q2215, Q2216
D_1.5V
D_1.2V (A_1.2V)
D_1.2V
VCONT6
3
VOUT6
4
D2204
D2205
D2203
D2202
D_2.8V
CHARGE_LED_VDD
CONTROL KEY BLOCK
(CF17000)
D001
CN1002
4
8
CHG
FUCTION
KEY
Q2001,
Q2002,
Q2006
CN601
A/V OUT
4
XPOWER_SW
XMODE_SW
CN1012
(1/2)
CONTROL KEY BLOCK
(SS17000) (1/2)
9
10
POWER
B8
A8
ON
OFF (CHG)
MODE
D 2.8V
POWER (3/3)
(PAGE 3-9)
B
XPOWER_SW
XMODE_SW
3.1V REG (17/18)
IC2202
5
7
6
+
-
A_2.8V
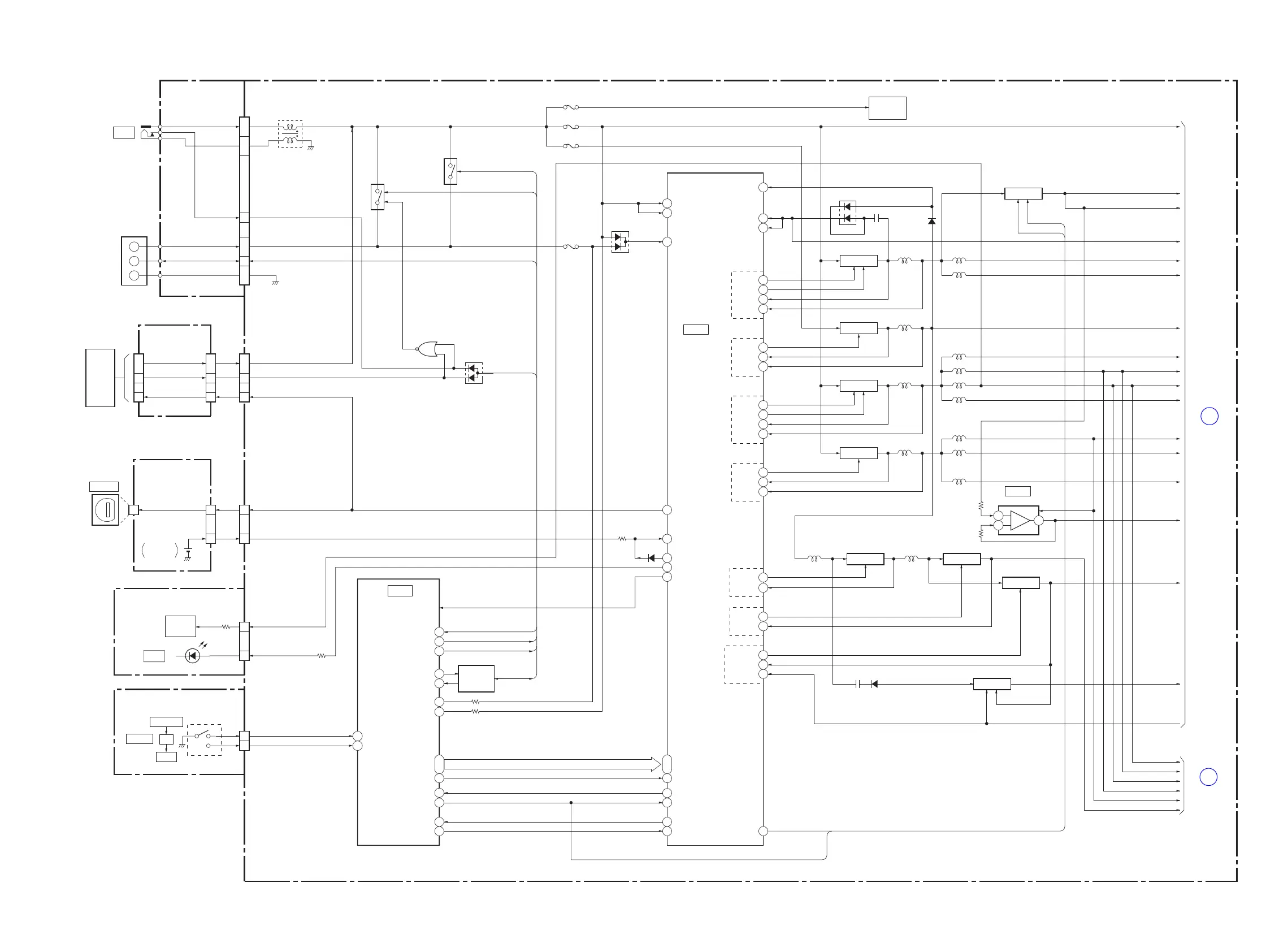
3-7. POWER BLOCK DIAGRAM (1/3) ( ) : Number in parenthesis ( ) indicates the division number of schematic diagram where the component is located.
www.freeservicemanuals.info
1/17/16
Published in Heiloo, Holland.

Related product manuals