EasyManua.ls Logo

Sony DSC-T70 - Page 22

Sony DSC-T70
47 pages
Print Icon
To Next Page IconTo Next Page
To Next Page IconTo Next Page
To Previous Page IconTo Previous Page
To Previous Page IconTo Previous Page
Loading...
DSC-T70/T75_L2
3-4E
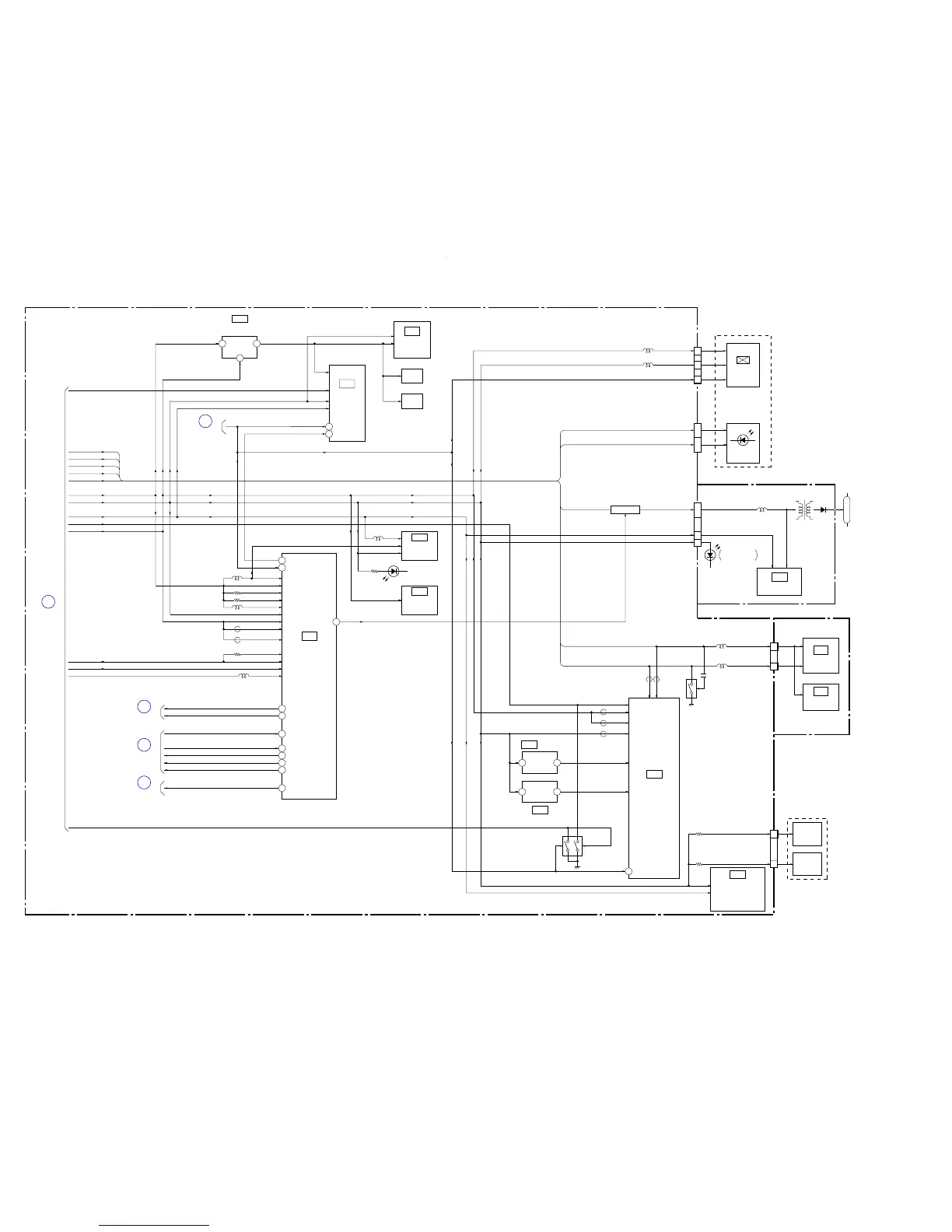
3-4. POWER BLOCK DIAGRAM (2/2)
( ) : Number in parenthesis ( ) indicates the division number of schematic diagram where the component is located.
XACV_IN
IC_211_1_SI
IC_211_1_SO
XIC_211_1_SCK
XCS_IC_202
LENS DRIVE,
IRIS MOTOR DRIVER,
FOCUS MOTOR DRIVER,
ZOOM MOTOR DRIVER
(7/10)
IC401
CLOCK
GENERATOR
(2/10)
IC201
AUDIO/VIDEO
AMP
(9/10)
IC601
ZM_SENS_VCC
M_5.0V
D_3.0V
CN401
FC_SENS_VCC
LENS BLOCK
FOCUS
RESET
SENSOR
ZOOM
RESET
SENSOR
ST-172 FLEXIBLE BOARD (2/2)
CN701
(2/2)
D001
ST_UNREGST_UNREG
ST_UNREG_ON
T001
FLASH
UNIT
L001
FLASH CONTROL,
CHARGE CONTROL
IC001
M_5.0V
D_3.0V
D002
CAM_13V
CAM_-7.5V
CAM_13V
CAM_-7.5V
CAM_3.5V
D_3.0V
D_1.8V
XDD_SYS_RST
CN301
CCD IMAGER
IC001
HIGH SPEED
BUFFER AMP
IC002
CD-710 FLEXIBLE
BOARD
16
25
3.0 inch
COLOR
LCD MONITOR
LCD901
BACKLIGHT
LCD
CN709
CN708
D706
(MS ACCESS)
3
22
23
7
6
12 - 15
1, 25, 6
BL_L
BL_H
BL_L
BL_H
XRESET
VDD
VDDL
D_3.0V
D_3.0V
D_1.8V
D_1.8V
M_5.0V
D_3.0V
D_1.8V
M_5.0V
IC503
OPTICAL
IMAGE
STABILIZATION
DRIVE
(8/10)
IC211
CPU
(3/10)
(4/10)
(5/10)
SE501
IC506
PITCH/YAW
SENSOR AMP
(8/10)
SE502
PITCH
SENSOR
YAW
SENSOR
29
32
R255
GPS_13
W7
L303
L701
L702
L231
L602
R712
L302
C355
FB301 FB308
FB302
R405
R404
LDO_2.3V
FE_1.8V
FB306
FB303
CCD SIGNAL
PROCESS,
TIMING GENERATOR
(6/10)
Q303
-7.5V
DISCHARGE
IC301
RSTB
E11
2.3V REG
(6/10)
IC303
4 VDD VOUT 3
1.8V REG
(6/10)
IC304
6 Vin Vout 4
2.8V REG
(8/10)
IC507
A_3.0V IC_503_2.8V
D_1.8V
D_3.0V
M_5.0V
XDD_SYS_RST
XDD_SYS_RST
XDD_SYS_RST
XIC_211_IC_503_RST
VDD
CE
1
4 VOUT 3
XDLA6
GPE_09
H10
RESET_NA7
Q305
3.0V/3.5V
DISCHARGE
D_1.2V
D_1.5VD_1.5V
SY-183 BOARD (2/2)
A_3.0V
DDR_1.8V
D_1.8V
D_1.8V
R252
R253
L211USB_3.1V
EVER EVER
L601
D_3.0V
D_3.0V
AU_AVCC
AU_AVCC
GPE_00G8
XRESET_REQ
XPWR_OFF
XIC_211_RST_REQ
W12
XRESET
AB18
GPE_05K8
SIO1_RXD
G18
SIO1_TXD
B24
SIO1_SCK
H18
GPS_04
W20
POWER (1/2)
(PAGE 3-3)
B
POWER (1/2)
(PAGE 3-3)
E
GPE_15
MS_PWR_ON
T7
POWER (1/2)
(PAGE 3-3)
D
POWER (1/2)
(PAGE 3-3)
A
POWER (1/2)
(PAGE 3-3)
C
D_1.2V
ST_UNREG
D_3.0V
A_3.0V
CAM_-7.5V
CAM_13V
BL_H
BL_L
M_5.0V
CAM_3.5V
DDR_1.8V
D_1.8V
Q709,710
B+ SWITCH
FB292
FB293
AF illuminator/
self-timer lamp