EasyManua.ls Logo

Sony FCB-CX12E - Page 57

Sony FCB-CX12E
66 pages
Print Icon
To Next Page IconTo Next Page
To Next Page IconTo Next Page
To Previous Page IconTo Previous Page
To Previous Page IconTo Previous Page
Loading...
57
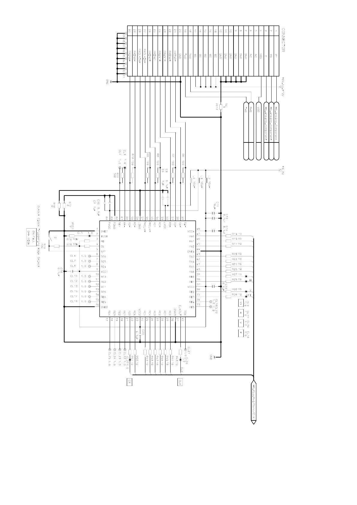
Specifications
IC
Example
THC63LVD104C (Thine Electronics,Inc.)
BU90R104 (ROHM Co., Ltd.)
• When using the circuit example, use 1-N crossover cables. (The pin numbers of the unit are reversed in the
circuit example.)
• SW selects whether to input at the rising edge or falling edge of the signal.

Related product manuals