EasyManua.ls Logo

Sony ICF-CD2000 - Schematic Diagram - LCD;KEY Boards

Sony ICF-CD2000
44 pages
Print Icon
To Next Page IconTo Next Page
To Next Page IconTo Next Page
To Previous Page IconTo Previous Page
To Previous Page IconTo Previous Page
Loading...
ICF-CD2000/CD2000S
– 45 –
– 46 –
– 47 –
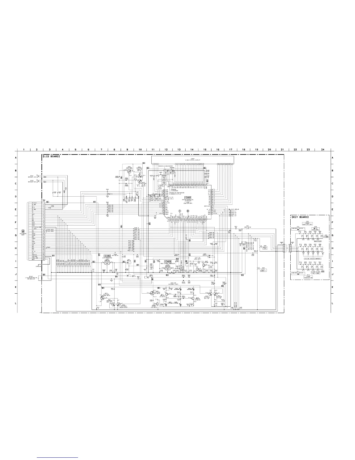
6-7. SCHEMATIC DIAGRAM – LCD/KEY Boards – See page 42 for Waveforms.
Note on Schematic Diagram:
All capacitors are in µF unless otherwise noted. pF: µµF
50 WV or less are not indicated except for electrolytics
and tantalums.
All resistors are in and
1
/
4
W or less unless otherwise
specified.
% : indicates tolerance.
C : panel designation.
U : B+ Line.
Power voltage is dc 6 V and fed with regulated dc power
supply from external power voltage jack.
Voltages and waveforms are dc with respect to ground
under no-signal (detuned) conditions.
no mark : FM
[ ] : CD PLAY
: Impossible to measure
Voltages are taken with a VOM (Input impedance 10 M).
Voltage variations may be noted due to normal produc-
tion tolerances.
Waveforms are taken with a oscilloscope.
Voltage variations may be noted due to normal produc-
tion tolerances.
Circled numbers refer to waveforms.
Signal path.
F : FM
Abbreviation
CND : Canadian model
JE : Tourist model
SP : Singapore model
(Page 36)

Other manuals for Sony ICF-CD2000

Related product manuals