EasyManua.ls Logo

Sony MX-P21 - Page 16

Sony MX-P21
54 pages
Print Icon
To Next Page IconTo Next Page
To Next Page IconTo Next Page
To Previous Page IconTo Previous Page
To Previous Page IconTo Previous Page
Loading...
P21
MX-P21
MX-P2
44av
44av
Y
:
JI0I-6
Jlol-5
Jloli-4
Jl02-15
JIOlI-3
Jl02
-16
Jl01-2
JlOl—
1
peice
ca
ra
a
rem}
Luts
|
ig
pobre
|
ave
Nee
©
«
©
Ie
=
:
zl
|g
=
008
e
=
a
0,00!
=
1
$506
|
2
|
CNIO3
i
{HA-|
BOARD]
iva
>]
{HA-|
BOARD]
ileal
{HA-|
BOARD)
#
6
(SEE
PAGES
28-30
#3(SEE
PAGES
28-30)
#
1(SEE
PAGES
28-30)
|
:
13,3V
“133V
set
BBV
16.6V
cniog
7
'4-4V
CN
102
eV
cnloz
-14.4V
16.6V
cniog
14.4
3
p>
oF
of
08
09
Wall
ol?
ME
N4,!5
9!
2
od
dt
ol
o
G2
Od
04
6
of
09
glo!
!
012
o!38!4q
9!
b2
3
04
09
6
97
08
09
Doll
ol2g/3440
Pre
rer
errr
rr
rai
iekeckece
wu
coat
EP
rE
3
t
|
o.
HT
|
ee
|
TT
Ey
|
(16,11
PIN}
i
14.4v
oor
a
:
Lt
ea
[4
4
I4.4v
15
CONDUCTOR
FLAT
CABLE;
BLi
44v
44av
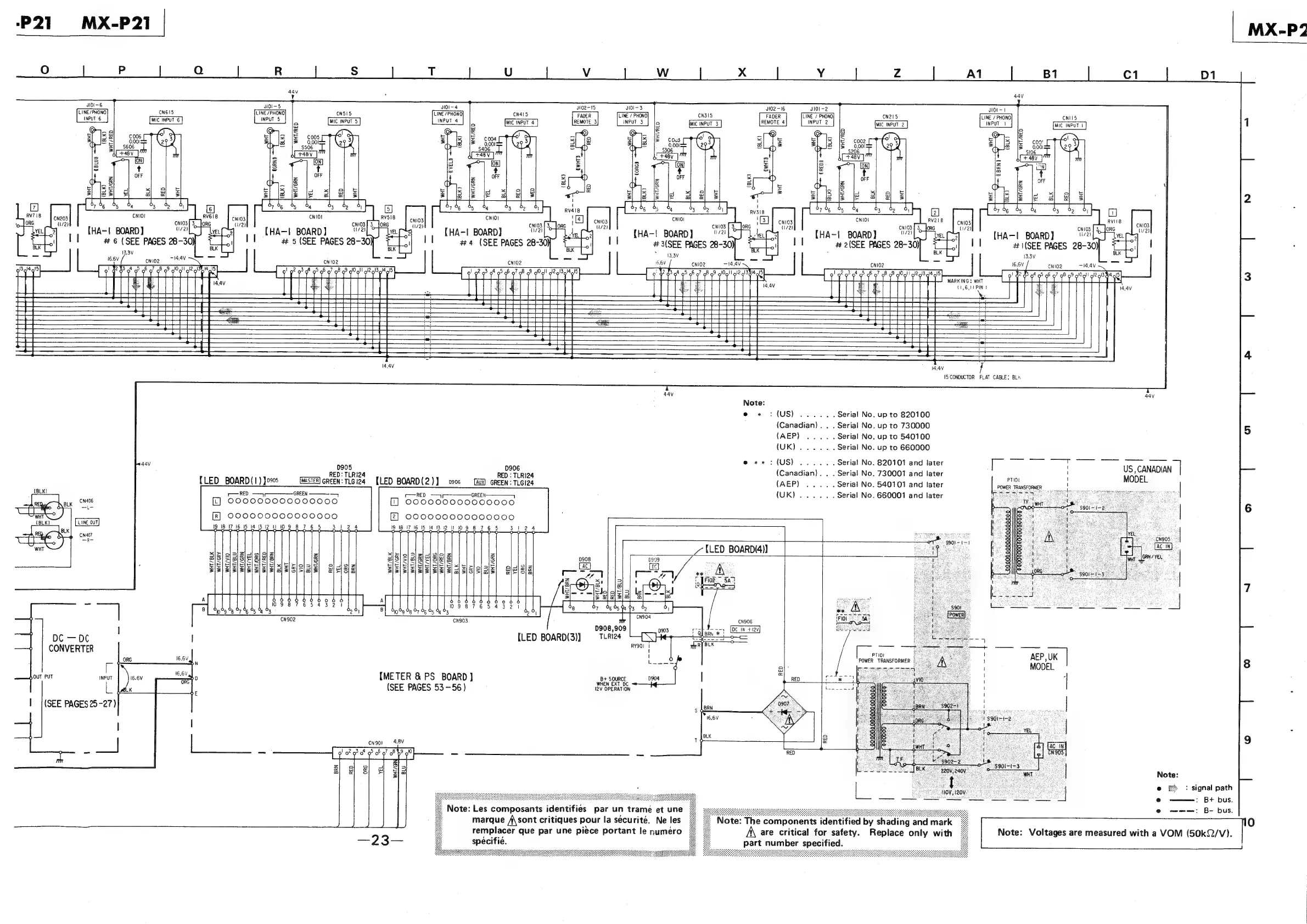
Note:
e
«
:(US)......
Serial
No.
up
to
820100
(Canadian).
.
.
Serial
No.
up
to
730000
5
(AEP)
.....
Serial
No.
up
to
540100
(UK)...
...
Serial
No.
up
to
660000
@e«*
:
(US)
......,
Serial
No.
820101
and
later
lye
et
ee
o
dey
TERIA
ee
Ries
(Canadian).
.
.
Serial
No.
730001
and
later
v
us,
CANADIAN
|
[LED
BOARD
(1
)
Jose
(ASTER)
GREEN:
TLGI24
[LED
BOARD(2)]
_
os06
GREEN
:
TLG124
(AEP)
.....
Serial
No.
540101
and
later
POWER.
TRANSEORIER
i
r——
REO.
—-;>————GREEN
ol
RED
—4r—
GREEN
(UK)
......
Serial
No.
660001
and
later
CN406
(OlOTOTelerelelerelelelelerere)
[]
C0C0000000000000
6
abs
fr]
OODOODODOCOCCCCO00CO
OOO0CCOO0CO0000CO0O
19 18
17
16
15 14
13
12
109
CN407
Dhl
7
|
CN906
|
0908,909
DC
—DC
[LED
BOARD(3)]
TLRI24
;
RY901
CONVERTER
8
D
[METER
&
PS
BOARD
]
wee
SOURCE,
:
(SEE
PAGES
53-56)
VOPERATIN.
9
Note:
e
&
:
signal
path
e
B+
bus.
Note:
Les
composants
identifies
par
un
trame
et
une
eo
———:
B-
bus.
marque
\sont
critiques
pour
la
sécurité.
Ne
les
remplacer
que
par
une
piece
portant
le
numero
specifie.
Note:
The
components
identified
by
shading
and
mark
are
critical
for
safety.
Replace
only
with
part
number
specified
Voltages
are
measured
with
a
VOM
(50k22/V).

Other manuals for Sony MX-P21

Related product manuals