EasyManua.ls Logo

Sony MX-P21 - Page 28

Sony MX-P21
54 pages
Print Icon
To Next Page IconTo Next Page
To Next Page IconTo Next Page
To Previous Page IconTo Previous Page
To Previous Page IconTo Previous Page
Loading...
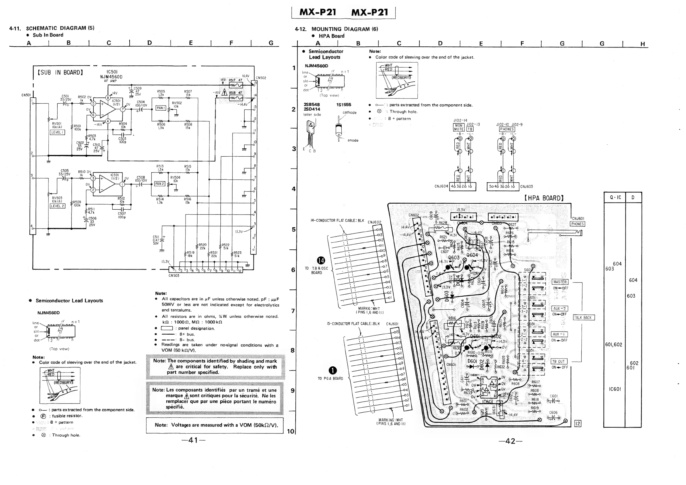
4-11.
SCHEMATIC
DIAGRAM
(5)
@
Sub
In
Board
A
B
Cc
|
{SUB
IN
BOARD]
paleo
AF
AMP
C501
R502
OV
33/25V
=
5)
ov.
RV501
1Ok(A)
100k
R503
4.7k
C502
[+
33
25V
505
3zye5y
RAO
ON
@
Semiconductor
Lead
Layouts
NJM4560D
line
af
n+1
or
slit
or
dot
12
a
(Top
view)
Note:
©
Color
code
of
sleeving
over
the
end
of
the
jacket.
@
oO~—-:
parts
extracted
from
the
component
side.
e
©
::
fusible
resistor.
@
es
1
-B
+
pattern
4
e
®
:
Through
hole.
+
on
i
|
ov
\donev
Ro
10k
ov
@
(1)
=
PAN
2
ian
RV503
R514
1Ok(A)
R509
1.3k
LEVEL
2
100k
pay
4.7k
c507
+L
506
100p
33
25V
Note:
e
All
capacitors
are
in
uF
unless
otherwise
noted.
pF
:
uuF
5OWV
or
less
are
not
indicated
except
for
electrolytics
and
tantalums.
e
All
resistors
are
in
ohms,
%W
unless
otherwise
noted.
k2
:
10002,M2
:
1000k2
[7
:
pane!
designation.
:
B+
bus.
———:
B-
bus.
Readings
are
taken
under
no-signal
conditions
with
a
VOM
(50
kQ/V).
Note:
The
components
ide’
Yy
ig
A
are
critical
for
safety.
Replace
only
with
part
number
specified
Note:
Les
composants
identifies
par
un
trame
et
une
marque
A\sont
critiques
pour
la
sécurité.
Ne
les
remplacer
que
par
une
piece
portant
le
numéro
specifie.
Note:
Voltages
are
measured
with
a
VOM
(50k{2/V).
MX-P
21
MX-P21
|
4-12.
MOUNTING
DIAGRAM
(6)
©
HPA
Board
8
10
@
Semiconductor
Note:
e
Color
code
of
sleeving
over
the
end
of
the
jacket.
Lead
Layouts
NJM4560D
line
es
n+
or
slit
or
:
dot
12
n
(Top
view)
2SB548
181555
D41
Be
ae
cathode
e
®
_:
Through
hole.
Fa
e
:
B+
pattern
anode
Fce
14-CONDUCTOR
FLAT
CABLE:
BLK
cyyeo2
®
TO
TB&OSC
BOARD
MARKIG
:
WHT
(PINS
1,6
AND
11)
IS-CONDUCTOR
FLAT
CABLE:BLK
CNJ60!
TO
PGA
BOARD
MARK
ING
:
WHT
(PINS
1,6
AND
11)
@
oO—
:
parts
extracted
from
the
component
side.
JIO2-14
Mon
|
vl02-13
MUTE
ive
cS
50
40 30
2
JIO2-10_Ji02-9
(
CNU603
{HPA
BOARD]
010
CNJ601
B
:
:
-
[8
ouT
|
OUT
ON
OFF

Other manuals for Sony MX-P21

Related product manuals