EasyManua.ls Logo

Sony PVM-1341 - Page 25

Sony PVM-1341
81 pages
Print Icon
To Next Page IconTo Next Page
To Next Page IconTo Next Page
To Previous Page IconTo Previous Page
To Previous Page IconTo Previous Page
Loading...
~n
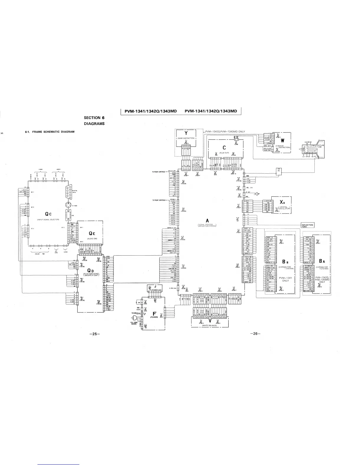
SECTION 6
DIAGRAMS
6-1. FRAME SCHEMATIC DIAGRAM
VIDEO
AUDIO
w
:i :i
6 :: 5 ::
,-.. - ,-._,-..
12V
LINE B
A/E VIDEO
QC-1
GND
VTR
'
QC-2
0
H. CENT
H. CENT
1/. HOLD
Qc
(INPUT SIGNAL SELECTOR)
~~
~~
~=
~~
--
-
~
== ==
R
'
B
y
'-------c--y---
EXT
SYNC
ANALOG RGB
00
0 0 DIGITAL
© (i) 9PIN
00
©
0 0
0 0
S VIDEO
0 0 I/TR
lomo
..._, 1 ':unio A
l
LINE B
l A/B V !DEO
I GND
I VTR
00-3
~
:S-MICRD
OD-I
.1f,
:S-MICRO
Qo
00-5
12P
WHT
:S-MICRO
(
R.G.B.VIDEO,SYNC)
SW.GATE.H CENT
H. CENT
H. CENT
V. HOLD
00-2
7P
WHT
:S-MICRO
G QD-4
B lit
r----v~. S~YN~c__.,,, :S-MICRO
H. SYNC
ID
QD-6
~~
:S-MICRO
~-----
-25-
VIDEO
S/VTR
SY
S.SEL
SC
Y-IN
QND
NC
NC
NC
12V
SIRCS
OND
AUDIO
NC
8ND
TV/EXT
LINE-B
RBB-SW
ANA/018
W/B-SEL
OND
8ND
SYNC-WT
H,BLK
V. HOLD
PVM-1341 /13420/1343MD
PVM-1341 /13420/1343MD
: I y--1 i,i_PVM-13420,PVM-1343MD ONLY
I (50160 DISTINCTION) I _______ _
i I _ :f~-~
~
I ----.. ,, .
'-------·-------.---------------------'
TO FRONT CONTROLS ---'<'=~
SYS KILLER
SlRCS
POWER
OND
EXT SYNC
U/S
H-V DL
BID
COMP
s
B
A
12V
5V
50-H
TO FRONT CONTROLS-~-~~
SECAM-H
4, 43-H
SHARP
BRT
COL
HUE
P!C
VOL
GNO
B-GA IN
G-GAIN
R-GAI N
B-BIAS
B-BIAS
j
~
A-17
5P
WHT
:BTOB-P
,_,
15P
WHT
:S-WICRO
A-5
ISP
BLK
:$-MICRO
A-6
:,
:BTOB-P
I
I
A
C
C-1
(R.G,B OUT)
6P
WIil
:IUN1
A-19
~,
:MINI
c:-r
2P
W\H
: LARGE
M
Wi
:S-MJCRO
A-15
\OP
w,n
:BORD-IN
A-2('
.4fr
:<$-N'CRO
,., A-22
Ir
:S-MICRO
A-7
7P
WHT
:BTOE-P
A-18
.11'1
:DY
I
I
I 4
2
3
4
s
6
7
Co
, 43-H
V,
v-
H-
SYS KfLLER
COLOR CONT
--1
W-1
Ir
:BTOB-P
w I
(3.581443 I
M DISTINCTION)
3P
:s-Rif1°cRo ____ I
R-B I f,,.S
(
SiGNAL PHOCESS ')
DEFLECTION SYSTEM
'°-!--"----~----------------~ DEFLECTION
C:~K 1~ ~:
J ;MINI
TO SHIELD G1'D k~ F-6
- ---
I 111111
F-1
7B4P
WHT
:VH
¢ ¢ ¢ 01
...!
F
F-5
:T
COMPOS I TE OUT
s-sw
SY
S-8P
SC
Y-lN
OND
CCWONElil Y-OUT
R-Y
B-Y
sv
12V
SIACS
COWPONENlSELOUl
AUDIO OUT
YS
R
0
B
ONO
TV/EXT
LINE B
COMP/RGB SW
EXT SYNC
W/B SEL
ONO
ONO
SYNC OUT
H-BLK
V-HOLD
11-10
ISP
BLK
:S-MICRO
A-11
ISP
YEL
:S-MlCAO
'"''-~
-~,.
1~~
(POWER)
:M/Nll-<H---~
50/60Hz k, F-7
r ':.'f
:VH
l
I
"----- - ___J
A-13
9P
BLK
:BTOB-P
A-14
9P
BLK
:BTOB-P
Q::~!~~~;2
d
11 ·
A-9
\ BURST IN
\ SP 2 HUE CONT
:B~J-p 3 KILLER (H)
A-8
ISP
,st~-P
A-3
i:T
:BTOB.:.P
"
~z~~~~~
--<!IOC!ls!J:1
4 13ND
5 FROM ACC
6 GND
7 TO ACC
8 GND
9 SC- IN
10 s-sw
11 Y-OUT
12 GND
13 SY- IN
14 vcc
1'5 COWPOSl"TE IN
1
PLS X SW
2 COMP BLK
3 H-AF.T PLS
4
SYNC IN
5
50-H
6 SECAM-H
7
R-Y lSECAM)
8
B-Y <SECAM)
9
ONO
10 4. 43-H
II
u (B-Y)
12 V IR-Yl
13 H-PLS
14 ONO
15 BURST OUT
I
I
I
-26-
YOKE
FROM ACC
ONO
TO ACC
ONO
SC-!N
s-sw 10
Y-OUT
II
ONO 12
SY-IN
13
vcc
14
OMPOSITE IN 15
PLS X SW
Be
=~:s~o~~
~
s,,,-P' - ---1 ;,:.
KILLERO-O 3
L_\l-'_ '"-/;;;' ""c;c"-;-;,~ND~~,1 :af~-s
1
:
FR:: 1~ : I ,:,I
SC- IN 9
~===:;s~-s~w~~1 o I :
::~~ !; BA l;.
1
COMPOS I TE- IN 15
(CHR~~Y1~~~) II ,i,:i
H·R£1RACE PLS 3
SYNC IN
PLS CROSS SW
COIIPOS!TfBt.K
SE~:~~~
6 I i
R-Y ISECAMI 7 PVM-13420, , :,:
B-Y <SECAMI 8
1---:-:'.:"0H0:;+';:9 PVM-1343M D i
'-43-H 10 ONLY :
U fB-Y) 11 EA-! :
:-:i\ L Ji
! .... ------·--------_ - ·-··------·--.!

Related product manuals