EasyManua.ls Logo

Sony STR-DE997 - Hooking up Video Components

Sony STR-DE997
64 pages
Print Icon
To Next Page IconTo Next Page
To Next Page IconTo Next Page
To Previous Page IconTo Previous Page
To Previous Page IconTo Previous Page
Loading...
Getting Started
masterpage:Right
lename[C:\Documents and
S
ettings\pc13\Desktop\J9031715_4255361111DE997U\4255361111\GB03CON_STR-DE997-
U
.fm]
13
US
model name1[STR-DE997]
[4-255-361-11(1)]
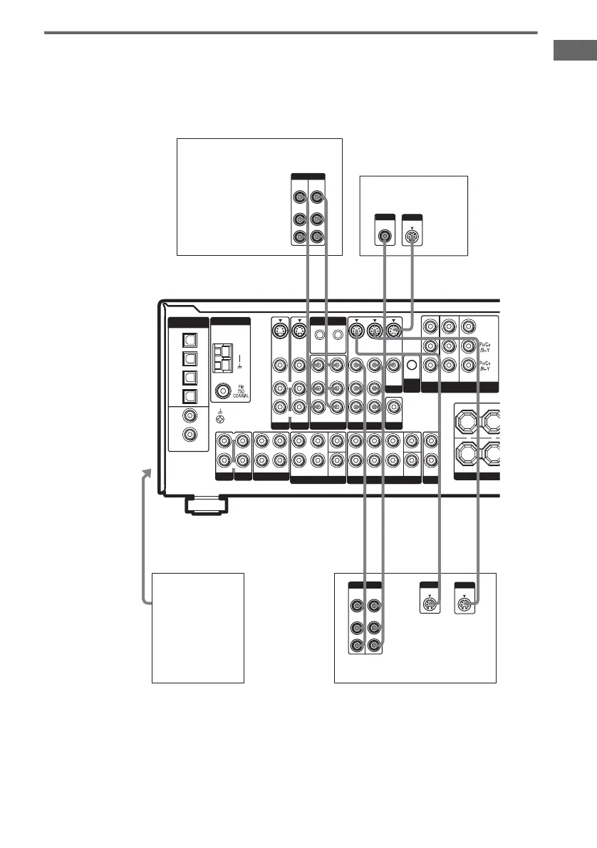
Hooking up video components
If you connect your TV to the MONITOR jacks, you can watch the video from the selected input
(page 23). You can also display the SET UP, LEVEL, EQUALIZER and CUSTOMIZE menu settings
and sound fields on your TV by pressing ON SCREEN. For details on the required cords (AH), see
page 6.
ANTENNA
DIGITAL
(ASSIGNABLE)
OPTICAL
TV/SAT
IN
MD/
TAPE
IN
MD/
TAPE
OUT
SA-CD/
CD
IN
SA-CD/
CD
IN
COAXIAL
PHONO
SA-CD
/
CD
L
R
L
R
OUT ININ IN
AM
SIGNAL GND
S-VIDEO
IN
VIDEO IN
TV/SAT
AUDIO IN
PRE OUT
SUB
WOOFER
MONITOR
SU
+
MULTI CH IN 2
L
R
FRONT SURROUND
CENTER
SUB
WOOFER
FRONT
SURR
BACK
S-VIDEO
IN
VIDEO IN
DVD VIDEO 2
AUDIO IN
VIDEO OUT
AUDIO OUT
VIDEO IN
AUDIO IN
STATUS
IN
S-VIDEO
OUT
S-VIDEO
IN
R
VIDEO OUT VIDEO OUT
TV/SAT
IN
DVD
IN
VIDEO IN
AUDIO IN
R
CTRL
A1 II
Y
MD/TAPE
L
SUR
OUT
MONITOR
OUT
SUB
WOOFER
CENTER
DVD
IN
VIDEO
OUT
AUDIO
OUT
VIDEO
IN
AUDIO
IN
OUTPUTINPUT
R
L
IN
L
BDD
S VIDEO
INPUT
S VIDEO
OUTPUT
BB DC
VIDEO
INPUT
S VIDEO
INPUT
B
D
VIDEO
OUT
AUDIO
OUT
VIDEO
IN
AUDIO
IN
OUTPUTINPUT
R
L
OUT
L
IN
L
OUT
L
IN
L
OUT
L
B
S-VIDEO
OUT
STATUS
OUT
L
VIDEO 1
L
CONTROL S
L
R
L
R
SURROUND
AUDIO OUT
R
MULTI CH IN 1
L
R
2ND ZONE
COMPONENT VIDEO
(ASSIGNABLE)
R
R
Camcorder or
video game
TV monitor
VCR
VCR
To the VIDEO
3 INPUT jacks
(Front panel)
GB01COV_STR-DE997-U.book Page 13 Friday, April 2, 2004 11:00 AM

Table of Contents

Other manuals for Sony STR-DE997

Related product manuals