EasyManua.ls Logo

Sony Trinitron CPD-E215E - Page 27

Sony Trinitron CPD-E215E
44 pages
Print Icon
To Next Page IconTo Next Page
To Next Page IconTo Next Page
To Previous Page IconTo Previous Page
To Previous Page IconTo Previous Page
Loading...
5-15 5-16
1
A
B
C
D
E
F
G
H
I
2
12
13
11
10
98765
43
D
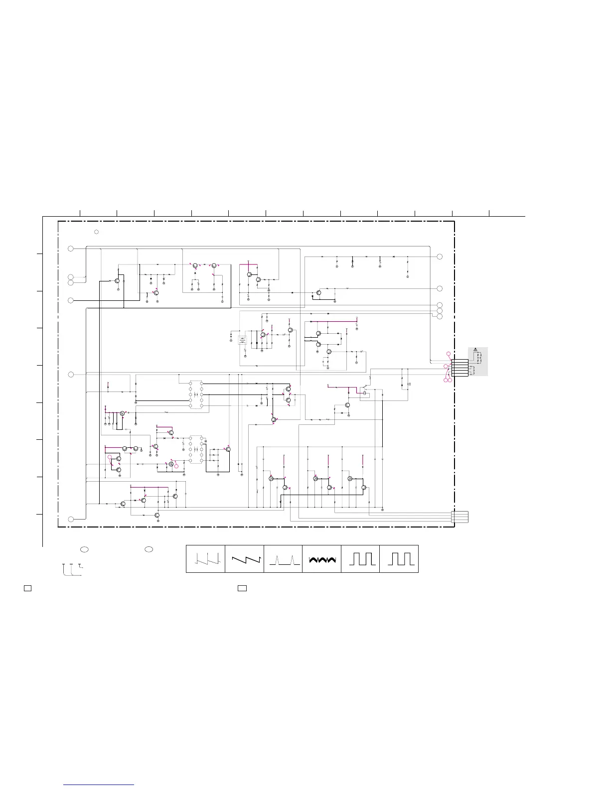
Schematic diagram
-b board
ll
ll
l
Divided circuit diagram
One sheet of D board circuit diagram is divided into four
sheets, each having the code D-a to D-d . For example, the
destination ab1 on the D-a sheet is connected to ab1 on the
D-b sheet.
b
1
a
Ref. No.
Circuit diagram division code
58.0 Vp-p (V)
qa
1.8 Vp-p (V)
qs
1k Vp-p (H)
qd
62.0 Vp-p (H)
qf
12.0 Vp-p (H)
qg
120 Vp-p (H)
qh
D - b BOARD WAVEFORMS
D
Schematic diagram
ÒÒ
ÒÒ
Ò -a board
6.0
6.1
5.3
5.4
92.7
157.5
15
3.3
2.9
56.4
4.2
16
58.9
57.8
3.1
-0.4
92.8
2.5
1.2
95.6
0.6
95.796.2
102.9
-77.3
0
43.9
0
44.6
0.6
0.6
74.8
1.0
0.4
0.5
16.4
15.8
16.4
16.4
1.9
1.4
-27.6
14 13
12
11
S
S
1
2
3
4
10
9
8
7
5 6
D502
C556
R524
C515
L503
R525
R526
R580
D504
D506
R531
C555
R582
R587
R530
R583
R532
R527
D518
C541
R518
C538
D503
FB501
T502
5
4
3
2
10
9
8
7
1 6
T503
Q501
R540
Q515 Q516
Q520
Q521
Q523
Q527
Q503
Q511
Q513
C523
Q502
MTZJ-15A
100
250V
8.2k
0.022
250V
56
4.7k
100
100V
C542
0.0022
1SS119
1SS119
1.8k
0.1
50V
2.7k
JW
1.8 3W
1.8 3W
47
1/2W
10k
R528
120
1/2W
D517
1SS119
1SS119
R568
10k
R562
10k
R563
47k
R567
10k
4.7
510k
R560
150k
R517
10k
0.012
100V
D2L40
JW
SFS9634
SWITCHING
1M
1/2W
2SC945
B DRIVE
2SA733
B DRIVE
2SC945
H DRIVE
2SA733
H DRIVE
2SD669A
H DRIVE
2SC945
H DRIVE
2SC5587
H OUT
H2N6718L
SW
2SA733
BOP CONT
Q512
RN1203
BOP CONT
Q510
2SA733
BOP CONT
D507
SB140
10
IRFU110
H DRIVE OUT
ab2
ab1
ab3
bc1
+200V
V DY+
V DY-
+12V
D-
b
(DEFLECTION)
+12V
+12V
B-SS3563<AEP>-D..-P2-EPS05
FB504
3µH
ab4
bc2
HDRV
HFLB
BDRV
BOP
HUNLOCK
C543
1000p
100V
+16V
D510
1SS119
H-DRIVER
BLK
BRI
+5V
D519
(SR1003)
PS104R
1.3k
1W
R533
C518
1500p
1kV
C517
220p
3kV
D511
D512
C549 R535
C548 R536
C547
R557
R534
L506
R565
C550
Q517
Q518
Q519
330
25V
1k
330
25V
6.8k
0.1
50V
10
1W
10
1W
R5128
36
1/2W
R5127
20
1/2W
1/2W
R578
1k
10mH
1k
0.01
250V
2SD669A
H CENT DRIVE
2SB649A
H CENT DRIVE
2SC2688
H CENT
PS104R
PS104R
H-CENTER/O
ABL/PWM
FB508
1.1µH
FB507
1.1µH
CN501
6 V DY+
V DY-
H DY-
H DY-
H DY+
H DY+
5
4
3
2
1
6P
V.DY
H.DY
V DY+
V DY-
R543
L505
270
1W
C521
4300p
2kV
D508
5TUZ47C
L504
RY501
28µH
2
5
1
3
4
D514
PG104R
R5116
100k
1/2W
D524
1SS119
RELAY DRIVE
Q540
2SC945
R5117
JW(10)
R595
4.7k
D526
1SS119
C565
4.7
250V
R597
82
1/2W
R544
100k
1/2W
L501
1.2mH
C524
0.12
250V
S
Q524
IRF640
S-CAP CHANGE
R538
R539
Q505
C560
4.7k
10k
2SC945
S-CAP
CHANGE
0.1
C557
1000p
+12V
R5115
100k
1/2W
C525
0.1
250V
S
Q536
IRF640
S-CAP CHANGE
R5119
R5118
Q537
4.7k
10k
2SC945
S-CAP
CHANGE
+12V
R545
100k
1/2W
C526
0.33
250V
C522
0.24
250V
C566
1
250V
S
Q506
IRF640
S-CAP CHANGE
R547
R549
Q508
C528
4.7k
10k
2SC945
S-CAP
CHANGE
0.1
+12V
CN502
CS2
CS3
CS0
CS1
1
2
3
4
4P
D525
MTZJ-5.1A
SG501
C592
R573
R572
R575
C593
R577
T504
Q530
1.2KV
4.7
35V
36k
R576
30k
3W
C595
0.1
400V
10
R5004
0.12
1/2W
3k
R5131
820k
0.22
C585
1000p
500V
360
2SC2688
DF AMP
DF AMP
25
711
+12V
R574
82k
+12V
+12V
C583
4.7
100V
+12V
R5130
10k
Q504
2SC945
R5129
1k
R5134
4.7
1W
Q543
TIP122
DF AMP
Q544
TIP127
DF AMP
D520
PG104R
R5104
10k
1/2W
D530
1SS119
D513
BYV26C
D534
JW
D531
1SS119
DF AMP
Q514
2SC945
R5126
1.18k
C584
2200p
C582
220
100V
+81V
R591
56k
C573
4.7
35V
bc5
bc4
bc3
bd1
bc6
G1/VBLK
FOCUS
R409
10k
Q401
2SC945
SW
C401
0.1
250V
C575
1000p
R408
3.3k
1/2W
R523
10k
R516
4.3k
R509
3.6k
R512
1k
C514
0.1
C576
0.1
D527
HZ12A1
Q535
RN1203
Q532
2SA733
D523
1SS119
C574
330
R585
10k
R5102
120k
R5103
33
Q531
KSP92
R5113
56k
R5111
20k
Q528
2SC945P
ABL CONT
Q529
2SC945P
ABL CONT
R5110
470
R5108
18k
R5112
6.8k
C589
1
R5109
1M
R5114
120k
R5107
10k
D592
1SS119
C590
0.1
Q533
2SA733
R5106
470
C591
0.1
L502
100µH
R586
110k
R589
10k
R590
1M
D532
Z10-160B
C577
22
250V
D522
PG104R
R566
10k
R537
JW(10)
TO A BOARD
CN304
1/8W
1/8W

Related product manuals