EasyManua.ls Logo

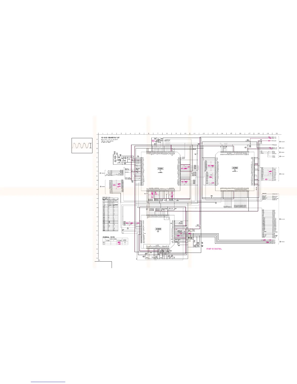
Sony TRV510 - VC-213 Board Schematics (6;13); SFD, TFD, and LIP Blocks; VC-213 SFD;TFD;LIP Signal Paths

Sony TRV510
27 pages
Print Icon
To Next Page IconTo Next Page
To Next Page IconTo Next Page
To Previous Page IconTo Previous Page
To Previous Page IconTo Previous Page
Loading...
DCR-TRV410/TRV410E/TRV510/TRV510E
For schematic diagram
Refer to page 4-65 for printed wiring board.
4-33 4-344-32
SFD, TFD, LIP
VC-213 (6/13)
VC-213
BOARD (6/13)
CAMERA REC/PB
IC301 (R315)
2.6Vp-p
24.58MHz
DCR-TRV410/TRV410E/TRV510/TRV510E

Related product manuals