EasyManua.ls Logo

Sony VPL-EX276 - Page 76

Sony VPL-EX276
81 pages
Print Icon
To Next Page IconTo Next Page
To Next Page IconTo Next Page
To Previous Page IconTo Previous Page
To Previous Page IconTo Previous Page
Loading...
76
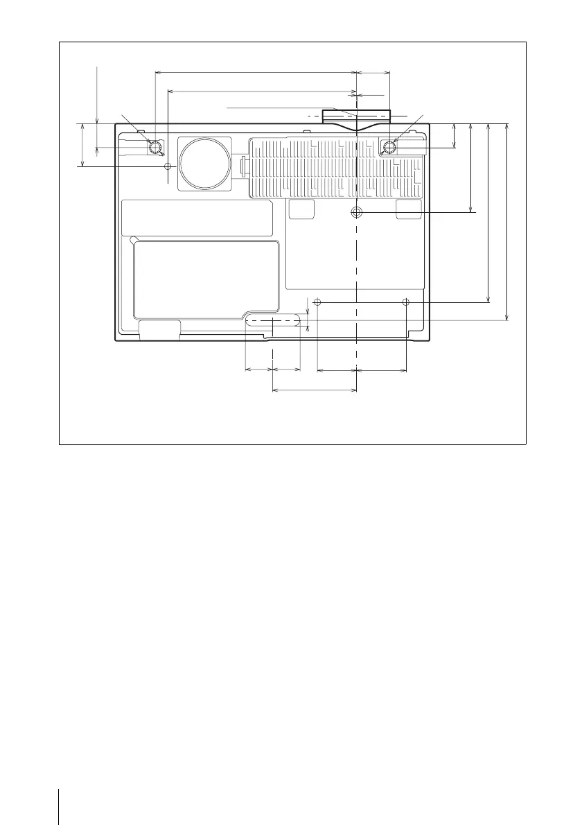
Dimensions
Bottom (VPL-EW276)
Unit: mm (inches)
233.5 (9
3
/16)
38.5 (1
17
/32)
228 (8
31
/32)
207 (8
5
/32)
102.5 (4
1
/32)
27.5 (1
3
/32)
31.8
(1
1
/4)
97.5 (3
27
/32)
14 (
9
/16)
27.5 (1
3
/32)
31.8
(1
1
/4)
57.4
(2
1
/4)
45.3
(1
25
/32)
13.5 (
17
/32)
Center of Lens
14 (
9
/16)
46.3 (1
13
/16)
221.6 (8
23
/32)
0.8
(
1
/32)

Table of Contents

Other manuals for Sony VPL-EX276

Related product manuals