EasyManua.ls Logo

Sony WM-BF49 - Page 5

Sony WM-BF49
10 pages
Print Icon
To Next Page IconTo Next Page
To Next Page IconTo Next Page
To Previous Page IconTo Previous Page
To Previous Page IconTo Previous Page
Loading...
insane
geen
tern
ae
asec
pn
uaegszasn
eC
ARITA
ond
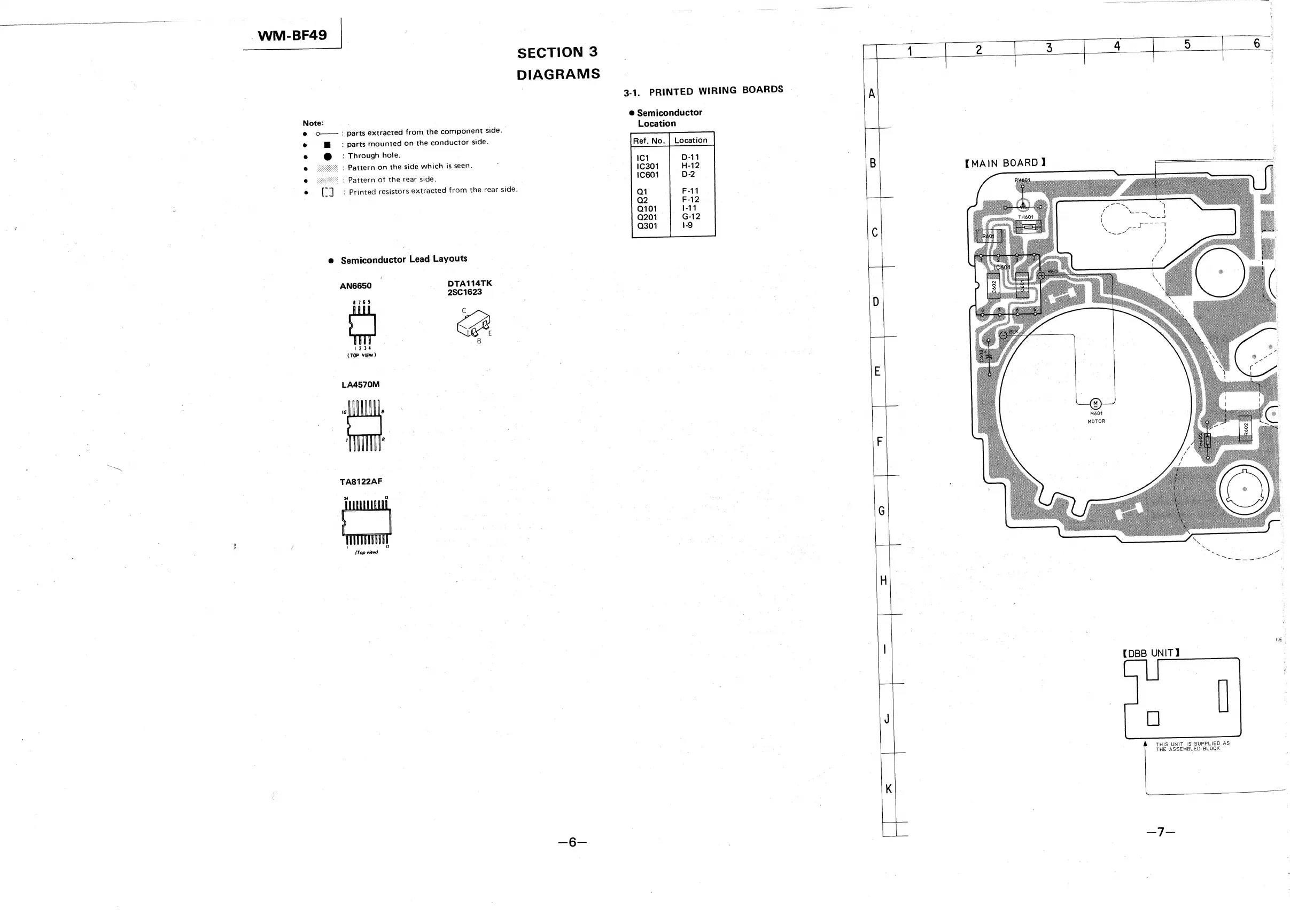
Note:
e
oo:
®
wi
:
Pattern
of
the
rear
side.
parts
extracted
from
the
component
side.
parts
mounted
on
the
conductor
side.
:
Through
hole.
-
Pattern
on
the
side
which
is
seen.
Printed
resistors
extracted
from
the
rear
side.
@
Semiconductor
Lead
Layouts
AN6650
8765
1234
(TOP
view
)
LA4570M
16
9
~
TA8122AF
DTA114TK
2SC1623
SECTION
3
DIAGRAMS
Lee
a
7
+
3-1.
PRINTED
WIRING
BOARDS
®
Semiconductor
Location
Ref.
No.
|
Location
[MAIN
BOARD
]
3
:
(DBB
UNIT]
|
|
THIS
UNIT
1S
SUPPLIED
AS
THE
ASSEMBLED
BLOCK
=

Related product manuals