EasyManua.ls Logo

Steamtec KSA-Elegance - Introduction; Controller Parameters and Dimension; Installations; Installations of Controller

Steamtec KSA-Elegance
9 pages
Print Icon
To Next Page IconTo Next Page
To Next Page IconTo Next Page
To Previous Page IconTo Previous Page
To Previous Page IconTo Previous Page
Loading...
________________________________________________________________________________
TOLO SAUNA info@tolosauna.com www.tolosauna.com
2
1. Introduction
Thank you for choosing TOLO SAUNA touch screen control system for sauna heater. The touch
screen control system is consist of touch screen controller, central control box and the sauna room
temperature sensor.
2. Controller Parameters And Dimension
Controller
model
Controlling time range
(mins)
Temperature
display range
Temperature
controlling
range
Dimension
(mm)
KSA-Elegance
160 or long-term
(CH)
1100
60100
90x90x19
Table 1
3. Installations
3.1. Installations of controller
Attention:The controller and central control box MUST be installed OUTSIDE the sauna room.
The controller should be installed with height
around 1.2 m OUTSIDE the sauna room but
nearby or other place where easy to operate.
Firstly drill a hole with diameter of 16mm on
the installation site.
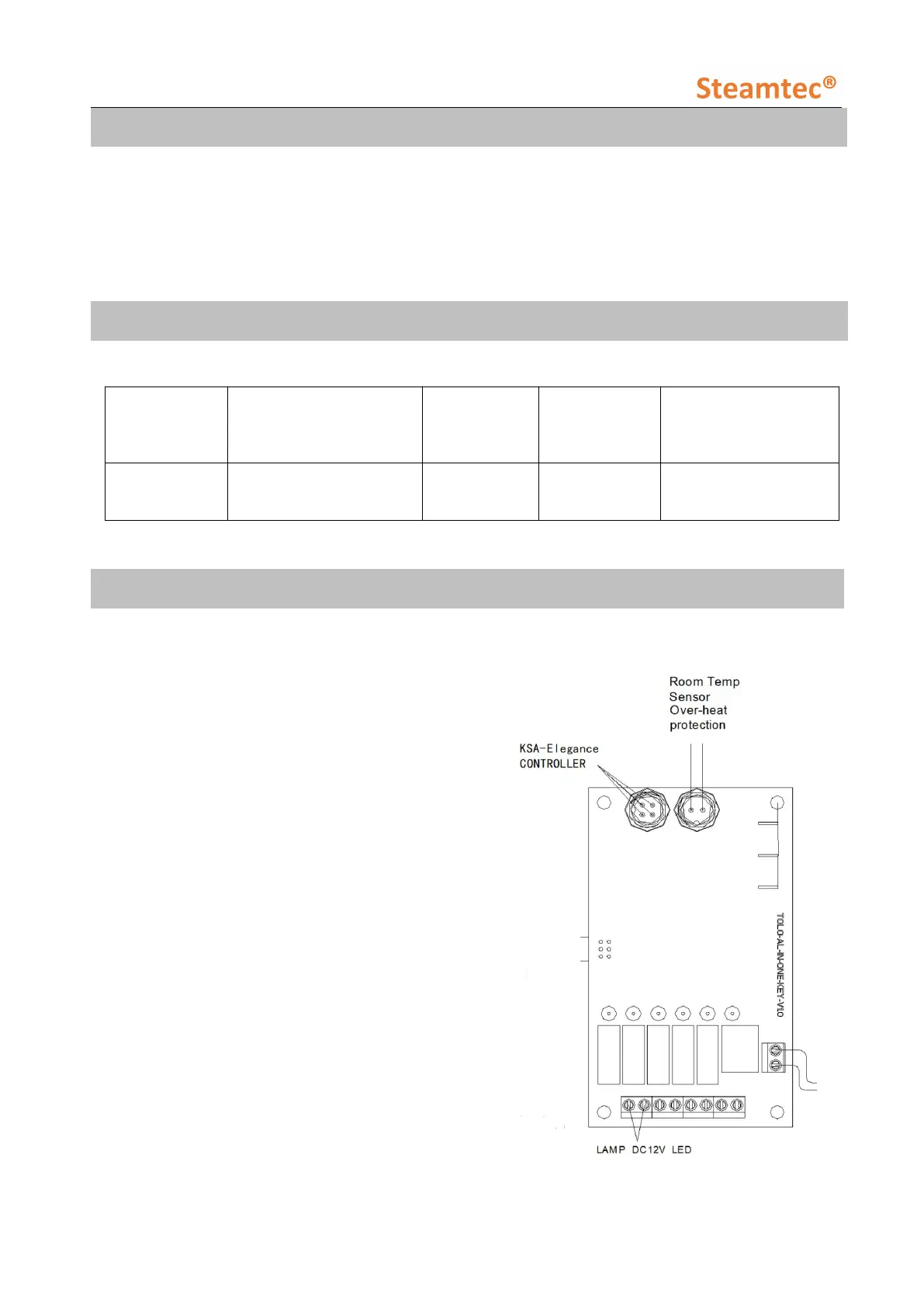
Pull the control wire through the conduit, then
connect the control wire to the (4-Pin) plug on
circuit board of central control box, refer to
figure 1.
Finally the controller panel can be hanging by
the screws on the wall.
Figure 1 Circuit board