EasyManua.ls Logo

STIEBEL ELTRON WPC 05

STIEBEL ELTRON WPC 05
72 pages
To Next Page IconTo Next Page
To Next Page IconTo Next Page
To Previous Page IconTo Previous Page
To Previous Page IconTo Previous Page
Loading...
48 | WPC | WPC cool www.stiebel-eltron.com
INSTALLATION
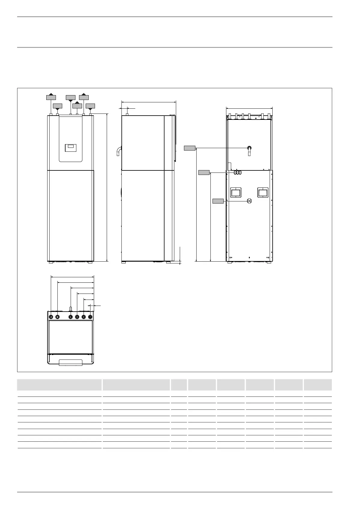
Specication
18. Specification
18.1 Dimensions and connections
20-40
c10
f02
e01
c06
f01
e02
c01
45
130
215
300
555
471
1917
71
703
1470
600
c12
1150
b01
D0000033980
WPC 04
WPC 04 cool
WPC 05
WPC 05 cool
WPC 07
WPC 07 cool
WPC 10
WPC 10 cool
WPC 13
WPC 13 cool
b01 Entry electrical cables
c01 Cold water inlet Diameter mm 22 22 22 22 22
c06 DHW outlet Diameter mm 22 22 22 22 22
c10 DHW circulation
c12 Safety valve drain
e01 Heating flow Diameter mm 22 22 22 22 22
e02 Heating return Diameter mm 22 22 22 22 22
f01 Heat source flow Diameter mm 28 28 28 28 28
f02 Heat source return Diameter mm 28 28 28 28 28

Table of Contents

Related product manuals