EasyManua.ls Logo

STRAXGAS Theme 22 - Operation and Safety Checks; Flame Adjustment and Shut-off; Combustion Product Spillage Test; User Instruction Handover

Default Icon
12 pages
Print Icon
To Next Page IconTo Next Page
To Next Page IconTo Next Page
To Previous Page IconTo Previous Page
To Previous Page IconTo Previous Page
Loading...
Theme 22 Issue 2.1 09/07/01 Page 8 of 12
4. The height of the flames can be adjusted by turning the control knob between the low
and high positions. Note that the knob 'latches'
in position at either end of this movement and
must be pushed in slightly before it can be
turned.
5. The appearance of the flames can be altered by
means of the air adjustment lever positioned to
the right of the control knob (natural gas version
only). Moving the lever up will admit more air
and produce a 'coke fire' effect. Moving it down
will close off some of the air and simulate a
'coal fire' with flickering flames.
6. To turn the fire off, depress the knob slightly
and turn it to the pilot position.
7. To completely extinguish the fire depress the
knob slightly and turn to the 'Off' position.
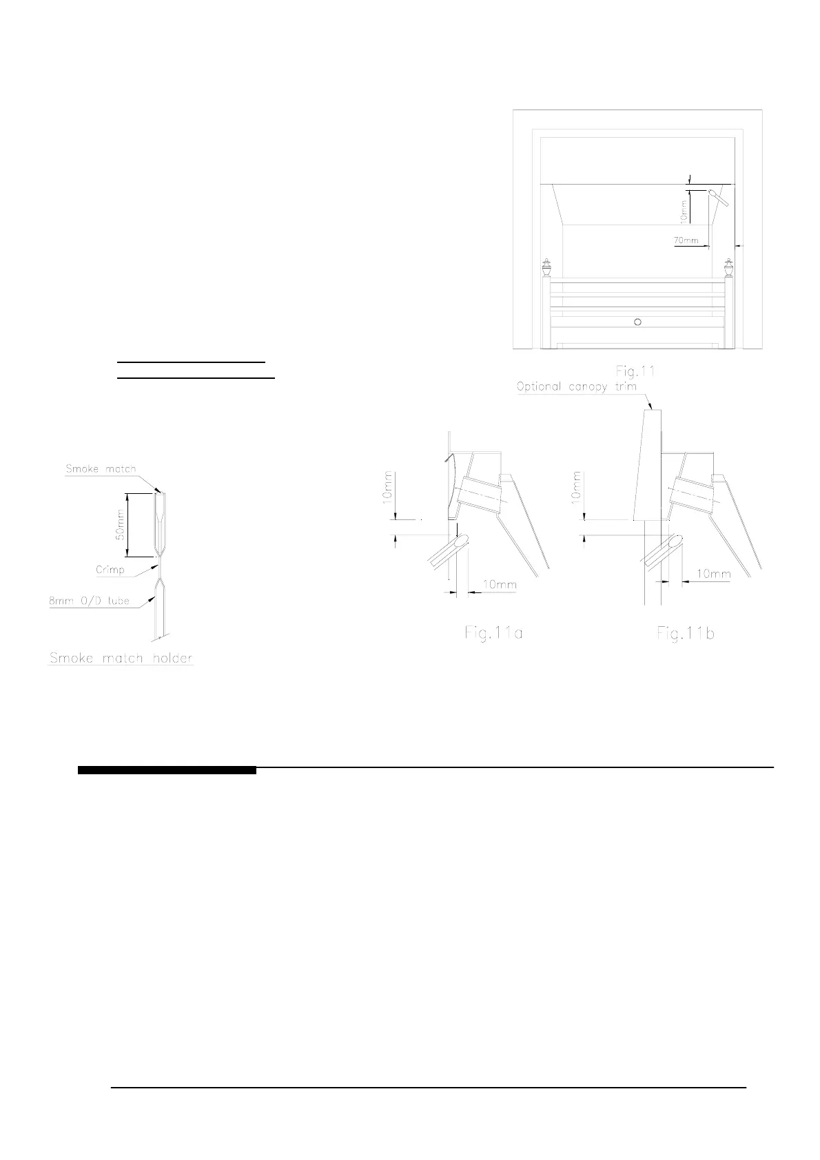
Check for clearance of
products of combustion
1. Light the fire.
2. Close all windows and
doors.
3. After approximately 5
minutes place a shrouded
smoke match 70mm from
the right hand side, inside
edge of the trim, 10mm
below and 10mm within
the opening of the fire as
shown in Fig. 11, 11a &
11b. Ensure that the
smoke is drawn into the
fire aperture. If spillage is
detected, operate the fire
for a further 10 minutes
and repeat the test. If
spillage is still detected the cause must be discovered and the fault corrected. If the fault
cannot be corrected, disconnect the gas supply to the appliance and seek expert
advice. Possible causes of spillage are chimney restrictions, or an incorrect cowl or
terminal.
4. If there is an extraction fan in a nearby room then the spillage test must be repeated
with the fan turned on and any interconnecting doors between the fire and the fan
location left open.
Instruct the user
1. Hand over these Installation Instructions and the User Instructions to the person who is
going to use the fire and explain how to light and operate the appliance. Explain how the
fire may be lit, if necessary, by means of a long spill or taper.
2. Make certain that the user is aware that the ceramic blocks and coals must be located
in accordance with the instructions, and that the appliance should be serviced at regular
intervals by a competent person to ensure continued safe operation.
3. Explain that this appliance is fitted with an oxygen depletion sensor incorporated into
the pilot body. Should the fire repeatedly extinguish itself, the cause should be sought
and remedied as this may indicate spillage into the room of combustion products.
4. Indicate the tie-on warning label, which the customer must remove and read.
5. Advise the user that any smell given off by the appliance will clear away after a little
use.
6. Point out that these instructions must be retained in a safe place for future use.

Related product manuals