EasyManua.ls Logo

Stuart Turner Mainsboost Plus - Advanced Configuration Options; High Demand Single Property Setup; Water Softener Integration Guidelines

Stuart Turner Mainsboost Plus
28 pages
Print Icon
To Next Page IconTo Next Page
To Next Page IconTo Next Page
To Previous Page IconTo Previous Page
To Previous Page IconTo Previous Page
Loading...
- 11 -
Cont ...
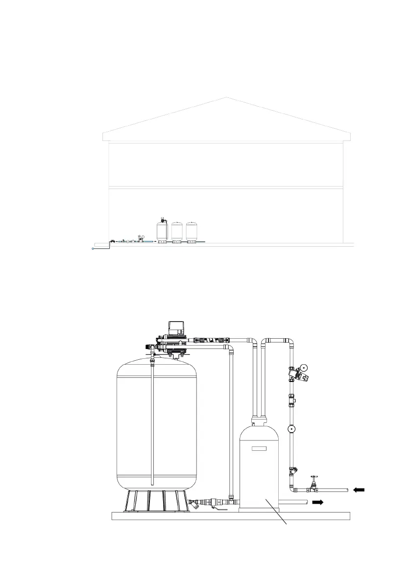
5.14 High demand single occupancy application:
Where single properties have a much highter demand, it may be necessary to
use additional Mainsboost vessels connected in parallel to ensure sufficient
water is on tap to meet the much higher demand. Fig. 11 shows all vessels
being located in the same place.
5.15 Water softener:
Note: If a water softener is to be fitted it must be located between the upstream
line-in kit and pump/vessel. If high pressure is also required to the drinking tap
fit a Stuart Water Conditioner, available from Stuart Turner, rather than a water
softener.
Fig. 11
Fig. 12
Water softener

Related product manuals