EasyManua.ls Logo

Stulz CRS 320 CW - Page 35

Stulz CRS 320 CW
86 pages
Print Icon
To Next Page IconTo Next Page
To Next Page IconTo Next Page
To Previous Page IconTo Previous Page
To Previous Page IconTo Previous Page
Loading...
35
/04.2016/G35
90
66
A220
90
B
300220
90155
220
30
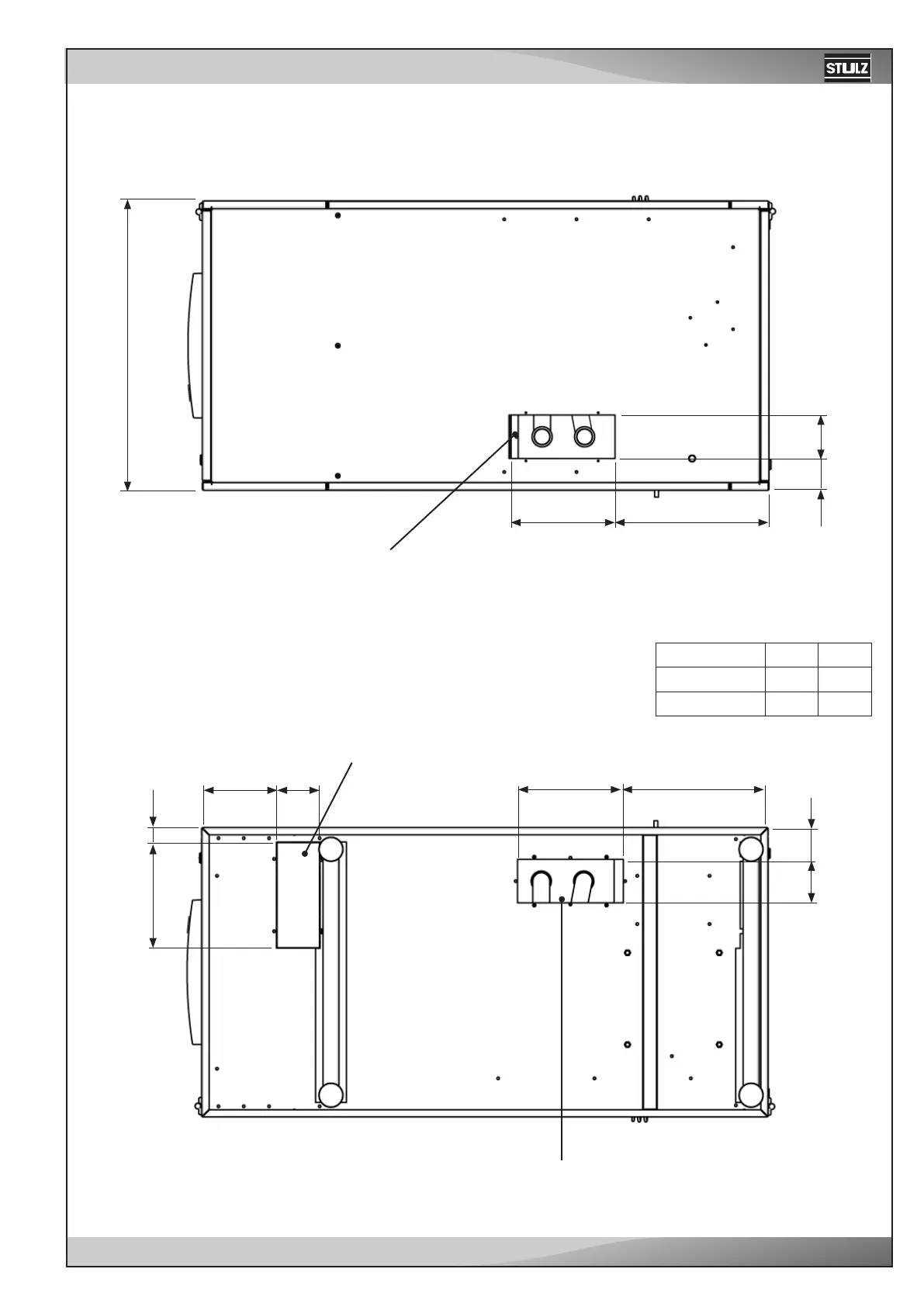
CRS 361 A/AS/GS/GES, 560 CW
600
A B
A/AS/GS/CW
398,5 100
GES
320 66
EN
Inlet/outlet of humidifier (if present)
Top view
Bottom view
Size 2
IN/OUT refrigerant/water pipes, con-
densate discharge, electric cables
IN/OUT refrigerant/water pipes,
condensate discharge (condensate
pump is required), electric cables
Standard: connection from top
Option: connection from bottom

Related product manuals