EasyManua.ls Logo

Stulz Mini-Space DX CCD181A - Second Power Supply Option

Stulz Mini-Space DX CCD181A
74 pages
Print Icon
To Next Page IconTo Next Page
To Next Page IconTo Next Page
To Previous Page IconTo Previous Page
To Previous Page IconTo Previous Page
Loading...
2
/11.2015/electric_MSEN
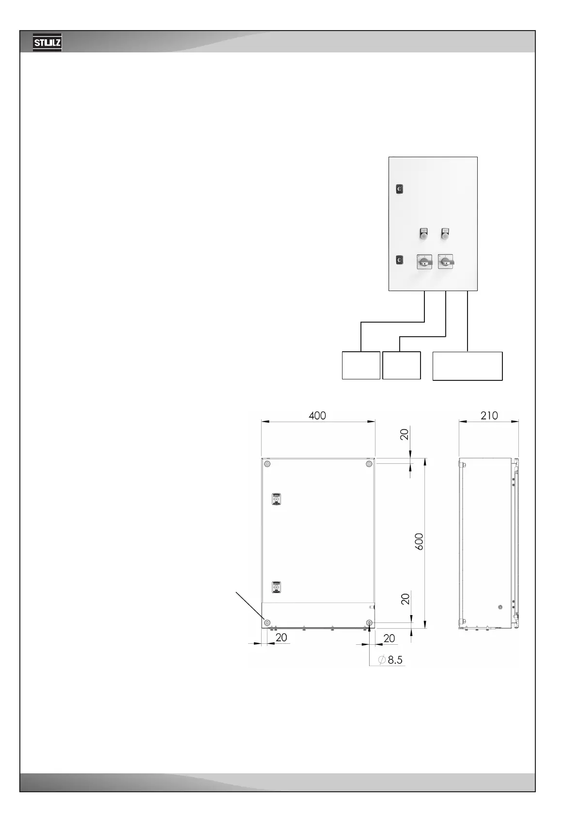
Second Power Supply in separate box (for size 1 only)
This option provides an automatic commutation between two power supply networks.
In case of failure of the main power supply the A/C unit has the possibility to restart operation by commutation to
the second supply network. Both supply lines of the power supply networks are fixed by screw connections and are
directly connected at the main switches. An internal circuit ensures that the priority is set on power supply 1.
Technical data:
Dimensions (H x W x D): 600 x 400 x 210 mm
Protection class: IP 66 and NEMA 4,12 and 13
Colour: RAL 7035
4 mounting holes for wall mounting
All three phases of both power supplies are checked constantly on under-
voltage, phase failure, phase balance and correct rotation. In case of failure
of supply 1 the A/C unit is switched off. After a lapse of time which can be
set at the time relay (preadjusted: 10 seconds) power supply 2 is switched
onto the A/C unit. The A/C unit starts by the automatic restart which is
integrated in the controller.
When the voltage of power supply 1 returns, the A/C unit is switched off
again. On a second time relay a delay can be set (preadjusted: 10 seconds),
after which power supply 1 is switched onto the A/C unit. The A/C unit starts
by the automatic restart.
Two green LED indicators display the active power supply network.
Supply
1
Supply
2
A/C unit

Related product manuals