EasyManua.ls Logo

Sub-Zero 632 - Page 71

Sub-Zero 632
76 pages
Print Icon
To Next Page IconTo Next Page
To Next Page IconTo Next Page
To Previous Page IconTo Previous Page
To Previous Page IconTo Previous Page
Loading...
71
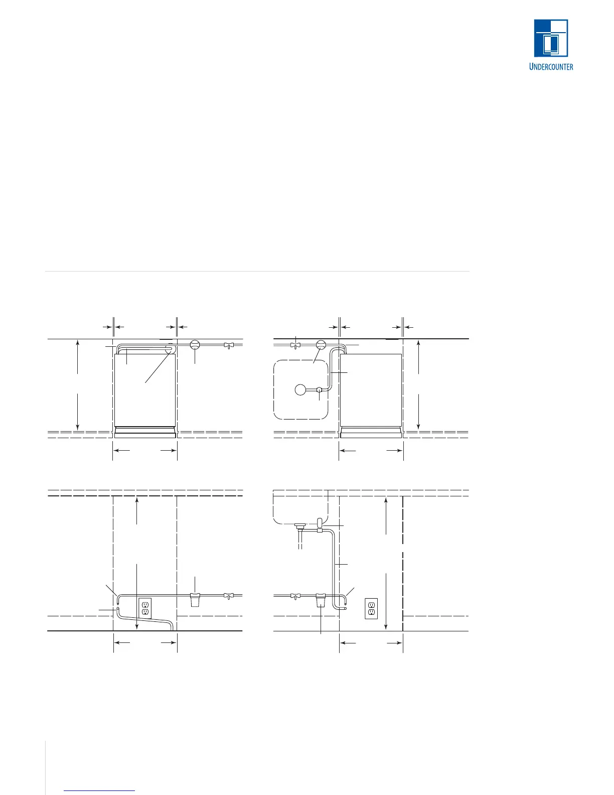
Dimensions in parentheses are in
millimeters unless otherwise specified.
MODELS 315I AND 315IP –
GRAVITY DRAIN OR DRAIN PUMP
This ice maker can be ordered with a pump
(Model 315IP) or without a pump (Model 315I).
Models without a drain pump drain their water
by gravity. However, gravity drain models may be
converted to pump models through the installa-
tion of a drain pump kit and drain pump.
Specific step-by-step instructions are included
with the drain pump kit. Contact your Sub-Zero
dealer for specifics.
The drain and inlet water tubes must be
plumbed before connecting to the ice maker. For
the gravity drain, all horizontal runs of drain lines
must have a
1
/4" (6) per 12" (305) fall. An air gap
will likely be required between the ice maker
drain tube and the drain/waste receptacle. A
stand pipe with a trap below it would be accept-
able for the drain/waste receptacle. Refer to the
illustrations below.
IMPORTANT NOTE: Poor drainage will cause a
high rate of ice melting in the bin.
INSTALLATION SPECIFICATIONS
Model 315I – Gravity Drain
15
1
/4"
(387) MIN.
FRONT VIEW
SHUT-OFF
VALVE
WATER
FILTER
WATER
INLET TUBE
DRAIN
TUBE
TOP VIEW
SHUT-OFF
VALVE
WATER
FILTER
34
1
/2"
(876) NOMINAL
33
3
/4"
(857) MIN.
15
1
/4"
(387) MIN.
24"
(610)
1
/8"(3)
WATER
INLET
TUBE
DRAIN
TUBE
LOCATE DRAIN
WITHIN 2" DIA.
AREA 23" BACK
FROM FRONT
OF UNIT
FRONT VIEW
SHUT-OFF
VALVE
WATER
FILTER
WATER
INLET TUBE
AIR GAP
DEVICE
DRAIN
TUBE
TOP VIEW
SHUT-OFF
VALVE
WATER
FILTER
WATER
INLET TUBE
DRAIN
TUBE
AIR GAP
DEVICE
24"
(609)
1
/8"(3)
15
1
/4"
(387) MIN.
15
1
/4"
(387) MIN.
34
1
/2"
(876) NOMINAL
33
3
/4"
(857) MIN.
Model 315IP – Drain Pump

Other manuals for Sub-Zero 632

Related product manuals