EasyManua.ls Logo

Sub-Zero 695 - Built-In Refrigeration Overview; Built-In Design Configurations

Sub-Zero 695
16 pages
Print Icon
To Next Page IconTo Next Page
To Next Page IconTo Next Page
To Previous Page IconTo Previous Page
To Previous Page IconTo Previous Page
Loading...
Planning Information
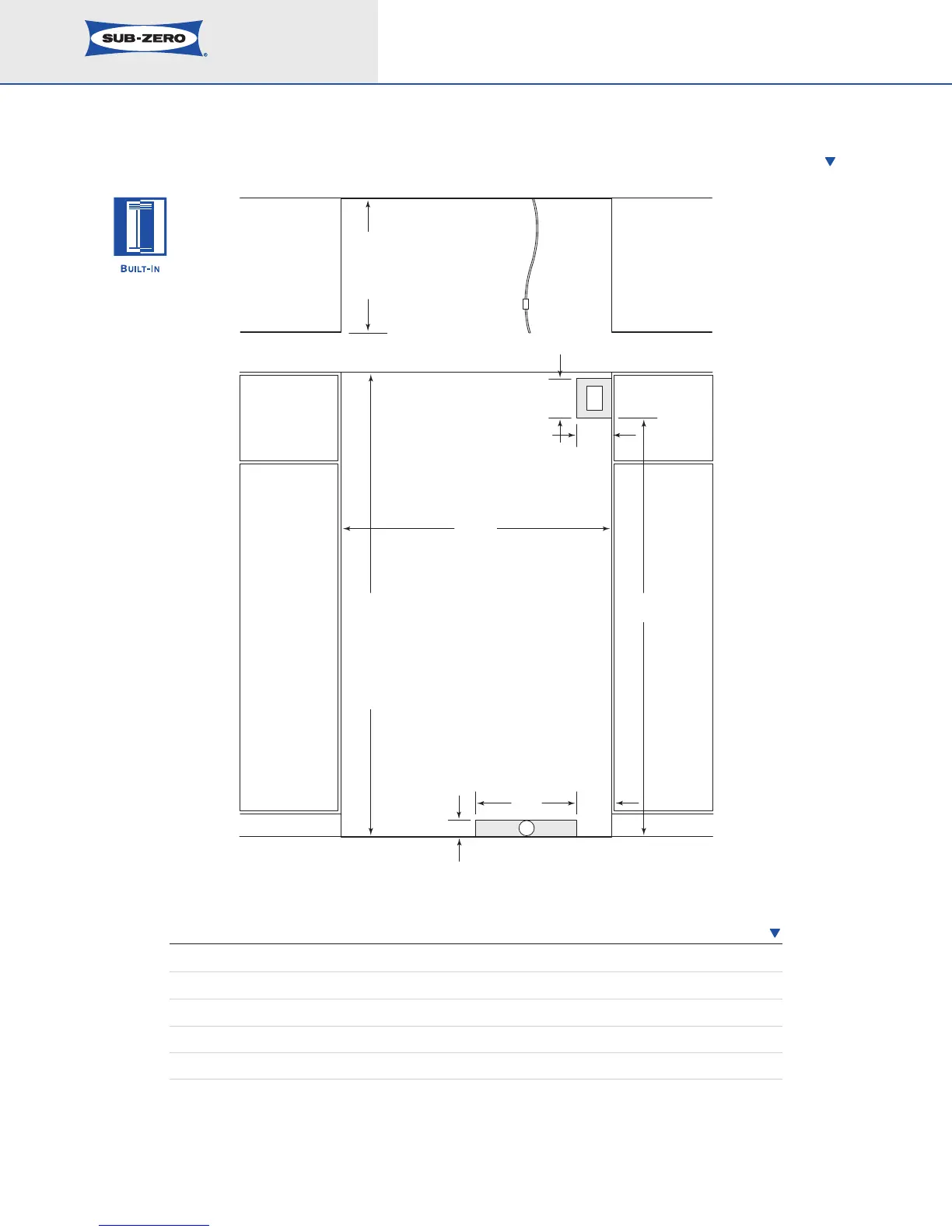
Built-In Model 695
Dimensions in parentheses are in
millimeters unless otherwise specified.
4
INSTALLATION SPECIFICATIONS
83
3
/4"
(2127)
ROUGH
OPENING
HEIGHT
WITH
STANDARD
11" (279)
GRILLE
75
1
/2"
(1918)
7"
(
178)
6"
(152)
47
1
/2"
(
1207)
R
OUGH OPENING WIDTH
24"
(610)
ROUGH
OPENING
DEPTH
E
3"
(76)
18"
(457)
W
LOCATE WATER SUPPLY
WITHIN SHADED AREA
L
OCATE ELECTRICAL
W
ITHIN SHADED AREA
6"
(152)
SHUT-OFF
VALVE
E
XTEND WATER LINE
A
PPROX. 36" (914)
F
ROM BACK WALL
FRONT VIEW
TOP VIEW
DIMENSIONS
Finished Rough Opening Width 47
1
/2" (1207)
Finished Rough Opening Height 83
3
/4" (2127)
Finished Rough Opening Depth 24" (610)
Location of Electrical Within upper shaded area
Location of W
ater Supply
Within lower shaded area
See Installation Instructions shipped with unit for detailed specifications.
Refer to the Sub-Zero Design Guide pdf file for additional specifications.

Other manuals for Sub-Zero 695

Related product manuals