EasyManua.ls Logo

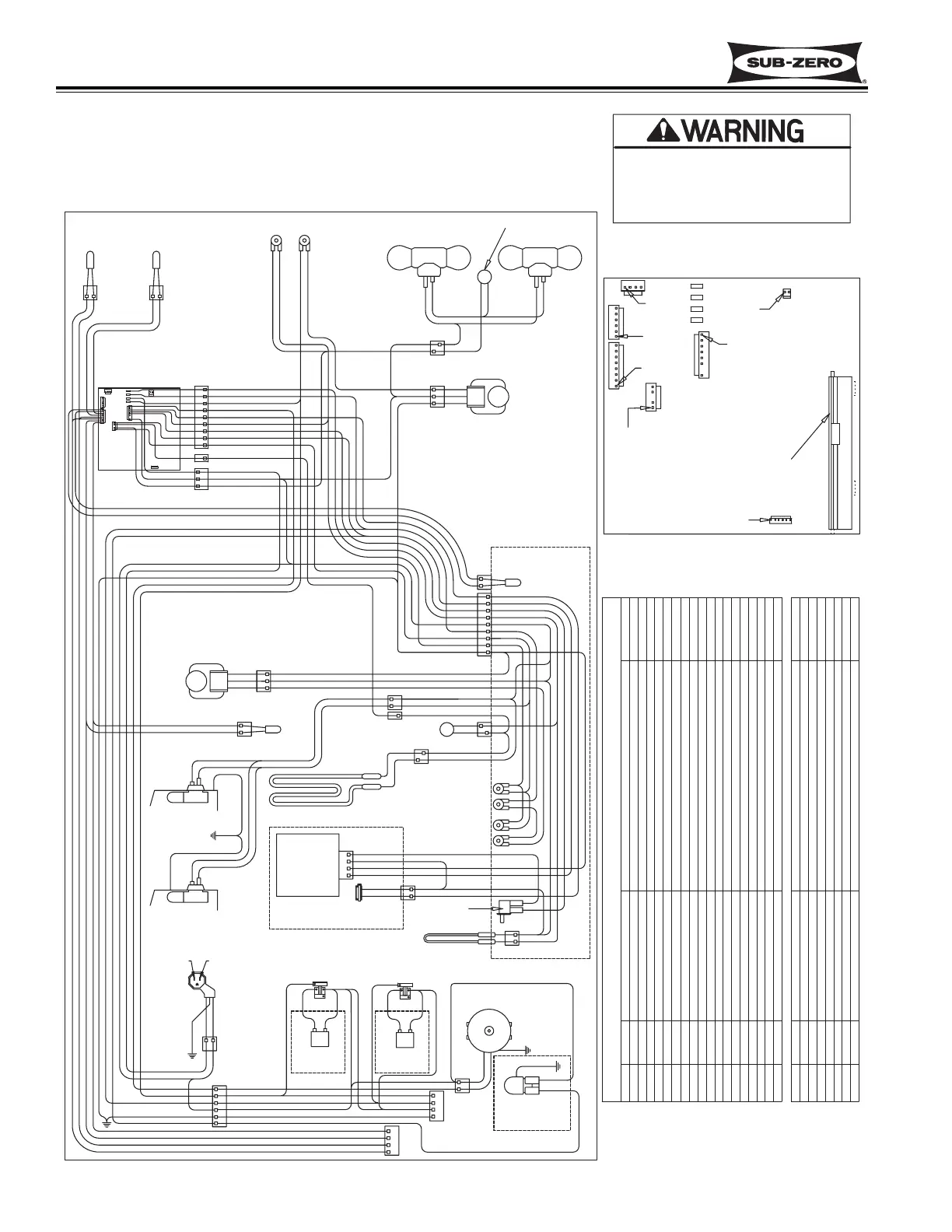
Sub-Zero 700-2 Series - WIRING DIAGRAM MODEL: 700 TC;I-2

Sub-Zero 700-2 Series
166 pages
Print Icon
To Next Page IconTo Next Page
To Next Page IconTo Next Page
To Previous Page IconTo Previous Page
To Previous Page IconTo Previous Page
Loading...
Page 149
General Information
Integrated (
Integrated (
700-
700-
2) Series
2) Series
10-2
#3756780 - Revision D - July, 2005
ICE MAKER
SWITCH
6 WHITE W/ BLUE STRIPE
2 PURPLE
1 TAN
3 PINK
7 BLUE
4 ORANGE
5 YELLOW
8 WHITE W/ RED STRIPE
9 GRAY
GRAY W/ WHITE STRIPE
1 BLACK
2 WHITE
3 ORANGE
REF LIGHT
SWITCH
REF FAN
SWITCH
CONTROL BOARD
UPPER DRAWER
LIGHT
LOWER DRAWER
LIGHT
WHITE
ORANGE
WHITE
ORANGE
GREEN
GREEN
LIGHT
LIGHT
FAN
FAN
DEFROST HEATER
ICE MAKER VALVE SENSOR
DEF SENSOR
ICE MAKER ACC (FILL TUBE)
ICE MAKER POWERS ICE MAKER
SENSES WATER VALVE ACTIVATION
SENSES WHEN DEF HEATER SHUTS OFF
POWERS FILL TUBE HEATER AND ACCESSORIES
POWERS DEFROST CIRCUIT
WHITE/BLUE
GRAY/WHITE
TAN
BLUE
PINK
-This wiring information is provided for use by qualified
service personnel only.
-Disconnect appliance from electrical supply before
beginning service.
-Be sure all grounding devices are connected when
service is complete.
-Failure to observe the above warnings may result in
severe electrical shock.
J6
J5
J4
J1
J2
E10
E6
J7
J3
E7
E2
BLUE/BLACK
BLUE/BLACK
BLUE/YELLOW
ORANGE/YEL
BLUE/WHITE
BLUE/WHITE
BLUE/RED
ORANGE/RED
WHITE/RED
LOW VOLTAGE THERMISTOR CIRCUITS
REF EVAP
FRZ COMPARTMENT
FRZ COMPARTMENT
REF COMPARTMENT
REF COMPARTMENT
REF EVAP
FRZ EVAP
NOT USED(NO PIN)
DOOR LIGHTS SENSE
DRAWER LIGHTS SENSE
NOT USED(NO PIN)
NOT USED
NOT USED
CONDENSER FAN
REF COMPRESSOR
LIGHTS
NEUTRAL
DESCRIPTION
POWER IN
120 VOLT CIRCUITS
FRZ COMPRESSOR
J7-1 C FAN
DEF HTRE2
E6
E7
E10
CIRCUIT
RCOMP
FCOMP
L1
J7-5
J7-3
J7-2
J7-4
J4-1
J7-7
J7-6
J7-8
E FAN
LITES
NEU
J1-4
J4-5
J4-4
J4-3
J4-2
J1-3
J1-2
J1-1
J1-8
J1-7
J1-6
J1-5
CONTROL BOARD SUMMARY
SENSES FRZ CABINET TEMP (DRAWERS)
SENSES FRZ CABINET TEMP (DRAWERS)
SENSES REF CABINET TEMP
SENSES REF CABINET TEMP
SENSES REF EVAP TEMP
SENSES REF EVAP TEMP
SENSES FRZ EVAP TEMP (DRAWERS)
SENSES IF DOOR OPEN
SENSES IF EITHER DRAWER OPEN
POWERS CONDENSER FAN
POWERS REF COMPRESSOR (DOOR)
POWERS LIGHTS
POWERS FRZ COMPRESSOR (DRAWERS)
POWER INTO BOARD
NEUTRAL INTO BOARD
FUNCTION COLOR
GRAY
PURPLE
BLACK
YELLOW
ORANGE
WHITE
ORANGE
J6
J1
J4
J7
J2
J3
E6
E10
E7
E2
J5
SENSES FRZ EVAP TEMP (DRAWERS)
FRZ EVAP
IACC
ICE
F DR
R DR
EVAP FRZ
EVAP FRZ
EVAP REF
EVAP REF
REF
REF
FRZ
FRZ
WIRING DIAGRAM
MODEL: 700TC/I-2
(Prior to Serial #1755730)
1 WHITE W/ BLUE STRIPE
REFRIGERATOR
LIGHTS
ICEMAKER
(OPTIONAL)
FILL TUBE
HEATER
TROUGH HEATER
WHITE
BLUE1
2
BLACK
BLACK
PINK
WHITE
GREEN
TAN
4
3
1
2
WHITE W/ BLUE
WHITE2
1
WHITE W/ BLUE STRIPE
TAN
PINK
BLUE
WHITE
RED
PURPLE
YELLOW
ORANGE
SWITCH BOX
6 PURPLE
9 TAN
7 PINK
5 BLUE
8 YELLOW
2 WHITE
4 ORANGE
3 GREEN
GRAY W/ WHITE
GREEN
WHITE
RED
DRAWER EVAP
FAN MOTOR
FAN MOTOR
REF EVAP
3
2
1
GREEN
WHITE
RED 1
2
3
WHITE
GREEN
ORANGE
ORANGE 1
WHITE
LIGHT
TERMINATOR
GRAY
RED
YELLOW
ORANGE
BLUE W/ WHITE STRIPE
BLUE W/ WHITE STRIPE
ORANGE W/ YELLOW STRIPE
BLUE W/ RED STRIPE
BLUE W/ BLACK STRIPE
BLUE W/ BLACK STRIPE
ORANGE W/ RED STRIPE
BLACK
PURPLE
TAN
GREEN
WHITE W/ RED STRIPE
GRAY
DEFROST HEATER
DEFROST
TERMINATOR
SENSOR
PURPLE
FRZ
COMPRESSOR,
DRAWERS
(FRONT)
CAPACITOR
ORANGE W/ YELLOW STRIPE
BLUE W/ YELLOW STRIPE
BLUE W/ RED STRIPE
ORANGE W/ RED STRIPE
WHITE
WHITE
PURPLE
WHITE W/ RED STRIPE
ORANGE W/ RED STRIPE
BLUE W/ RED STRIPE
BLUE W/ YELLOW STRIPE
ORANGE W/ YELLOW STRIPE
WHITE W/ RED STRIPE
GREEN
WHITE
BLACK
GRAY
WHITE
PURPLE
GREEN
GRAY
1
4
2
3
6
WHITE
BLACK
12
RUNNING
CAPACITOR
L2L1
GREEN
PLAIN
RIBBED
SUPPLY
CORD
POWER
REF
COMPRESSOR,
DOOR
(REAR)
TAN
GRAY
WHITE
WHITE
MFG TEST
TERMINALS
4
3
2
1
WHITE W/ RED STRIPE 1
WHITE 2
GRAY 4
WHITE 2
PURPLE 1
GREEN 3
RUNNING
BLACK
BLACK
GREEN
CONDENSER
FAN MOTOR
WHITE
TAN
(OPTIONAL)
SOLENOID
ICEMAKER
GREEN
TAN
WHITE
5 TAN
TAN
ORANGE W/ YELLOW STRIPE
BLUE W/ YELLOW STRIPE
ORANGE W/ RED STRIPE
BLUE W/ RED STRIPE
CONTROL BOARD DETAIL
LCD DISPLAY
1 ORANGE
2 WHITE
GRAY W/ WHITE
2 WHITE
1 GRAY W/ WHITE
BLUE W/ YELLOW STRIPE
BLACK
(FRZ CAB)
SENSOR
(REF EVAP)
SENSOR
(REF CAB.)
BLUE
WHITE 2
WHITE
SENSOR
(FRZ EVAP)
(WHEN USED)
(WHEN USED)
PIN 1
0
0
0
PIN 1
PIN 1
PIN 1
PIN 1
PIN 1
0
0
PIN 1
0
BLACK
PART NUMBER 3756640 REV D

Related product manuals