EasyManua.ls Logo

Sub-Zero 700-2 Series - Page 165

Sub-Zero 700-2 Series
166 pages
Print Icon
To Next Page IconTo Next Page
To Next Page IconTo Next Page
To Previous Page IconTo Previous Page
To Previous Page IconTo Previous Page
Loading...
Page 165
General Information
Integrated (
Integrated (
700-
700-
2) Series
2) Series
10-18
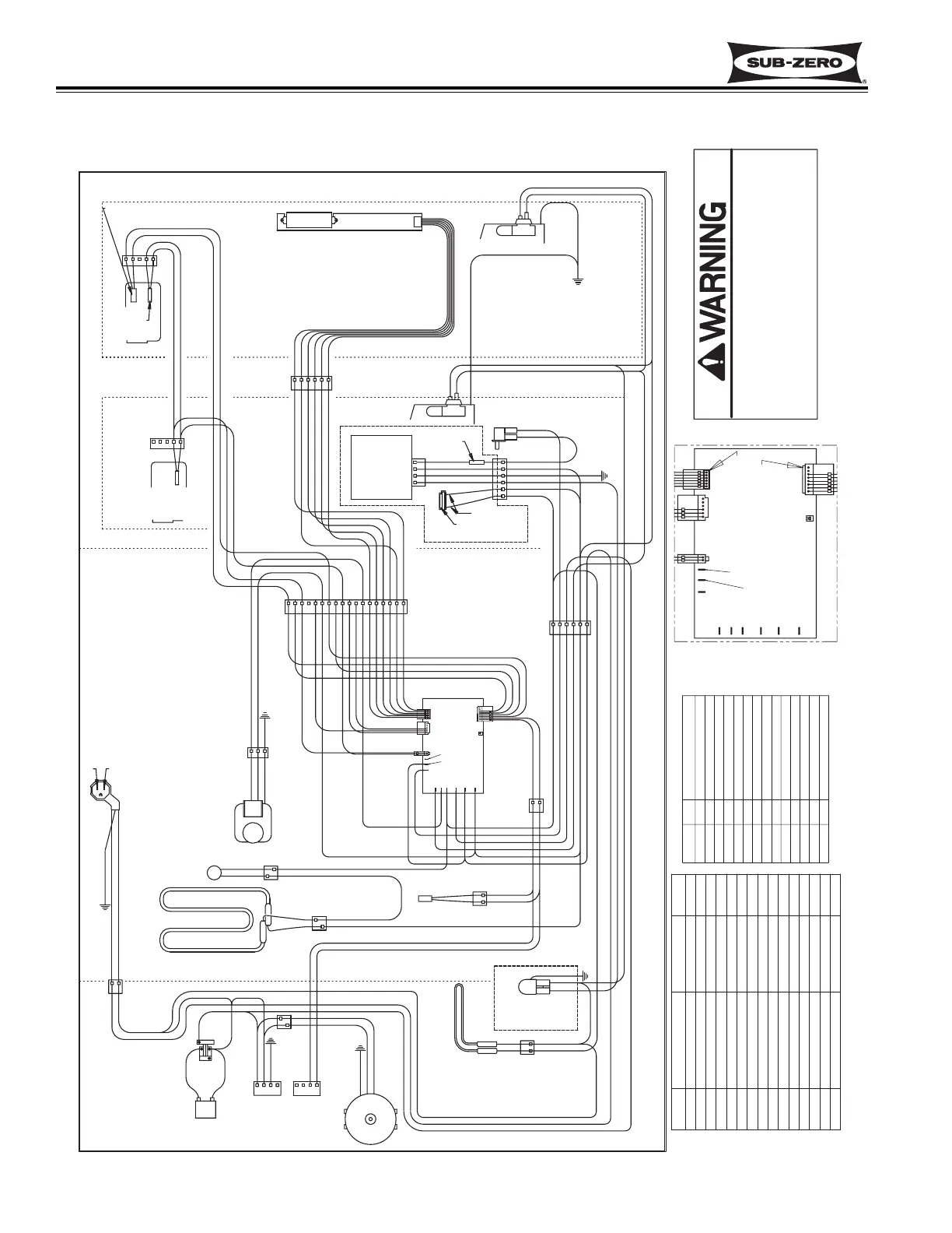
#3756780 - Revision D - July, 2005
-This wiring information is provided for use by qualified
service personnel only.
-Disconnect appliance from electrical supply before
beginning service.
-Be sure all grounding devices are connected when
service is complete.
-Failure to observe the above warnings may result in
severe electrical shock.
P14
BLUE
PURPLE
6
P10
ORANGE
RED
1
GRAY
1
5
BLUE
WHITE
PINK
WHITE
BLUE
1
1
1
1
P3
P2
P4
GREEN
2
1
RED
FREEZER
LIGHT(LOWER)
FREEZER
LIGHT(UPPER)
11
1
1
P3
P2
P4
P10
P5
P6
P14
P8
P9
P7
P1
YEL/BK
BLUE
PINK
8
WHITE
YEL/RED
7
BLACK
2
CONDENSER FAN MOTOR
WHITE
GREEN
TAN
PINK
ICEMAKER
(OPTIONAL)
WHITE
PURPLE
BLACK
BLUE
ORANGE
5
P15
TEST
RED
PURPLE
1
2
BLACK
PART NUMBER 3756712 REV B
2
P8
P9
P7
TAN
WHITE
BLACK
3
WHITE
P5
4
RIBBED
PLAIN
GREEN
ICEMAKER
SWITCH
WHITE
BLUE
DRAIN
HEATER
LT. BLU/YEL
1 BLACK
DRAWER
CONTROLS
P1
P15
TEST
2
YEL/WH
1
6
LT. BLU/YEL
5
4
1
GREEN
TAN
PINK
6
5
4
3
2
BLACK
43
PURPLE
2
3
54
2
1
BLU/RED
BLACK
BLACK
1
DEFROST
HEATER
ORNG/RED
BLACK
BLUE/RED
18
WHITE W/RED
1
BLACK
LT. BLU/YEL
3
WHITE
BLU/RED
DOOR
SWITCH
(OPTIONAL)
GREEN
GREEN
ICEMAKER
SOLENOID
WHITE
BLACK
PURPLE
BLUE
ORANGE
RUNNING
CAPACITOR
WHITE
BLACK
PURPLE
POWER
SUPPLY
CORD
COMPRESSOR
STARTING
RELAY
BLUE
COMPRESSOR
TAN
WHITE
WHITE
WHITE
TAN
WHITE
BLUE
DEFROST
TERMINATOR
17ORANGE
P6
16
YELLOW
WH/RED
2
WHITE
15
GREEN
RED
WHITE
LT. BLU/YEL
3
2
1
ORANGE
GREEN
RED
WHITE
CONTROL BOARD DETAIL
ORANGE
14
3
WHITE
BLU/RED
13WH/RED
4
WHITE W/RED
BLUE
GRAY
WHITE
12
11
BLU/RED
10
WHITE
WHITE W/RED
WHITE W/RED
LT. BLUE W/YELLOW
LT. BLUE W/YELLOW
RED
6
5
4
3
2
1
2
1
BLACK
YELLOW
WHITE
BLUE
ORANGE
9
BLACK
EVAPORATOR
SENSOR
BLACK
GRAY
WHITE
L2
L1
THERMISTOR
DOOR
SWITCH
ICEMAKER
FUSE
BLACK
FILL TUBE
HEATER
REMOTE
DISPLAY
ZONE
THERMISTORS
PINK
PINK
MFG TEST
1 PURPLE
2 WHITE
3 GREEN
WIRING DIAGRAM MODEL 700BF/I-2
2
1
GREEN
EVAPORATOR
MOTOR
WHITE
PINK
BLACK
WHITE
RED
2 BLU/BK
1 BLU/BK
ORNG/RED
BLUE/RED
2 ORNG/RED
1 BLUE/RED
TERMINALS
P11
P12
1
P11
P12
2
1
BLUE
------
DEFROST HEATER
8
7
P14
ORANG
PURPLE
LIGHTS-115V OUT
6
P13
BLACK
------
L1-HOT 115
P12
WHITEL2-NEUTRAL 115
P11
5
------
-----
P10
4
3
BAFFLES
2
1
BLACK
-----
P1
P9
WH/RD
RED
LIGHT SWITCH
P1
1
P8
P1
LT. BLUE W/YELLOW
ABBR.
COLOR
DESCRIPTION
EMPTY
TERM.
THERMISTORS
BLUE W/RED
BLUE
ORANGE
YELLOW
RED
WHITE
P15 TEST
BLUE
MANF TEST
PURPLE
ORANGE
COMPRESSOR
P7
-----
BLACK
------
P6
PINK
WHITE
-----
P5
BLACK
REMOTE DISPLAY
PINK
P4
ICEMAKER SWITCH
P3
RED
WHITE/RED
EVAPORATOR FAN
P2
SEE AUX. CHART
-----
SEE AUX. CHART
JUMPER
------
BLACK
COLOR
6
5
4
3
2
1
P3
No#
TERM.
BLUE W/RED
EMPTY
AUXILIARY CHART
BLUE W/BLACK
BLUE W/BLACK
LT. BLUE W/YELLOW
------

Related product manuals