EasyManua.ls Logo

Sub-Zero 700BC - Condenser Cleaning

Sub-Zero 700BC
20 pages
Print Icon
To Next Page IconTo Next Page
To Next Page IconTo Next Page
To Previous Page IconTo Previous Page
To Previous Page IconTo Previous Page
Loading...
15
Dimensions in parentheses are in
millimeters unless otherwise specified.
If you have questions, contact your Sub-Zero
d
ealer or cabinet supplier. Additional panel
information can be found in the Sub-Zero
Design Guide.
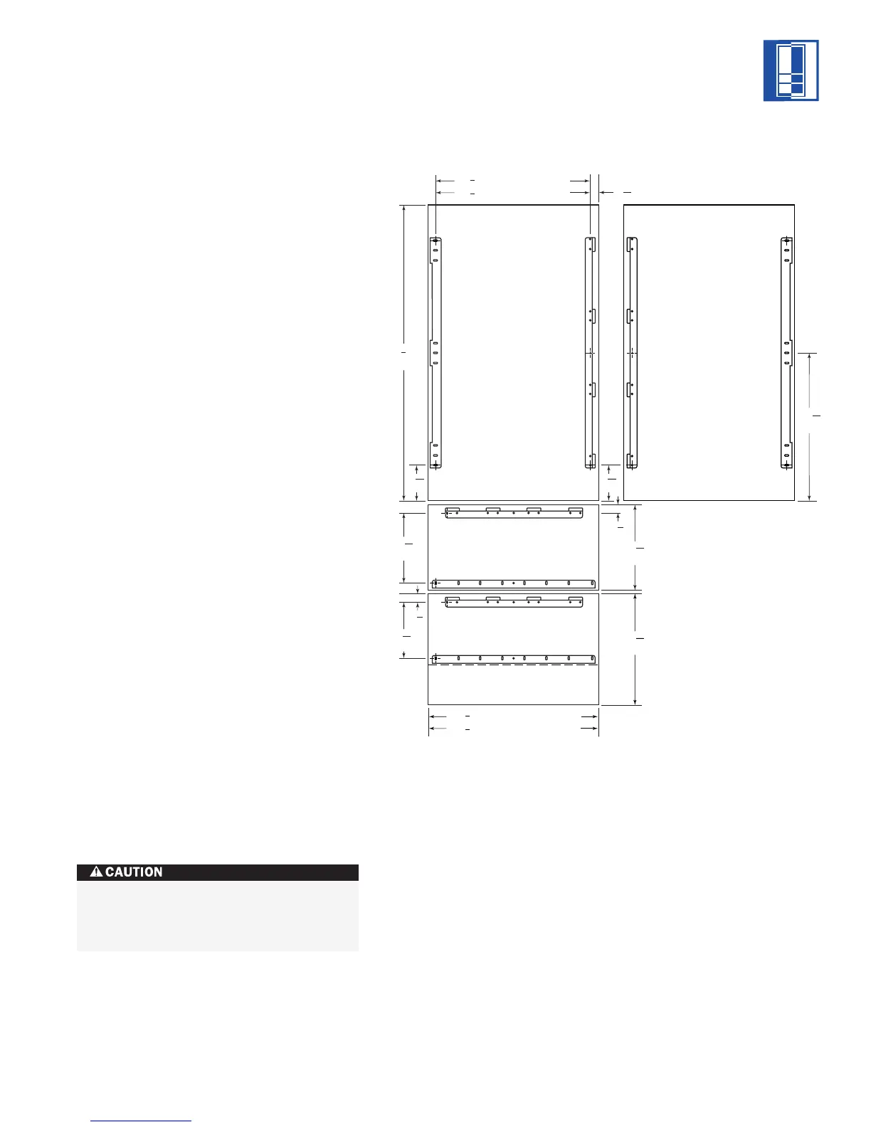
DOOR PANEL INSTALLATION
Remove the two pieces of mounting hardware
attached to the front of the door and set aside.
Place the door panel lying face down on a
protected surface to ensure that the front is not
scratched or damaged.
Position the plastic template provided flush
with the lower edge of the door. Be sure you
are following the exact location for the right-
hand (RH) or left-hand (LH) door position.
Refer to illustration 12 on page 14.
IMPORTANT NOTE:
The template has two
usable sides, one side for the door and one for
the drawers. Make sure you use the proper
holes and side. Remember you are viewing the
door panel from the back side in illustration 12
on page 14.
The overall size of the panel shown in illustra-
tion 13 is the minimum size necessary to cover
the door of the unit. The exact measurements
of your door panel may vary depending on the
particular installation you are following.
Once you have located the pr
oper position for
the bracket, mark the pilot holes, remove the
template and drill pilot holes for mounting the
bracket. It is best to start with a few holes,
position the bracket, drill the remaining pilot
holes and then secure the mounting bracket
with the #8 x
1
/2" screws provided. Illustration
13 shows the mounting hardware location for
door and drawer panels.
INTEGRATED INSTALLATION INSTRUCTIONS
23
7
8
(606) FOR 27" WIDE UNITS
3
2
7
8
(835) FOR 36" WIDE UNITS
*45
1
4
MIN.
(1149)
11
5
16
(287)
8
7
1
6
(
214)
1
1
4
(32)
*1
7
16
(37)
13
7
16
(341)
1
1
4
(32)
5
3
16
(132)
22
7
16
(570)
5
5
1
6
(135)
R
H DOOR SWING LH DOOR SWING
FIXED
*16
9
1
6
(421)
MAX.
P
VIEW FROM BACK OF PANELS
*
DIMENSIONS MAY VARY
*26
1
2
(673) MIN FOR 27" WIDE UNITS
*35
1
2
(902) MIN FOR 36" WIDE UNITS
Exer
cise caution when drilling holes for
mounting hardware. This is especially
critical with inset panels.
Illus. 13

Other manuals for Sub-Zero 700BC

Related product manuals