EasyManua.ls Logo

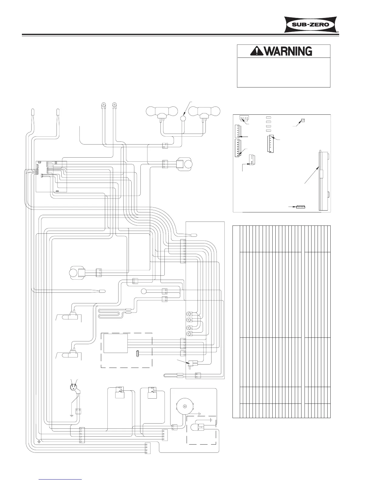
Sub-Zero 700TC-3 - Wiring Diagram: Model 700 TC-3

Sub-Zero 700TC-3
136 pages
Print Icon
To Next Page IconTo Next Page
To Next Page IconTo Next Page
To Previous Page IconTo Previous Page
To Previous Page IconTo Previous Page
Loading...
Wiring Diagrams/Schematics
Integrated
Integrated
(700-
(700-
3
3
T
T
ALL)
ALL)
Series
Series
10-2
#3758412 - Revision B - December, 2006
ORANGE/BLACK
WHITE/BLUE
GRAY/WHITE
TAN
BLUE
PINK
BLUE/BLACK
BLUE/BLACK
BLUE/YELLOW
ORANGE/YEL
BLUE/WHITE
BLUE/WHITE
BLUE/RED
ORANGE/RED
WHITE/RED
PURPLE
BLACK
WHITE
ORANGE
SENSES WATER VALVE ACTIVATION
SENSES WHEN DEF HEATER SHUTS OFF
SENSES FRZ CABINET TEMP (DRAWERS)
SENSES FRZ CABINET TEMP (DRAWERS)
SENSES REF CABINET TEMP
SENSES REF CABINET TEMP
SENSES REF EVAP TEMP
SENSES REF EVAP TEMP
SENSES FRZ EVAP TEMP (DRAWERS)
SENSES FRZ EVAP TEMP (DRAWERS)
DEFROST HEATER
ICE MAKER ACC (FILL TUBE)
POWERS ICE MAKER
POWERS DEFROST CIRCUIT
NOT USED(NO PIN)
DOOR LIGHTS SENSE
DRAWER LIGHTS SENSE
NOT USED(NO PIN)
NOT USED
CONDENSER FAN
REF COMPRESSOR
LIGHTS
NEUTRAL
POWER IN
120 VOLT CIRCUITS
FRZ COMPRESSOR
SENSES IF DOOR OPEN
SENSES IF EITHER DRAWER OPEN
POWERS CONDENSER FAN
NEUTRAL INTO BOARD
POWERS REF FAN SW
ICE MAKER VALVE SENSOR
DEF SENSOR
REF EVAP
FRZ COMPARTMENT
FRZ COMPARTMENT
REF COMPARTMENT
REF COMPARTMENT
REF EVAP
FRZ EVAP
FRZ EVAP
EVAP REF
EVAP REF
REF
REF
FRZ
FRZ
LOW VOLTAGE THERMISTOR CIRCUITS
C FAN
DEF HTR
RCOMP
FCOMP
L1
E FAN
LITES
IACC
ICE
F DR
R DR
EVAP FRZ
EVAP FRZ
J7-1
E2
E6
E10
J7-5
J7-3
J4-1
J7-7
J1-4
J4-5
J4-4
J4-3
J1-3
J1-2
J1-1
J1-8
J1-7
J1-6
J1-5
ICE MAKER
POWERS FILL TUBE HEATER AND ACCESSORIES
J7-2
J7-4
J7-6
J7-8 NEU
J4-2
POWERS REF COMPRESSOR (DOOR)
YELLOW
FAN SW
DESCRIPTION
E7
CIRCUIT
POWERS LIGHTS
POWERS FRZ COMPRESSOR (DRAWERS)
POWER INTO BOARD
FUNCTION COLOR
GRAY
GRAY
CONTROL BOARD SUMMARY
0
-This wiring information is provided for use by qualified
service personnel only.
-Disconnect appliance from electrical supply before
beginning service.
-Be sure all grounding devices are connected when
service is complete.
-Failure to observe the above warnings may result in
severe electrical shock.
GRAY
J1
J7
0
0
0
0
0
1 WHITE W/ BLUE STRIPE
6 PURPLE
9 TAN
7 PINK
5 RED
8 YELLOW
2 WHITE
4 ORANGE
3 GRN/YLW
L2
WHITE 2
BLACK
BLACK
WHITE
WHITE
ORANGE
WHITE
ORANGE
YELLOW
ORANGE
GREEN/YELLOW
WHITE
RED
3
2
1
DEFROST
TERMINATOR
1 ORANGE
2 WHITE
GRAY W/ WHITE
GRAY/WHITE 1
GRAY/WHITE 2
BLUE 1
GRAY/WHITE
GRAY/WHITE
BLUE
WHITE
WHITE/BLUE5
2
WHITE W/ BLUE STRIPE
TAN
PINK
RED
WHITE
PURPLE
GREEN/YELLOW
TAN6
1
PINK
WHITE4
3
BLACK
GREEN
GREEN
TAN
WHITE
WHITE
BLUE
BLUE 1
WHITE 2
PURPLE
ORANGE W/ YELLOW STRIPE 4
BLUE W/ YELLOW STRIPE 3
BLUE W/ RED STRIPE 1
ORANGE W/ RED STRIPE 2
WHITE
WHITE
WHITE
WHITE W/ RED STRIPE 1
WHITE 2
GRAY 4
WHITE 2
PURPLE 1
GREEN/YELLOW 3
BLACK
PURPLE
WHITE W/ RED STRIPE
ORANGE W/ RED STRIPE
BLUE W/ RED STRIPE
BLUE W/ YELLOW STRIPE
ORANGE W/ YELLOW STRIPE
6 WHITE W/ RED STRIPE
GREEN/YELLOW
WHITE
BLACK
GRAY
2 WHITE
4 PURPLE
3 GREEN/YELLOW
1 GRAY
WHITE
BLACK
12
L1
GREEN/YELLOW
PLAIN
RIBBED
5 TAN
TAN
BLUE W/ RED STRIPE
ORANGE W/ RED STRIPE
J1
E10
E6
E7
WHITE W/ BLUE STRIPE
PURPLE
TAN
PINK
BLUE
ORANGE
YELLOW
WHITE W/ RED STRIPE
GRAY
GRAY W/ WHITE STRIPE
BLACK
WHITE
ORANGE
GRAY
J6
J5
J4
J2
J7
J3
E2
GRAY W/ WHITE
GREEN/YELLOW
WHITE
RED 1
2
3
WHITE
GRN/YLW
ORANGE
ORANGE 1
WHITE
GRAY
RED
YELLOW
ORANGE
BLUE W/ WHITE STRIPE
BLUE W/ WHITE STRIPE
ORANGE W/ YELLOW STRIPE
BLUE W/ BLACK STRIPE
BLUE W/ BLACK STRIPE
BLACK
PURPLE
TAN
GREEN/YELLOW
WHITE W/ RED STRIPE
GRAY
ORANGE W/ YELLOW STRIPE
BLUE W/ YELLOW STRIPE
ORANGE W/ RED STRIPE
BLUE W/ RED STRIPE
BLUE W/ YELLOW STRIPE
WHITE 2
WHITE
(OPTIONAL)
ICEMAKER
MFG TEST
TERMINALS
SOLENOID
J6
J4
J2
J3
E6
E10
E7
E2
J5
0
DISPLAY
PIN 1
PIN 1
PIN 1
PIN 1
PIN 1
PIN 1
PIN 1
STAR-K
ACCESSORY
WIRE
LIGHT
LIGHT
FAN
FAN
FILL TUBE
HEATER
CORD
POWER
CONDENSER
FAN MOTOR
SENSOR
(FRZ EVAP)
TROUGH HEATER
ICE MAKER
SWITCH
REF LIGHT
SWITCH
REF FAN
SWITCH
CONTROL
BOARD
UPPER DRAWER
LIGHT
LOWER DRAWER
LIGHT
WIRING DIAGRAM
MODEL: 700TC-3
PART NUMBER 3758574 REV B
REFRIGERATOR
LIGHTS
ICEMAKER
(OPTIONAL)
SWITCH BOX
DRAWER EVAP
FAN MOTOR
FAN MOTOR
REF EVAP
LIGHT
TERMINATOR
DEFROST
HEATER
SENSOR
FRZ COMPRESSOR,
DRAWERS
(FRONT)
SUPPLY
REF COMPRESSOR,
DOOR
(REAR)
CONTROL BOARD DETAIL
(FRZ CAB)
SENSOR
(REF EVAP)
SENSOR
(REF CAB.)

Table of Contents

Related product manuals