EasyManua.ls Logo

Sub-Zero 700TC - Key Features and Accessories

Sub-Zero 700TC
15 pages
Print Icon
To Next Page IconTo Next Page
To Next Page IconTo Next Page
To Previous Page IconTo Previous Page
To Previous Page IconTo Previous Page
Loading...
Planning Information
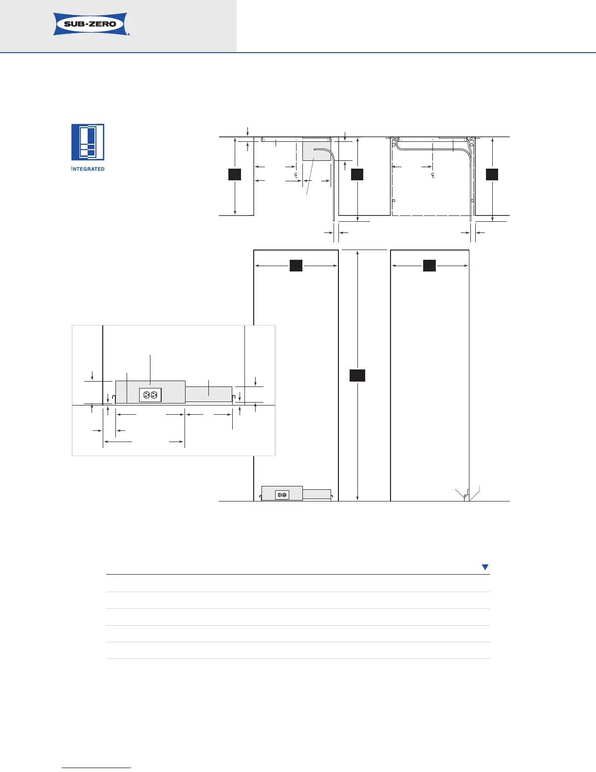
Integrated Model 700TC(I)
Dimensions in parentheses are in
millimeters unless otherwise specified.
4
INSTALLATION SPECIFICATIONS
25"
(635)
27"
(686)
80"
(
2032)
27"
(
686)
25"
(
635)
ANTI-TIP
BRACKET*
W
ATER LINE
BOTTOM ENTRY
LOCATION
WATER LINE
SIDE ENTRY
LOCATIONS
1
1
/2"
(38)
1
1
/2"
(38)
27"
(
686)
1
1
/2"
(38)
15
1
/2"
(394)
9"
(229)
13
1
/2"
(343)
13
1
/2"
(343)
ANTI-TIP
BRACKET
6
"
(152)
TOP VIEW TOP VIEW
SIDE VIEWFRONT VIEW
WATER LINE
SIDE ENTRY
LOCATION
ANTI-TIP
BRACKET
NOTE: ANTI-TIP BRACKET MUST BE INSTALLED TO
PREVENT UNIT FROM TIPPING FORWARD
4
1
/2"
(114)
2
1
/2" (64)
15
1
/2" (394)
3
/4"
(19)
3"
(76)
1
/4"
(6)
13" (330) 9"
(229)
ANTI-TIP
BRACKET
LOCATE WATER LINE
(REAR ENTRY) WITHIN
SHADED AREA
LOCATE ELECTRICAL WITHIN
SHADED AREA – ORIENT GROUND
PRONG TO RIGHT AS SHOWN
*PLACEMENT OF THE
ANTI-TIP BRACKET
SHOULD BE 24" (610)
FROM THE FRONT OF THE
UNIT WITHOUT PANELS
TO THE BACK OF THE
ANTI-TIP BRACKET.
DIMENSIONS
Finished Rough Opening Width 27" (686)
Finished Rough Opening Height 80" (2032)
F
inished Rough Opening Depth 25" (635)*
Location of Electrical Within shaded area
Location of Plumbing (Model 700TCI only)
Within shaded area
*The depth of the Model 700TC(I) is 24" (610) from the front of the unit to its back. Your design
may necessitate moving the unit back, or cabinets forward to achieve a flush fit. This will require
a minimum r
ough opening depth of 25" (635).
See Installation Instructions shipped with unit for detailed specifications.

Other manuals for Sub-Zero 700TC

Related product manuals