EasyManua.ls Logo

Sub-Zero 736TCI - Sub-Zero Built-In Models

Sub-Zero 736TCI
20 pages
Print Icon
To Next Page IconTo Next Page
To Next Page IconTo Next Page
To Previous Page IconTo Previous Page
To Previous Page IconTo Previous Page
Loading...
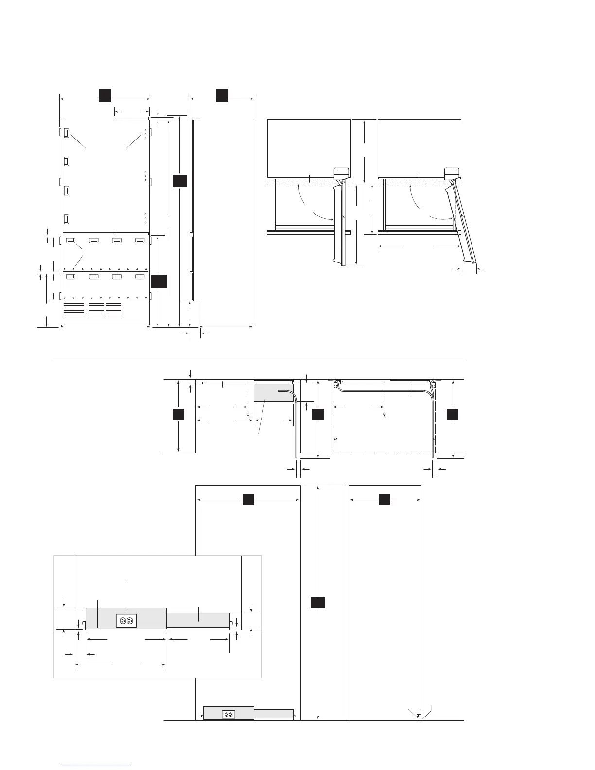
5Dimensions in parentheses are in
millimeters unless otherwise specified.
INTEGRATED INSTALLATION SPECIFICATIONS
D
OOR MOUNTING
DETAIL
DRAWER MOUNTING
DETAIL
TOP OF
ROUGH
OPENING
77
13
/16"*
(1976)
34
1
/2"*
(876)
3
/8"
(10)
13
1
/4"
(337)
1
/2"
(13)
10
1
/4"
(260)
20
3
/8"
(518)
14"(356)
1
5
/16"
(33)
9
3
/4"
(248)
4"
(102)
80"*
(2032)
36"
(914)
24"
(610)
FRONT VIEW
SIDE VIEW
(UNIT DIMENSION) (UNIT DIMENSION)
*
1
/2" (13)
+
_
ADJUSTMENT IN LEVELING LEGS
105˚
90˚
90˚ DOOR OPENING
DOOR/DRAWER
CLOSED
MAXIMUM DOOR OPENING
DOOR/DRAWER
CLOSED
19
1
/2"*
(495)34
1
/2"*
(876)
24"
(610)
34
7
/8" (886)
7"*
(178)
*
DOOR/DRAWER PANEL THICKNESS NOT INCLUDED – DIMENSION WILL VARY WITH INSTALLATION
TOP VIEW
ANTI-TIP
BRACKET*
*PLACEMENT OF THE
ANTI-TIP BRACKET
SHOULD BE 24" (610)
FROM THE FRONT OF THE
UNIT WITHOUT PANELS
TO THE BACK OF THE
ANTI-TIP BRACKET.
25"
(635)
36"
(914)
80"
(2032)
27"
(686)
25"
(635)
WATER LINE
BOTTOM ENTRY
LOCATION
WATER LINE
SIDE ENTRY
LOCATIONS
1
1
/2"
(38)
1
1
/2"
(38)
27"
(686)
1
1
/2"
(38)
20" (508) 13
1
/2"
(343)
18" (
457)
ANTI-TIP
BRACKET
18" (
457)
6"
(152)
T
O
P VIEW T
O
P VIEW
SIDE VIEW FRONT VIEW
WATER LINE
SIDE ENTRY
LOCATION
ANTI-TIP
BRACKET
2
1
/2" (64)
20" (508)
3
/4"
(19)
3"
(76)
17
1
/2" (445) 13
1
/2"
(343)
ANTI-TIP
BRACKET
NOTE: ANTI-TIP BRACKET MUST BE INSTALLED TO
PREVENT UNIT FROM TIPPING FORWARD
4
1
/2"
(114)
1
/4"
(6)
LOCATE WATER LINE
(REAR ENTRY) WITHIN
SHADED AREA
LOCATE ELECTRICAL WITHIN
SHADED AREA ORIENT GROUND
PRONG TO RIGHT AS SHOWN
INSTALLATION
Models 736TR and 736TC(I)
Models without an ice maker
will not require the water line
connection.
OVERALL DIMENSIONS
Models 736TR and 736TC(I)
TALL UNITS
36" (914) Wide Units
Model 736TR
All Refrigerator
Model 736TC
Refrigerator | Freezer
Model 736TCI
Refrigerator | Freezer
with Ice Maker
SPECIFICATIONS
Overall Dimensions
Width 36" (914)
Height 80" (2032)
Depth 24" (610)
Finished Opening
Width 36" (914)
Height 80" (2032)
Depth 25" (635)*
*The depth of the unit
is 24" (610) from the
front of the unit to its
back. Your design may
necessitate moving the
unit back or cabinets
forward to achieve a
flush fit. This will
require a minimum
roughopeningdepth
of 25" (635).

Other manuals for Sub-Zero 736TCI

Related product manuals