EasyManua.ls Logo

Sub-Zero 736TR - Integrated Models; Model IC-27 R; Model IC-27 FI

Sub-Zero 736TR
24 pages
Print Icon
To Next Page IconTo Next Page
To Next Page IconTo Next Page
To Previous Page IconTo Previous Page
To Previous Page IconTo Previous Page
Loading...
Model Speci fications 5
subzero .com/specs
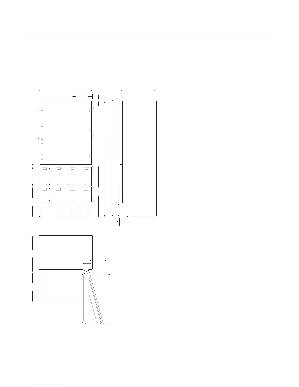
MODELS 736TR, 736TFI AND 736TCI
36" (914)
14"(356)
80"
(2032)
TO TOP OF
OPENNG
24" (610)
1
5
/16"
(
33)
77
13
/16"
(1976)
34
1
/2"
(876)
24"
(610)
20
3
/8"
(518)
10
1
/4"
(260)
13
1
/4"
(337)
9
3
/4"
(248)
4"
(102)
DIMENSIONS WILL VARY WITH PANEL THICKNESS
1
/2"
(13)
3
/8"
(10)
19
1
/2"
(495)
34
1
/2"
(876)
7" (178)
HEIGHT DIMENSIONS ±
1
/2" (13)
Overa ll Dimensions
36" (914) TALL MODELS

Other manuals for Sub-Zero 736TR

Related product manuals