EasyManua.ls Logo

Sub-Zero 736TR - Model 700 TR; Model 736 TR

Sub-Zero 736TR
24 pages
Print Icon
To Next Page IconTo Next Page
To Next Page IconTo Next Page
To Previous Page IconTo Previous Page
To Previous Page IconTo Previous Page
Loading...
Model Speci fications 6
Shi pping Weight lbs (kg)
IC-27R, IC-27FI, 700TR, 700TFI and 700TCI 360 (163)
736TR, 736TFI and 736TCI 480 (218)
700BR, 700BF(I) and 700BC(I) 190 (86)
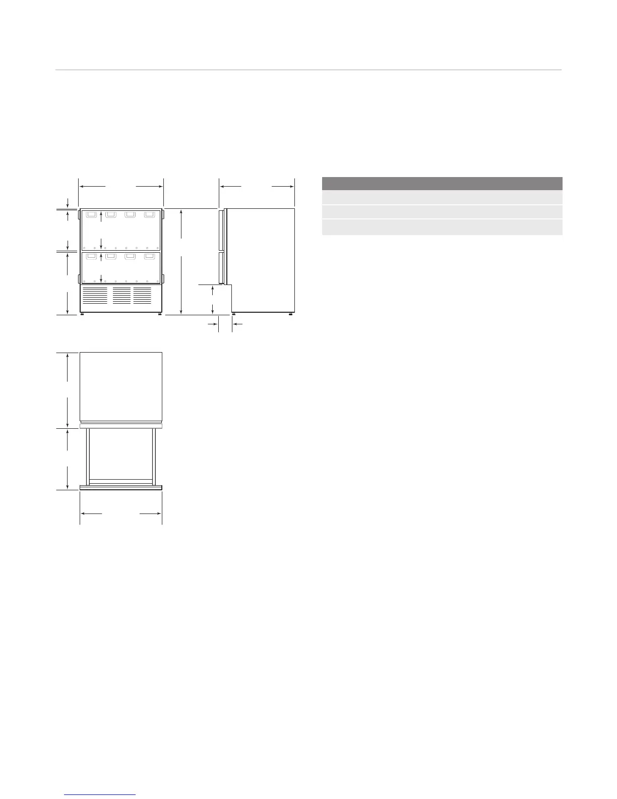
MODELS 700BR, 700BF(I) AND 700BC(I)
27" (686)
34
1
/2"
(876)
24"
(610)
20
3
/8"
(518)
DIMENSIONS WILL VARY WITH PANEL THICKNESS
1
/2"
(13)
3
/8"
(10)
19
1
/2"
(495)
25
7
/8" (657)
24" (
610)
9
3
/4" (248)
4"
(102)
10
1
/4"
(260)
13
1
/4"
(337)
HEIGHT DIMENSIONS ±
1
/2" (13)
Overa ll Dimensions
DRAWER MODELS SPECIFICATIONS

Other manuals for Sub-Zero 736TR

Related product manuals