EasyManua.ls Logo

Sub-Zero BI-48S - Page 11

Sub-Zero BI-48S
40 pages
Print Icon
To Next Page IconTo Next Page
To Next Page IconTo Next Page
To Previous Page IconTo Previous Page
To Previous Page IconTo Previous Page
Loading...
Site Preparation 11
subzero.com/specs
IMPORTANT NOTE: Dimensions assume a
3
/4" (19) panel
thickness. A dual installation kit will be required for this
installation.
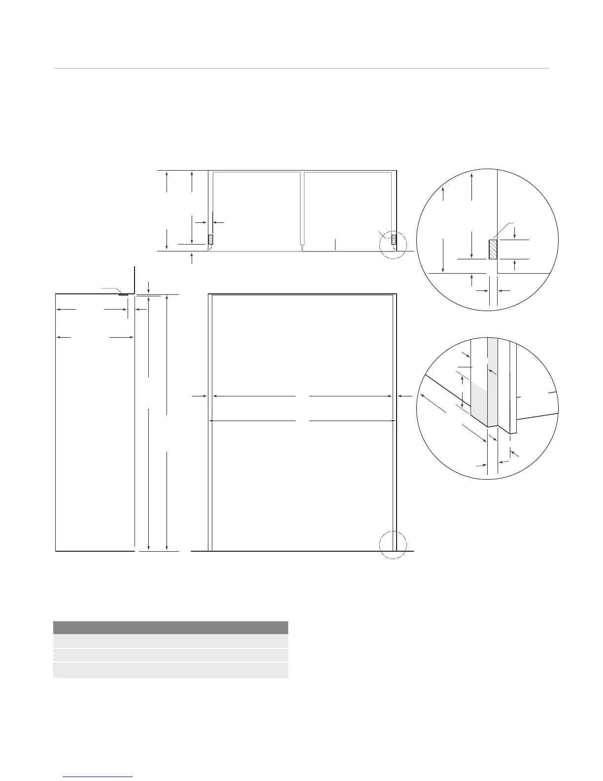
Dual Installation Opening Dimensions
FLUSH INSET INSTALLATION
Opening Widths AB
Two 30" (762) Models 59
3
/4" (1518) 62
1
/4" (1581)
30" (762) and 36" (914) Models 65
3
/4" (1670) 68
1
/4" (1734)
Two 36" (914) Models 71
3
/4" (1822) 74
1
/4" (1886)
2
4"
(
610)
DEPTH
TO CLEAT
26
3
/16"
(665)
FLUSH
I
NSET
D
EPTH
FRONT VIEW
TOP VIEW
2
3
/1
6
"
(
56)
A
WIDTH TO CLEAT
B
FLUSH INSET WIDTH
1
1
/4"
(32)
1
1
/4"
(32)
SIDE VIEW
84"
(2134)
FLUSH
INSET
HEIGHT
1
/4"
(
6)
24" (610)
D
EPTH TO CLEAT
26
3
/1
6
" (
665)
FLUSH INSET DEPTH
2
3
/1
6
"
(56)
83
3
/4"
(2127)
HEIGHT
TO CLEAT
CLEAT
T
WO UNITS WITH
3
/4" (19) PANEL
D
ETAIL A
DETAIL B
1
1
/4"
(32)
CLEAT
Detail A
Detail B
24" (610)
OPENING
DEPTH TO
CLEAT
1
1
/4"
(32)
2
3
/16" (56)
CLEAT
SHADED
AREA
M
UST BE
F
INISHED
3" typical
(76)
4" (102)
3

Other manuals for Sub-Zero BI-48S

Related product manuals