EasyManua.ls Logo

Sub-Zero INTEGRATED WINE Series - High Voltage; Low Voltage

Sub-Zero INTEGRATED WINE Series
8 pages
Print Icon
To Previous Page IconTo Previous Page
To Previous Page IconTo Previous Page
Loading...
2-3
#7040158 - Revision B - June, 2015
INTEGRATED WINE (IW) SERIES
INTEGRATED WINE (IW) SERIES
Electronic Control Info.
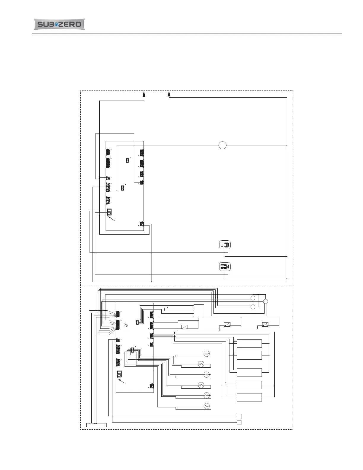
Figure 2-1. IW-30R Electronic Control System Diagram
BASIC ELECTRONIC CONTROL SYSTEM
Input operations for the electronic control system are performed at the UIM, with monitoring, regulating and control-
ling taking place at the control board. Temperatures and possible problems with the unit are displayed in the UIM
depending on the commands given. This page contains an IW-30R wire schematic showing the electronic control
system which is described in greater detail on the following pages.
BLUE/GREEN
BROWN
BLUE/PURPLE
BROWN
BLUE/BLACK
BROWN
BLUE
BROWN
BLUE/YLW
BROWN
BLUE/ORANGE
BROWN
1
1
2
3
4
5
6
7
8
9
10
HIGH VOLTAGE
LOW VOLTAGE
L1
NEUTRAL
115 VOLTS
60 CYCLES
WHITE
BLACK
WHITE
WHITE
WHITE
CONDENSER FAN MOTOR
WHITE/RED
M
PURPLE
GRAY
WHITE
BLACK
GRAY
PURPLE
WHITE
REF COMPRESSOR
STARTING RELAY
WINE COMPRESSOR
STARTING RELAY
(DOT
DENOTES
PIN #1 LOCATION)
MAIN CONTROL
OARD
ST-1
4321
ST-2
321
ST-3
12345
ST-6
ST-4
123456
ST-5
ST-12
ST-8
ST-9 ST-11
ST-13
ST-10
ST-7
FOR OPTIONAL
HOME ALARM HOOK-UP
GRAY/WHITE
WHITE/RED
KEYPAD
RED/WHITE
YELLOW/RED
YELLOW/WHITE
BROWN/WHITE
(DOT
DENOTES
PIN #1 LOCATION)
MAIN CONTROL
BOARD
ST-1
ST-2
ST-3
ST-6
ST-4
ST-5
ST-12 ST-8
ST-9 ST-11
ST-13
ST-10
ST-7
1
2
3
4
5
6 8
1 35 7911
1234567
BLUE
WHITE
WHITE/RED
BLUE/RED
RED
REF
STOP
VALVE
BLACK/YELLOW
YELLOW
DOOR SW
N.O.
N.O. N.O.
BLACK/ORANGE
BLACK/GREEN
YLW/GRN
RED/GREEN
YELLOW/ORANGE
RED/ORANGE
UPPER DRAWER
LED
LOWER DRAWER
LED
LOGO
LED
UPPER
LED
LOWER
LED
THERMISTOR (REF EVAP)
THERMISTOR (REF CAB)
THERMISTOR (EVAP LWR)
THERMISTOR (CAB LWR)
THERMISTOR (EVAP UPR)
THERMISTOR (CAB UPR)
BLACK/GREEN
YELLOW/GREEN
RED/GREEN
UPR DRWR SW LWR DRWR SW
YLW/ORN
BLUE/ORN
WINE LWR EVAP FAN
WINE UPR EVAP FAN
REF EVAP
FAN MOTOR
M
M
M
RED
YELLOW
BLUE
BLACK/RED
YELLOW/BROWN
BLUE/BROWN

Related product manuals