EasyManua.ls Logo

Sub-Zero PRO 48 - Page 45

Sub-Zero PRO 48
76 pages
Print Icon
To Next Page IconTo Next Page
To Next Page IconTo Next Page
To Previous Page IconTo Previous Page
To Previous Page IconTo Previous Page
Loading...
45
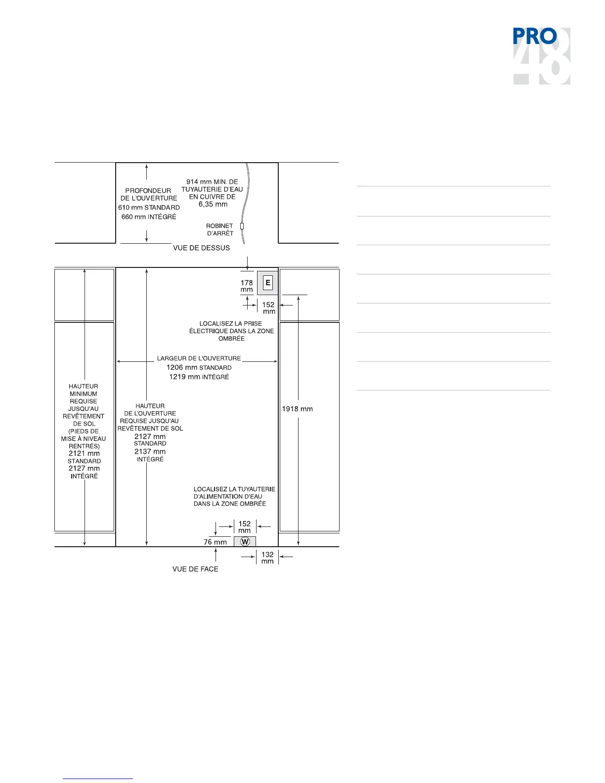
MODELES ICB648PRO ET
ICB648PROG
Largeur de l’ouverture
(installation encastrée) 1206 mm
Largeur de l’ouverture
(installation à fleur) 1219 mm
Hauteur de l’ouverture
(installation encastrée) 2127 mm
Hauteur de l’ouverture
(installation à fleur) 2137 mm
Hauteur minimum requise
(jusqu’au revêtement de sol) 121 mm
Profondeur de l’ouverture
(installation encastrée) 610 mm
Profondeur de l’ouverture
(installation à fleur) 60 mm
Ces dimensions s’appliquent aux ouvertures
finies.
SPECIFICATIONS D’INSTALLATION
standard et intégrée des modèles ICB648PRO et ICB648PROG.
PRO 48 - SPECIFICATIONS D’INSTALLATION

Other manuals for Sub-Zero PRO 48

Related product manuals