EasyManua.ls Logo

Sullair SRC Series - Page 34

Sullair SRC Series
66 pages
Print Icon
To Next Page IconTo Next Page
To Next Page IconTo Next Page
To Previous Page IconTo Previous Page
To Previous Page IconTo Previous Page
Loading...
SRC-- 1 5 0 --- S RC -- 1000
32
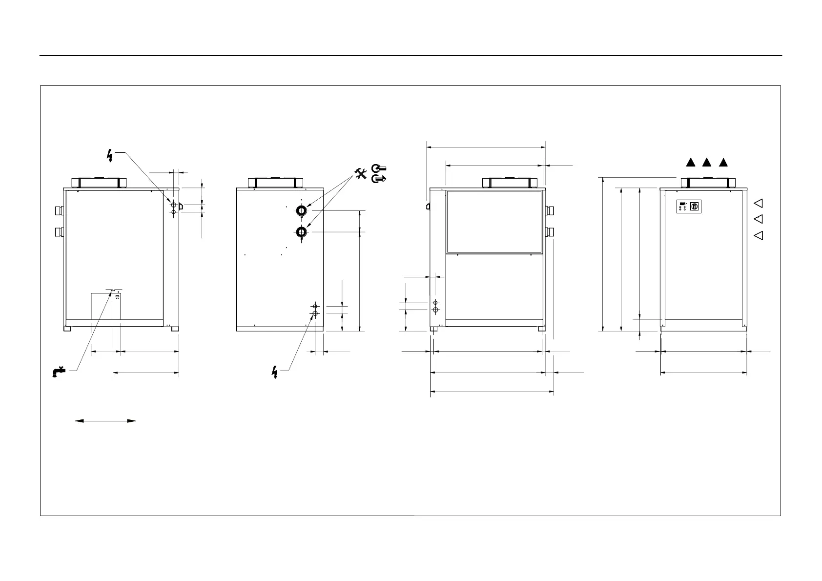
, Dimensional drawing / Cotes / Dibujos de dimensiones SRC-- 250 --- SRC-- 500
(No. 4 holes 4 10)
150 60 (2.4)
488 (19.2)250 70 (2.7)
1296 (51)
100 1108 (43.6)
1208 (47.6)
30 (1.2) 910 (35.8) 30 (1.2) 8 (0.3) 714 (28.1) 8 (0.3)
730 (28.7)970 (38.2)
1040 (40.9)
70 (2.7)
45 (1.8)
180 60
45 (1.8)
14360 (2.4)
20 (0.8)821 (32.3)
554 (21.8)
1003 (39.5)
A 180
(5.6)
(9.8)
(5.9)
(7.1) (2.4)
(3.9)
ASRC-- 250 --- SRC -- 325 = 780 (30.7)
SRC-- 400 --- SRC -- 500 = 835 (32.9)
(7.1)
(inches)
mm

Related product manuals