EasyManua.ls Logo

Sunstream FL10014 - Sheet18

Sunstream FL10014
36 pages
Print Icon
To Next Page IconTo Next Page
To Next Page IconTo Next Page
To Previous Page IconTo Previous Page
To Previous Page IconTo Previous Page
Loading...
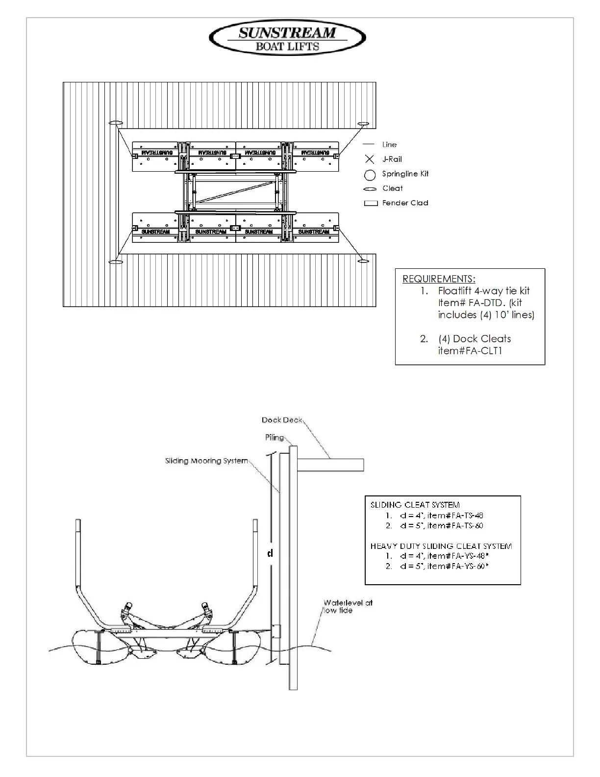
Tide Fluctuations or Docks over 3'
Floating dock with a height less than 3’above water, Standard Slip
PAGE 28 OF 36

Table of Contents

Related product manuals