EasyManua.ls Logo

Superior BBV-36RMN - Installation Steps: Gas and Venting; Gas Line Routing and Vent System Installation

Superior BBV-36RMN
16 pages
Print Icon
To Next Page IconTo Next Page
To Next Page IconTo Next Page
To Previous Page IconTo Previous Page
To Previous Page IconTo Previous Page
Loading...
6
NOTE: DIAGRAMS & ILLUSTRATIONS NOT TO SCALE.
Figure 9
Figure 10
IMPORTANT: UNDER NO CIRCUMSTANCES
CAN THE FIREPLACE TOP SPACERS (
SEE
FIGURE 2
) BE REMOVED OR MODIFIED,
NOR MAY YOU NOTCH THE HEADER TO FIT
AROUND OR BE INSTALLED LOWER THAN
THE SPACERS. THE HEADER MAY BE IN
DIRECT CONTACT WITH THE TOP SPACERS
BUT MAY NOT BE SUPPORTED BY THEM.
Fireplace should be secured to side framing
members using the full length ¹⁄₂ inch nailing
flanges that are integral to the appliance at
each side. Use 8d nails.
All appliances are equipped with a gas flex line
and shutoff valve attached directly to the gas
control valve. To quickly and easily complete
the gas line routing, use the gas flex line kit.
Step 3. Slide the fireplace into prepared fram-
ing or position fireplace in its final position and
frame later.
Figure 8
Step 2. Route gas line (
Figure 8
) using tech-
niques and materials prescribed by local and/or
national codes. It is recommended that a gas
line of ¹⁄₂" or greater diameter be used to allow
full gas volume to the fireplace. Undue pressure
loss will occur if the pipe is too small. The
appliance, as set up at the factory, is best suited
for use with a gas line routed from the right
side. The gas line may however be alternately
routed from the left side.
When rigid pipe is used, an ANSI approved
manual shut-off valve and union must be in-
stalled upstream of the fireplace.
Ensure that a sediment trap is installed in the
existing gas line, if not, install a sediment trap
upstream to prevent moisture and contaminants
from passing through trap to the appliance con-
trols and burners. Failure to do so could prevent
the appliance from operating reliably.
An external regulator must be used on all pro-
pane (L.P.G.) heaters to reduce the supply tank
pressure to 13" w.c. (maximum). Any copper
tubing used to supply propane (L.P.G.) from
the tank must be internally tinned.
IMPORTANT: HOLD GAS VALVE SECURELY
TO PREVENT MOVEMENT WHEN CONNECT-
ING TO INLET GAS LINE
WARNING: CONNECTING DIRECTLY TO
AN UNREGULATED PROPANE (L.P.G.)
TANK MAY CAUSE AN EXPLOSION.
Note: The nailing tabs and the area directly behind
the nailing tabs are exempt from the clearances
described on the fireplace clearance label.
Refer to fireplace drawings and specifications
on
pages 4 and 5
for framing dimensions and
details. Framing header may be positioned di-
rectly on the fireplace top spacers.
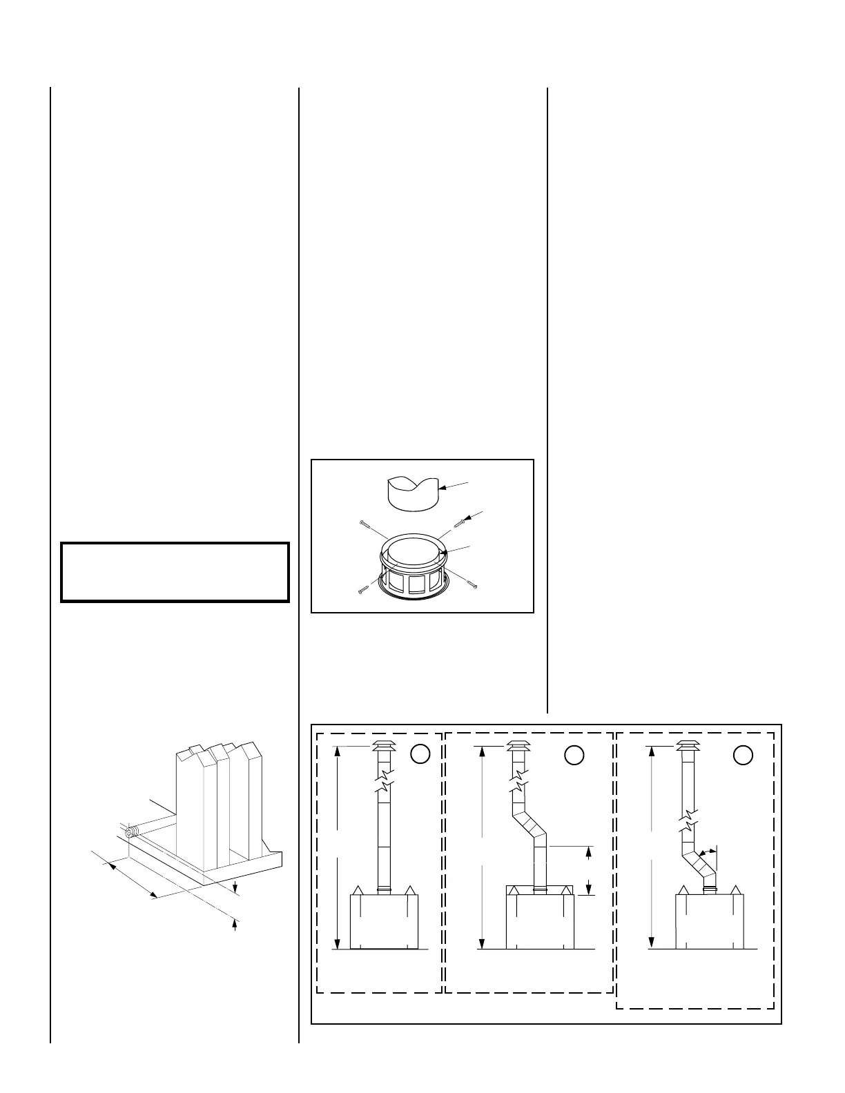
Step 4. Install the Vent System and Exterior
Termination
A - Connect a 6" (152 mm) Type B vent system
to the appliance flue collar with four (4) No. 8
sheet metal screws
(Figure 9 )
and install the
remainder of the Type B vent to the outside.
2 - With Offset
a - Minimum overall height of the vent system
and appliance must be 12' (3.66 m) when an
offset up to 45 degrees from the vertical is
used. There must be a minimum vertical vent
height of 2 ft (0.6 m) above the appliance collar
before the offset can be applied.
b - Minimum overall height of the vent system
and appliance must be 15' (4.57 m) when an
offset, more than 45 degrees but less than
60 degrees from the vertical, is used. There
must be a minimum vertical vent height of 2 ft
(0.6 m) above the appliance collar before the
offset can be applied.
3 - With Offset, when using the optional, 36GEP
or 36GEP-BB, non-operable glass doors
Minimum overall height of the vent system
and appliance must be 12' (3.66 m) when an
offset up to 60 degrees from the vertical is
used. The lower part of the offset may start
at the appliance flue collar.
Maximum overall height of the vent system and
appliance should not exceed 40 feet (12.19 m).
Install the B-vent system in accordance with
the vent manufacturer's instructions.
CAUTION: THIS APPLIANCE CANNOT BE
VENTED HORIZONTALLY.
Note: Refer to the vent manufacturers installa-
tion instructions for variations of venting tech-
niques. If common venting of several units is
contemplated, it should be discussed with an
architect and the local Building Department.
Install the B-vent system in accordance with the
vent manufacturer's instructions.
*This Vent Configuration Allowable
Only WithThe Following Optional
Non-Operable Glass Doors installed:
36GEP or 36GEP-BB
B - The following venting configurations may
be installed
(see Figure 10):
1 - Vertical - Minimum overall height of the vent
system and appliance without an offset must be
12' (3.66 m)
RIGHT
SIDE
7 ³⁄₄"
(197 mm)
3 ³⁄₈"
(86 mm)
12 ft.
Minimum
60*
degrees
Maximum
12 ft.
Minimum
Back View
Of Appliance
*12 ft. Min.
**15 ft. Min.
2 ft.
Minimum
To Offset
*with an offset up to 45 degrees
** with an offset greater than 45
degrees and up to 60 degrees
Back View
Of Appliance
Back View
Of Appliance
6”
Type B-Vent
Lanced Flue
Outlet Collar
Securing
Screws
1
2 3

Related product manuals