EasyManua.ls Logo

Superior CST-38 - Trouble Shooting; No Smoking Allowed

Superior CST-38
8 pages
Print Icon
To Next Page IconTo Next Page
To Next Page IconTo Next Page
To Previous Page IconTo Previous Page
To Previous Page IconTo Previous Page
Loading...
7
NOTE: DIAGRAMS & ILLUSTRATIONS NOT TO SCALE
3. Look up from inside the fireplace (damper
open) to see any obstructions in the lower flue
area. If present, shut the damper and glass doors
(if installed) to seal the firebox and contain any
soot that might fall. If your do not have glass
doors installed, a damp sheet covering the fire-
place opening and sealed with masking tape will
do. Then clean the flue from the top down (if an
offset system, clean per Step 2) using a proper
size chimney brush with flexible pole sections.
Don’t open the doors or remove the sheet until all
soot has settled. Vacuum, don’t sweep.
4. Check the metal flashing and seals around
your chimney. Seal any cracks or loose nailhead
openings to prevent roof leaks.
5. Clean the firebox thoroughly by using a soft
brush or equivalent.
WARNING: CONTINUED OVER FIRING
CAN PERMANENTLY DAMAGE YOUR
FIREPLACE SYSTEM. SOME EXAMPLES
OF OVERFIRING ARE:
BURNING QUANTITIES OF SCRAP
LUMBER, PINE BRANCHES, PAPER OR
CARDBOARD BOXES WHICH EXCEED
THE VOLUME OF THE NORMAL LOG
FIRE.
BURNING TRASH, CHEMICALS OR
CHEMICALLY TREATED COMBUS-
TIBLES.
Creosote Formation and Removal
When wood is burned slowly, it produces tar and
other organic vapors, which combine with ex-
pelled moisture to form creosote. The creosote
vapors condense in the relatively cool chimney
flue of a slow-burning fire. As a result, creosote
residue accumulates on the flue lining. Creosote
makes an extremely hot fire when ignited.
The chimney should be inspected at least twice
yearly during the heating season to determine
if a creosote build-up has occurred.
If creosote has accumulated, it should be re-
moved to reduce the risk of a chimney fire.
If creosote build-up is found, do not use chemi-
cal chimney cleaners that are poured on a hot
fire. The manufacturer considers them dan-
gerous and they generally only work on the
flue section nearest the fire, leaving the rest of
the flue unaffected. It is best to take the time to
clean the flue as previously described or have
the chimney professionally cleaned by a quali-
fied chimney sweep.
6. Is a vent fan, exhaust hood or central heat-
ing/cooling system stealing combustion air from
your fireplace? If their volume is high enough,
this can cause negative pressure and an un-
wanted downdraft – and smoking.
7. Is your wood fuel too wet or unseasoned?
Or does it contain some chemical substance
that causes sputtering, smoking and toxic
fumes?
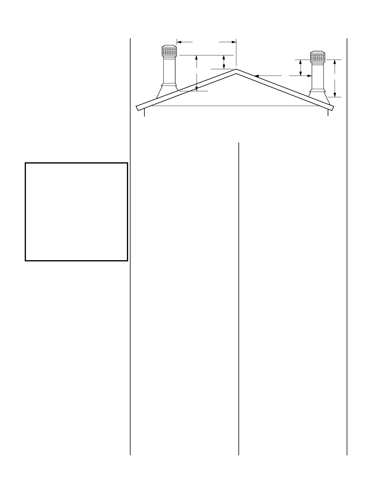
8.
Figure 8
illustrates the correct height of
your chimney top. It is unlikely that your instal-
lation does not adhere to the installation
instructions. However, if not correct, you could
experience an unusual downdraft. Usually, the
best solution is to increase the chimney height.
This may also be necessary if nearby trees,
adjoining roof lines or a hill is causing a down-
draft condition.
9. Remember, your fireplace has been de-
signed as a supplemental heating device only,
it is not intended to heat your entire home.
ENJOY YOUR FIREPLACE
If you encounter any problems or have any
questions regarding the installation of op-
eration of your fireplace system, contact
your distributor. For your nearest distributor
contact:
LENNOX HEARTH PRODUCTS
1110 West Taft Avenue
Orange, CA 92865
Figure 8
TROUBLE SHOOTING
No Smoking Allowed
Your new fireplace is designed not to smoke if
properly installed and operated per our instruc-
tions. If you do experience a problem, here are
several things to check:
1. Remember – always check to ensure your
flue damper is in the open position before
lighting a fire!
2. When lighting your fire, a little smoke may
escape into the room – more likely if the chim-
ney is cold. To correct this, hold a lighted
newspaper up inside the firebox near the open
flue damper. This will turn around any down-
draft and clear the flue of cold air. As your log
fire burns below, the updraft will improve as the
chimney heats up.
3. Is your fire too far forward? Move it toward
the back with your poker. Keep the fire well
within the confines of your fuel grate.
4. Keep your fire up on the grate and the refrac-
tory below free of excessive ashes. The fire
needs plenty of air movement around the logs.
5. If smoking occurs an hour or two after
lighting the fire, perhaps your well-insulated
house is too airtight and there is scarcely any
way for replacement air to enter and feed the
fire. Check to see if your outside combustion air
kit (if installed) is open. Check outside to ensure
no obstructions are in front of exterior air entry.
Open a window slightly, open doors to one or
two rooms and see if this stops the smoking.
10'
2' Min.
2' Min.
Less Than 10'
3' Min.
3' Min.

Other manuals for Superior CST-38

Related product manuals