EasyManua.ls Logo

Superior WRT3042RS - Fireplace Installation; Location, Clearances, and Framing; Hearth Extension Installation

Superior WRT3042RS
20 pages
Print Icon
To Next Page IconTo Next Page
To Next Page IconTo Next Page
To Previous Page IconTo Previous Page
To Previous Page IconTo Previous Page
Loading...
Superiorfireplaces.US.com
126622-01D
5
FIREPLACE INSTALLATION
SELECTING LOCATION
To determine safest and most efficient location for fireplace, you
must take into consideration the following guidelines:
1. Locationmustallowforproperclearances(seeFigures1and2).
2. Consideralocationwherereplacewillnotbeaffectedbydrafts,
air conditioning ducts, windows or doors.
3. A location that avoids cutting of joists or roof rafters will make
installation easier.
4. Anoutsideair kitisavailablewiththis replace(seeOptional
Outside Air Kitonpage7).
MINIMUM CLEARANCE TO COMBUSTIBLES
Back and sides of fireplace 3/4" minimum*
Floor** 0" minimum
Perpendicular wall to opening 12" minimum
Top spacers 0" minimum
Mantel clearances see Mantels, page 6
Chimneyouterpipesurface1"minimum
** See step 2 of Framing
WARNING: DO NOT PACK REQUIRED AIR SPACES
WITH INSULATION OR OTHER MATERIALS.
Minimum/Maximum Chimney Height
Minimum height of chimney, measured from base of fireplace to
flue gas outlet of termination, is 14.5 feet for straight flue or a flue
with one elbow set. Maximum distance between elbows is 6 feet. For
systems with two elbow sets, minimum height is 22 feet. Maximum
height of any system is 50 feet. This measurement includes fireplace,
chimney sections and height of termination assembly at level of flue
gasoutlet(seeFigure21,page13).
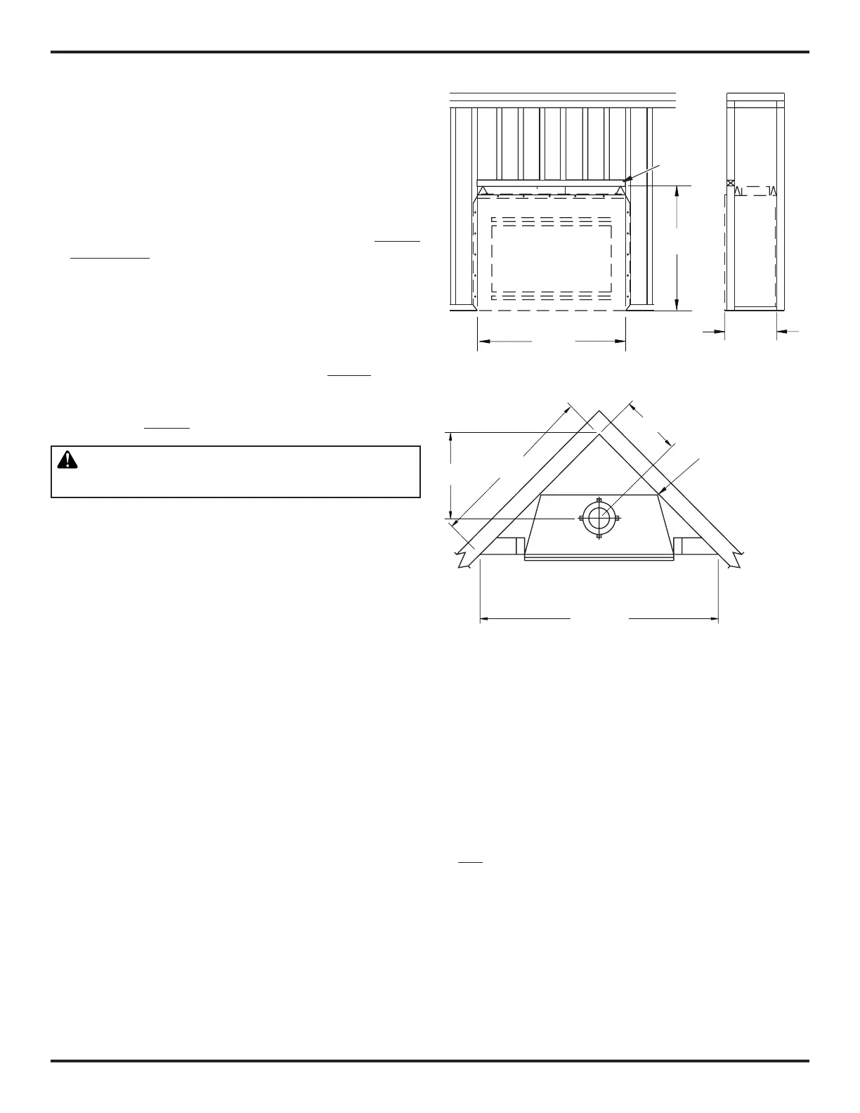
FRAMING
1. Frame opening for fireplace using dimensions shown in Figures
1 and 2.
Note: When the fireplace is framed, the header has to be turned
ontheattomaintainproperclearance.
2. Ifreplaceistobeinstalleddirectlyoncarpeting,tile(otherthan
ceramic)oranycombustiblematerialotherthanwoodooring,
fireplace must be installed upon a metal or wood panel extending
full width and depth of fireplace.
3. Set fireplace directly in front of this opening and slide unit back
until nailing flanges touch side framing.
4. Checklevelofreplaceandshimwithsheetmetalifnecessary.
5. Before securing fireplace to prepared framing, ember protector
must be placed between hearth extension (notincluded) and
under bottom front edge of fireplace to protect against glowing
embers falling through. If fireplace is to be installed on a raised
platform,aZ-typeemberprotector(notincluded)mustbefabri-
catedtotyourrequiredplatformheight.Emberprotectorshould
extend under fireplace a minimum of 1
1
/
2
". Ember protector
shouldbemadeofgalvanizedsheetmetal(28gaugeminimum)
to prevent corrosion.
6. Using screws or nails, secure fireplace to framing through flanges
located on sides of fireplace.
Figure 1 - Framing Dimensions
Figure 2 - Corner Installation
HEARTH EXTENSION
A hearth extension projecting a minimum of 20" in front of and a
minimum of 12" beyond each side of fireplace opening is required
to protect combustible floor construction in front of fireplace. Fab-
ricate a hearth extension using a material which meets the following
specifications: a layer of noncombustible, inorganic material having
a thermal conductivity of k = .84 BTU IN/FT
2
HR°F(orless)at1"
thick. For example, if material selected has a k factor of 0.25, such
as glass fiber, the following formula would apply:
0.25 x 1.0" = 0.30" thickness required
0.84
Thermal conductivity "k" of materials can be obtained from manu-
facturer or supplier of noncombustible material. If hearth extension
is to be covered, use noncombustible material such as tile, slate,
brick, concrete, metal, glass, marble, stone, etc. Provide a means to
prevent hearth extension from shifting and seal gap between fireplace
frame and hearth extension with a non-combustible material such
assand-cementgrout(seeFigure3,page6).
23
1
/2"
49
3
/4"
47
1
/4"
28"
Maintain 3/4"
Clearance at
Sides and
Back of
Fireplace
59
3
/8"
19
1
/2"
83
7
/8"
2x4
Header
Turned
Flat

Related product manuals