EasyManua.ls Logo

Supra 148C - Page 6

Supra 148C
16 pages
Print Icon
To Next Page IconTo Next Page
To Next Page IconTo Next Page
To Previous Page IconTo Previous Page
To Previous Page IconTo Previous Page
Loading...
GB 6/16
25254-11-08
16 cm
1
2
3
4
5
6
7
8
9
10
11
12
15
16
17
20
18
19
16 cm
13
14
2 cm mini.
30 cm
1
2
3
4
5
6
7
8
9
10
11
12
13
14
15
16
17
18
19
20
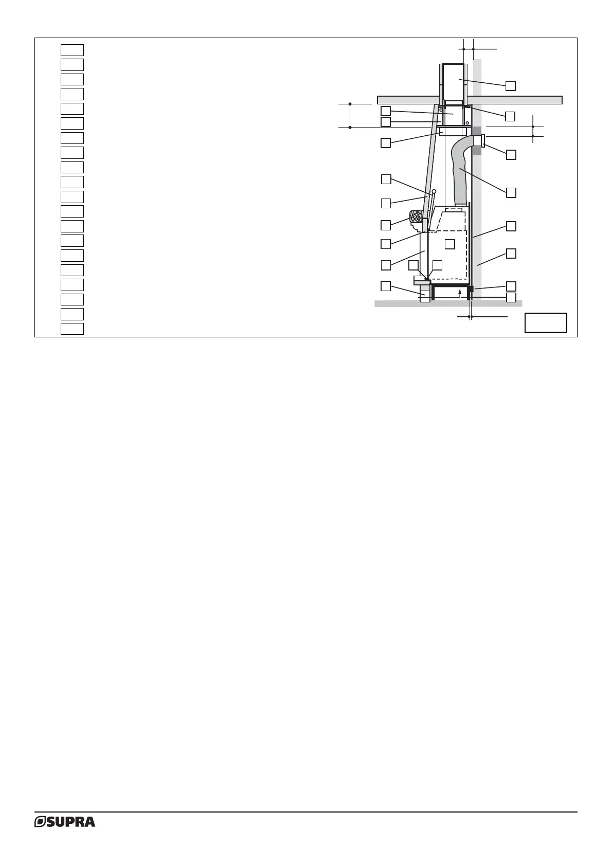
Supporting wall (class M0 materials)
Stone cladding (optional)
Wooden beam (depending on model of fireplace)
Decorative hood (optional)
Curtain (material according to model)
Chimney block (minimum cross section 400 cm²)
Connecting collar (not supplied)
Connecting pipe (not supplied)
Insulated box
Warm air outlet grille
Firebox
Control buttons
Combustion air inlet
Convection air inlet
Air access through fireplace
Window lifting mechanism (fires with lift-up doors only)
Warm air ducts Ø 150 (not supplied)
Warm air diffusion system (not supplied)
Back stop
Insulation (if necessary)
2.4
2.4