EasyManua.ls Logo

Sure Flame SL11B - S1500 Connection Wiring Diagram

Default Icon
23 pages
Print Icon
To Next Page IconTo Next Page
To Next Page IconTo Next Page
To Previous Page IconTo Previous Page
To Previous Page IconTo Previous Page
Loading...
SL11B & S1500 Manual 934-6644 - Page 20
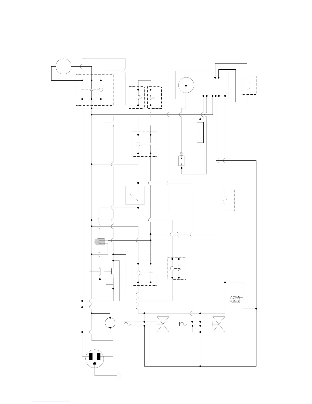
S1500 CONNECTION WIRING
DIAGRAM
V
TIMER
1 6
3 2
FENWALL
#05-142401-001
S1
E2
L2
V2
L1
NC
V1
SP
7
A
M
B
57
AB
5
AIR SWITCH
HI LIMIT
SWITCH
POWER RELAY
FUSE
t
o
THERMOSTAT
3 1
CB
CB
Circuit braker
1.0A